



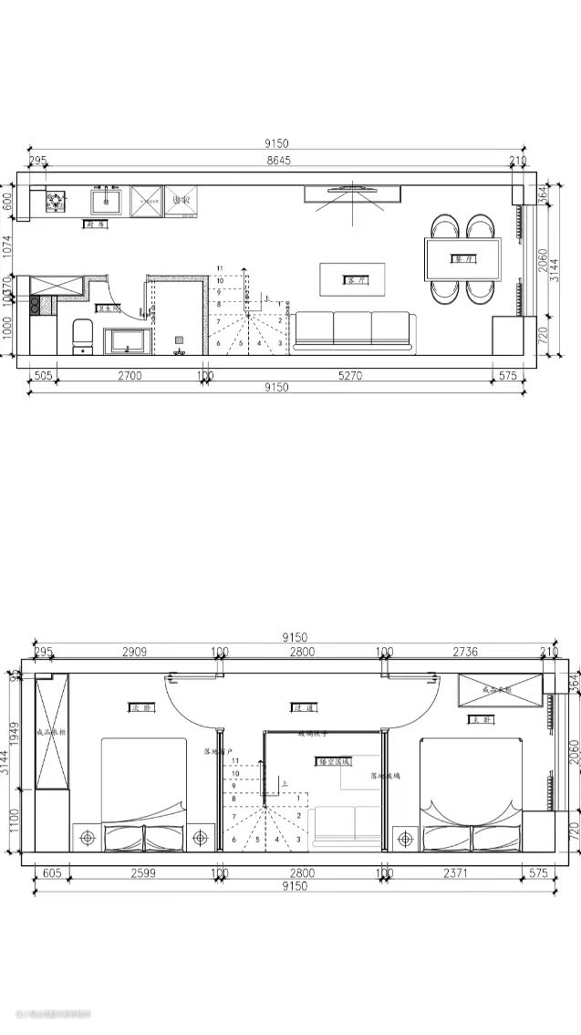
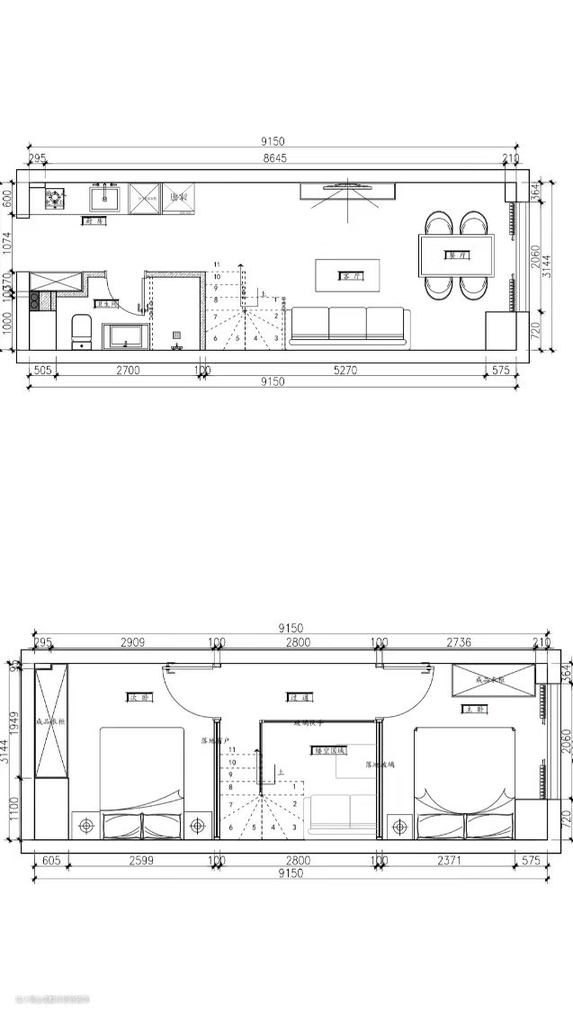
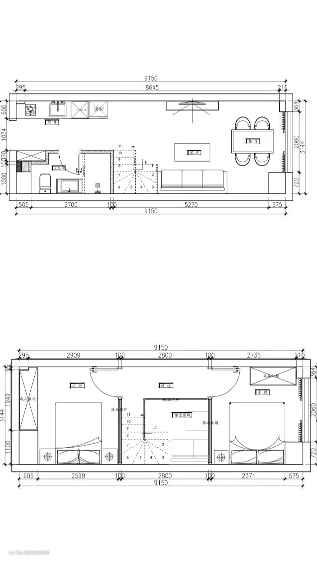
❤本案例loft原始结构是长9.15m*宽3.134m、层高为4.2m的长方体公寓,只有一侧窗户采光通风,需要进行钢结构隔层搭建,楼梯来连接两层楼空间。业主要求保留两个卧室,风格简单一点,不要满搭建过于压抑。 所以公寓装修第一步,首先是钢结构搭建方案,选用的是镂空两边搭建的形式,中间部分挑空整个层高的高度,这样可以有效降低层高过矮带来的视觉压抑感,一二楼还能都拥有采光通风效果,很适宜的一种搭建方式。 公寓装修接下来的施工工序:水电、消防改造、木工吊顶、墙固、乳胶漆、主材安装、扶手安装、硬装。 整个公寓的空间布局:一楼客餐厨卫+二楼主次卧+过道+公寓楼梯+挑空设计。









设计亮点
loft公寓如果拥有自己独立的挑空视角,整个室内空间会非常舒适,无论从哪个角度来说,都能够让公寓加分不少。 第一,公寓挑空,是降低空间压抑感的最好方式,不会再视觉上带来压迫感; 第二,挑空设计,窗户采光可以穿透整个公寓,一二楼都能享受室外所带来的的采光和通风效果; 第三,loft挑空,可以给楼梯设计预留足够的空间,没有局限性; 第四,挑空背景墙设计,可以乳胶漆简单上墙,也可以石膏线个性化造型,让整个空间的格调提升不少。







设计亮点
入户空间,钢结构搭建后,需要将有限空间有效利用起来。根据公寓常规布局,阁楼下方一般是厨房、卫生间和鞋柜,但也有厨房放在靠窗位置的案例,可以随之变换。 这套公寓呢,进门左侧是厨房空间,右侧便是鞋柜和卫生间。 另外,我们可以看到整体这样的方案,入户的位置采光效果也非常赞,阳光好的时候,光影留下的痕迹让空间更具形状,也让整个空间更像一个温馨的小家啦~~



设计亮点
厨房,一字形开放式设计,上方一整排吊柜+一整排地柜,中间做饭的区域,地柜还预留了嵌入式洗衣机的位置,整体来说储物收纳功能足够。



设计亮点
卫生间,流行式干湿分离,设计在一楼空间,马桶区、淋浴区、盥洗区,4个平米左右,可谓是“麻雀虽小,五脏俱全”。



设计亮点
客厅,开放式客厅设计,位于阁楼下方,拥有窗户,室内采光效果还不错。







设计亮点
公寓楼梯,选择的是U形楼梯连接一二楼,木地板踏步+实木玻璃扶手+梯下储物间,简约大气又实用。 楼梯踏步尺寸(长*宽*高=80cm*23cm*19.6cm)







设计亮点
二楼主卧,可以放置1米8的床和床头柜,还有储物衣柜,衣柜拱形门洞个性化造型。 公寓卧室两边不建议砌墙,会很压抑,而是全景玻璃推拉窗,可以让室内采光通透感更好。





设计亮点
二楼次卧,同样是1米8的床、床头柜、拱形门洞衣柜区,卧室侧边推拉窗设计。 公寓整体风格简约干净,白色乳胶漆+黑色扶手+黑色玻璃窗户边框,色彩简单自然,舒适温馨。




设计亮点
二楼过道,宽度可以在80cm-120cm为宜,过道可以分别通往二楼主卧、二楼次卧、楼梯,木地板铺满整个二楼空间,生活舒适性更好。
