访问APP
客厅
餐厅
主卧
次卧
厨房
卫生间
设计亮点

148平日式风格,让你的家充满温馨

名匠家装总店
关注
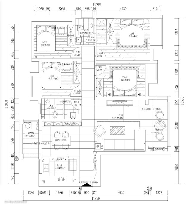
户型
四居
风格
日式风
面积
148㎡
位置
长沙市
方式
全包
预算
20万
软装
6万
硬装
14万
设计亮点

装修前

1、布局相对合理,坐北朝南的地理位置佳,但入户玄关门厅处的采光通风不够,如遇到下雨天的鞋物打湿后容易发霉潮湿;入户见厅,私密性也不够到位。

装修后

1、客厅阳台纳入室内做开放式处理,大片的落地窗设计将采光功能拉满,玄关处到顶式的立柜用作收纳,上可密封下可通风,二者兼备,加入LED灯带,护眼节能又能满足采光。

客厅

设计亮点

公共区域采用时下最流行的----大横厅LDK一体式布局,空间利用率大大提高,无论是从采光通风方面还是活动空间方面都是“无敌”的~纯粹的奶白加上治愈的原木,构筑眼前眼前这副岁月静好的光景;整屋无主灯设计,视觉效果更为温馨,让采光无死角,沙发和懒人椅呈一字排开,让人忍不住想沉陷这个家中

餐厅

设计亮点

筒灯的采用搭配大片透明窗,纳入1.6m宽尺阳台,延申视觉,开阔大气的同时,日常通风采光不在话下,与客厅相互辉映,达到真正的南北通透!

厨房

设计亮点

L型“黄金动线”布局,连接餐厅形成当下流行的一体式设计,家人之间围坐在此可以交流、帮忙,让烹饪过程更显趣味;向左上延申L型“黄金动线”布局,连接餐厅形成当下流行的一体式设计,家人之间围坐在此可以交流、帮忙,让烹饪过程更显趣味

主卧

设计亮点

奶咖色的运用,给人清新细致的感受,防眩筒灯作为此处的主要光源,隐形柜门更富有未来科技感,一侧暗格摆放盎然绿植,让整个空间都变得灵动惬意起来。

次卧

设计亮点

此卧室可以用作多功能室,同样也是可以作为临时客卧使用,到顶式的立柜,中间采用开放式暗格,摆放一些常用物品,密闭柜体内则可用作收纳一些棉被、四件套等,下方可以摆放电脑或书籍,用作办公

卫生间

设计亮点

满足收纳的同时也能彰显出一丝格调,百叶窗的加入也让此区域更是增添了高级感,日常让光线均匀撒入的同时也能从多种角度调节卫生间光线的明暗程度,通铺的450*450mm彩点仿古砖更是为此空间注入温度和灵魂