
装修前
业主是一家五口,三代同堂,男主人对生活品质要求比较高,希望家里保持整洁干净,女主人喜欢时尚一点,装修要好看,要显年轻。 我们用现代风格,极简设计,来为小家庭打造舒适的居家环境。 为了增加收纳,我们在电视墙、玄关等位置设计了很多收纳空间,用白色柜体让收纳隐形到墙面,既能藏起更多杂物,又美化了墙面。
装修后
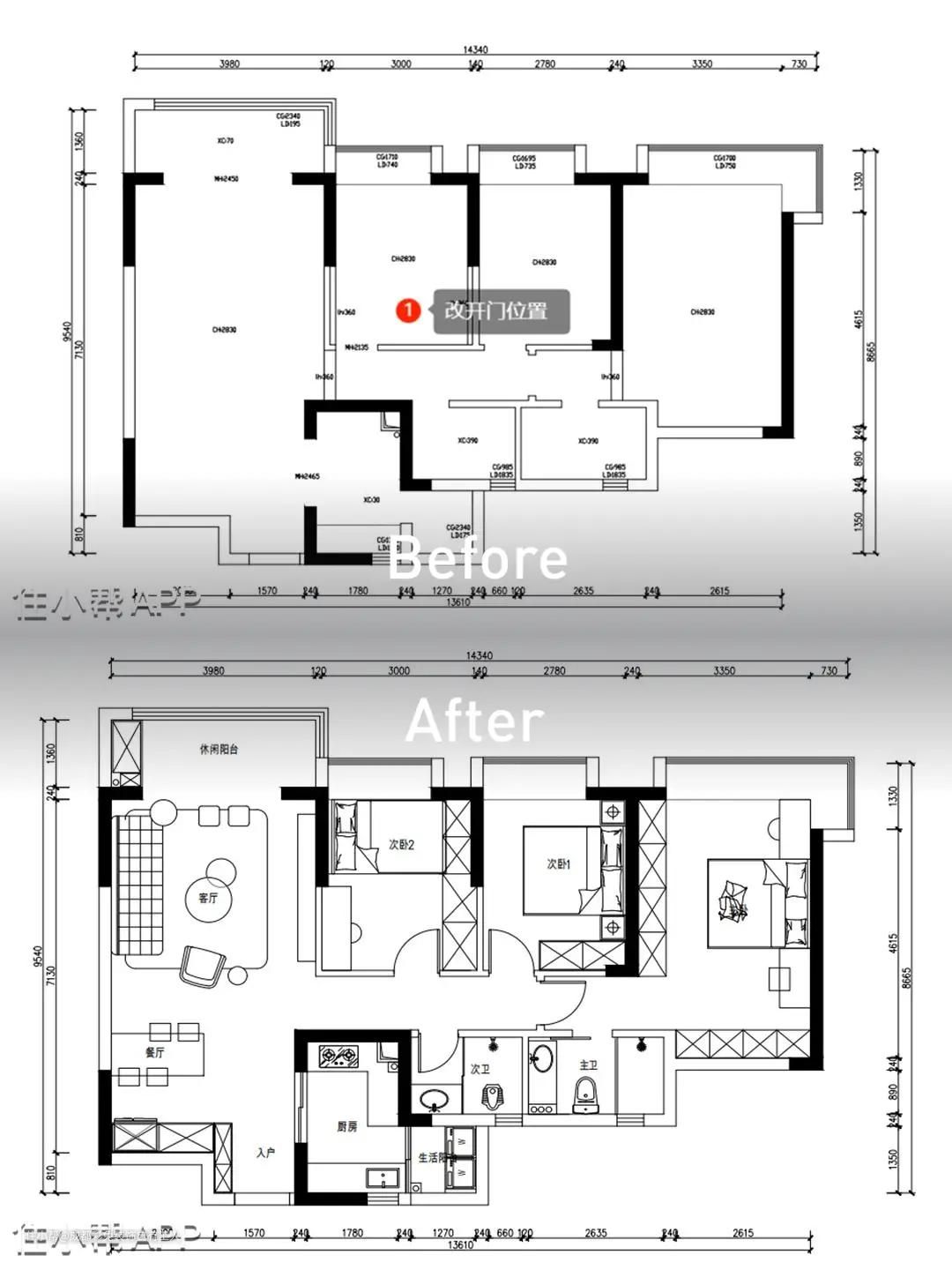
原户型南北通透,双面采光,改动不大,增加了约60平的收纳柜空间。 唯一改动是第一间次卧的开门位置做了移动,方便布局书桌,也利用门后空间做了更多的衣柜。



设计亮点
进门左边玄关柜嵌入墙体,下面鞋柜空间,一家五口的50双鞋是没问题的。 1米3的鞋柜,紧接着这边2米宽的餐边柜,都是一柜到顶,收纳空间大大的。






设计亮点
餐厅旁就是会客区,客餐厅一体设计,感觉客厅特别宽敞;无主灯的天花板也为客厅增加了时尚感。 仿微水泥效果的柔光地砖通铺到阳台,低调又奢华。 阳台的落地窗,视野非常棒,就让四季风景成为最美挂画。 电视墙是整面墙都做了收纳,上面放不常用的东西,中间开放柜展示最得意的艺术品,地柜抽屉装小物件,翻门柜藏起电线,还有两组大立柜。 分区收纳,日子过得井井有条。
软装搭配
两组模块沙发,一个毛毛虫软椅,设计感都很在线;一群人聊聊天,一个人看看书,日子轻松又随意。




设计亮点
这边餐边柜真是太能装,还装下了冰箱和蒸烤箱,弄顿早饭都不用去厨房了,很方便。 餐厅灯光设计很丰富,悬浮式吊顶加上设计感十足的吊灯,坐这里吃饭氛围非常好,这灯一打,食欲都更好了。
软装搭配
桌面摆放上精致的插花或装饰画,让空间更为精致,更有氛围感。




设计亮点
厨房用了这种三联动的玻璃门,开合非常方便,还很好看。最重要的是无地轨设计的门,又避免了地上的卫生死角。 厨房里面三面墙都利用起来,炒菜区、备餐区、水槽区,做起美食来,轻轻松松。 这边是生活阳台,我们用这个折叠门做隔断,就不怕衣服粘上炒菜味道了。





设计亮点
主卧的灯光氛围也是相当舒服,从天花板到床头,都被温馨包围。 黑色床头与梳妆台,搭配白色衣橱,简约又高级。 尽管有两面墙的衣橱,因为用的无拉手白色柜门,完全不显空间压抑。 这两面墙衣柜总共有5.6米,外观简洁,里面可精致得很,也是按照衣服长度做了细致的设计。



设计亮点
主卫,用推拉玻璃门做干湿分离,有效保护智能马桶等设施。
