
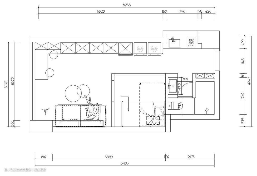
本案是位于荔湾区的小户型公寓,原始户型是完全没有隔断,套内35平的大通铺。因此屋主希望大通铺变一房一厅,同时把空间利用到极致,并能划分不同功能区,从而达到舒适的居住环境。

改造重点: 1、原户型是大通铺,没有卧室,屋主希望有一间通风采光较好的卧室; 2、屋主喜欢用烹饪来调解情绪和缓解工作的生活压力,所以比较注重厨房的功能性,希望有更大的操作台;

设计师这么改: 1、入户门一侧实现卫生间干湿分离,将洗手台外置; 2、入户门另一侧把洗衣功能和厨房功能合并,同时设计了“上中下”格局的鞋柜; 3、大通铺客厅进行区域分割,实现”起居、休闲、工作、用餐“的功能。

设计亮点
再小的房子也不能没有玄关,这是回家的仪式感。在玄关的处理上,选择直接嵌入墙体的定制鞋柜藏于门后,也便于进门和厨房区域的卫生打理。





设计亮点
由于整体空间有限,开放式厨房能够最大限度的利用空间,由洗衣、收纳、烹饪依次分布,动线流畅。高低错落的设计也便于区域的划分,同时扩大了操作台的使用。 双层隔板同时满足备菜与收纳的功能,下方嵌入灯带筒灯,为备菜提供了辅助光源,灯效与辅助光源形成呼应,营造出敞亮通透的空间氛围。




设计亮点
去客厅化的设计,扩大活动空间。软装通过不同的材质、线条和色彩的碰撞,彰显客厅层次与质感,在光影交汇间,形成独特的风景线。
软装搭配
客厅整墙设计扩展储物空间,使整体空间整齐干净。



设计亮点
嵌入式的桌柜不仅减少台面杂物堆砌,还为办公学习、日常用餐提供充足空间。
软装搭配
白柜与棕桌的配色,解锁不一样的视觉效果,而墨绿色墙面点缀,打破单一感,餐厅更有层次感。



设计亮点
在原客厅的基础上,通过隔墙打造半开放式卧室,让空间更显开阔。
软装搭配
弧形门窗设计不仅增加室内采光,扩大视野,还让家居更美观,搭配壁炉与装饰画,营造复古氛围。


设计亮点
卫生间洗手台外置,最大程度上保持卫生间的干爽度。挂壁式浴柜节省空间,方便卫生清洁。
软装搭配
门洞做半墙设计,木条收口扩大干区台面空间,又削弱了瓷砖的生硬感,尽显美观又实用。
