

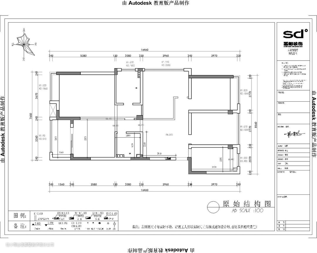
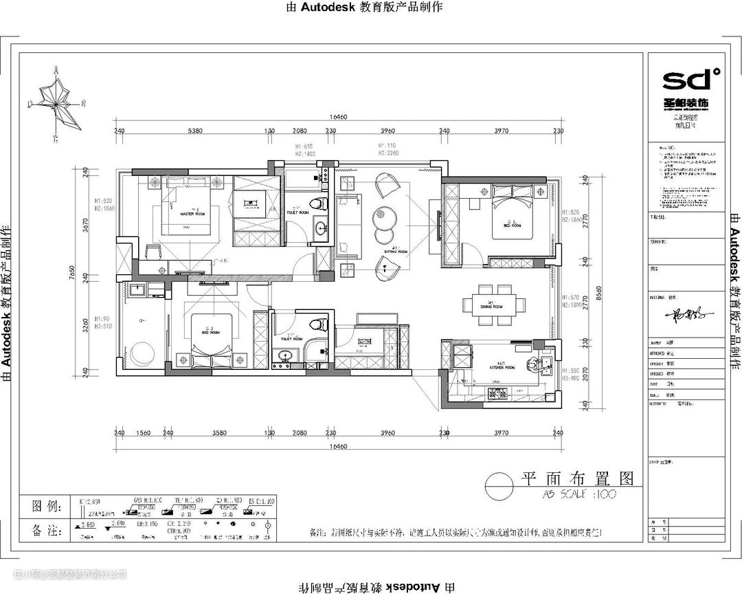
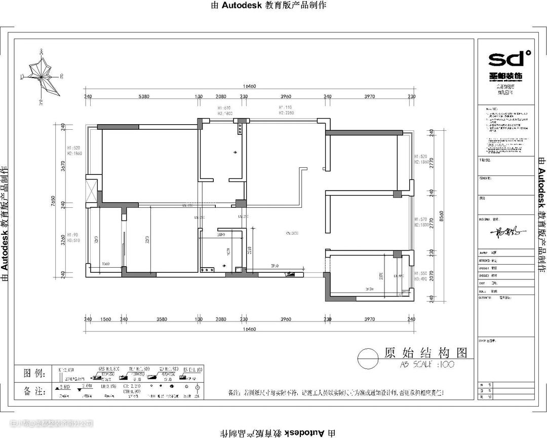
●本案居者: 90后新婚夫妻,追求高质量家居生活。 ●居者需求: →居于四楼,希望能扩大采光面,提高通透感。 →女主人衣服很多,需要充足收纳。 →改善餐厅过小的缺点。 →保留三间卧室。 ●设计亮点: →开放式布局+大落地窗,让整个空间变得亮堂堂。 →原餐厅规划为储藏室,临近厨房的次卧改为餐厅。 →主卧借用部分主卫空间,规划了U型衣帽间。



设计亮点
走道式玄关柜收纳力有了质的飞跃,为避免逼仄,将一侧玄关柜大部分留空,并辟出落座空间,出入户更便捷。




设计亮点
坚持“围合式+精简家具”,加之开放式布局,强调了空间的互动性;无主灯设计锻造出轻盈空灵的视效感;焦糖色系与温润木质的融入,滋长出温馨、恬淡的空间气息。
软装搭配
澄澈的玻璃配上薄薄的纱帘,仿佛冉冉的晨雾,流泻出翩然的仙气;黄昏时跌入室内的一抹橘色,邂逅一场零成本浪漫。




设计亮点
将厨房临近的次卧改成餐厅,不仅实现了动线的最优解,更难得的是,一整面的落地窗送来旖旎风光,让三餐四季都有了心动的理由,书写下别致的浪漫。
软装搭配
嵌入式收纳柜配上粗犷的黑钢玻璃和氛围感灯带,既能作为餐边储物柜,又是一道靓丽的风景线,令人拍案叫绝。

设计亮点
既要容纳下全家的口粮,又得承担起三餐的烟火气,这个实用的大厨房就交出了满分答卷:依据空间走向规划U型橱柜,不仅不显压抑,且空间利用率高;黑白灰的经典配色高级有质感,也方便日常清洁,实现功能与美学的双重升级。


设计亮点
时光是日升月落,生活是晨昏朝暮;心怀热爱的人,总是能把日子过得有滋有味。 主卧融入了大量的木作雅调,沉淀下温润、自在的睡眠环境;一侧飘窗时时送来一轮朝阳和半空晚霞,牢牢把握四季芳华。

设计亮点
阳台规划家政区,将实用主义坚持到底。顶天立地的柜体设计,实现最大收纳力:提前预留好洗衣机/烘干机的尺寸,嵌入阳台柜中,立面干净利落,视觉效果更高级。
