

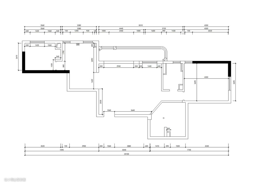
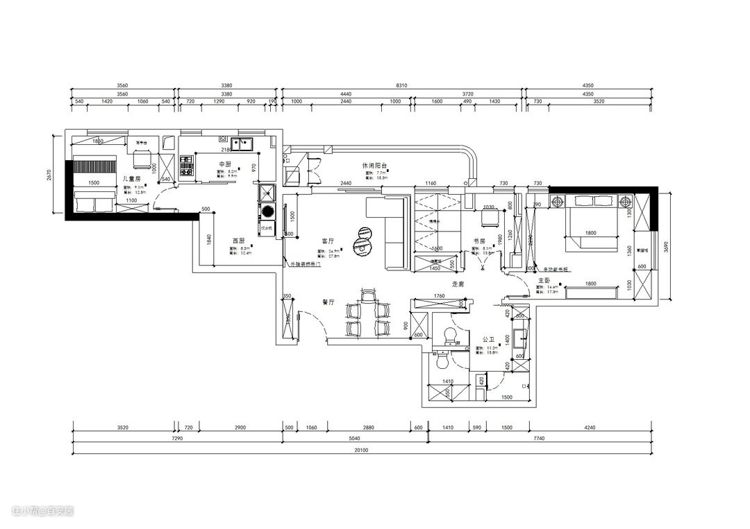
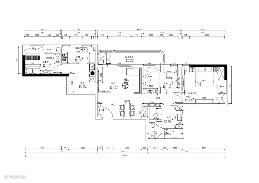
本案为广州一对年轻夫妻的老房翻新公寓,设计以中性色彩搭配质感地板的处理方式,搭配周边墙面质材变化应用,依旧能展现工业风特有质感。半开放式的中西厨与客餐厅之间采用黑板谷仓吊趟门的关系规划掌握了工业风格的特色。



设计亮点
入户大门后面的玄关柜给日常生活带来的便利,高矮柜的组合设计能满足功能上的需求,平板免拉手的造型简约大方。原木色的餐桌,搭配黑色的桌脚,与餐椅统一配色冷酷中有温暖。黑色底座上看似随意布置的玻璃灯彰显个它自由的个性。墙面灰色乳胶漆,质地细腻简单,很好的把握着空间内白色与黑色之间的关系。



设计亮点
客厅与餐厅是同一空间,在色彩上保持一致。黑色是电视背景上的谷仓门,白色是墙面上镶贴的白色墙砖纹理的墙纸,纹理有一点点的粗矿,在灯光的照射下有着不同角度的折射显得更有质感,工业风的设计中尤为的出彩。餐客厅阶梯吊顶有层次,客厅顶面上安装轨道灯根据现场的需求可以调整各个角度。让客厅的采光更有层次。


设计亮点
厨房拥有着双窗户的良好采光天然条件,我们就大胆的采用了深灰色的橱柜面板,配上白色的台面,意想不到的好效果。合理的L型料理台,台下水槽的与集中的电器的设计,让业主发挥出更好的厨艺。



设计亮点
主卧打破了常规的布置方式,我们靠床头布置了书桌与书柜,白衣柜摆放到了另一个位置,让我们有眼前一亮的效果。灰色与柠檬黄的搭配也给予了更大的视觉冲击。

设计亮点
卫生间设计非常的有特色,大大的台盆摆放在外,挑空的造型不感觉沉闷与拖沓,地面上花砖特意的设计,让空间灵活起来。然后又独立了两个只有坐便位置的空间,用磨砂钢化玻璃与台面的干区隔断开来,淋浴房也是运用同样的手法,这让我们能联想到日式的这种设计理念,但这也不是完全一样。


设计亮点
蓝色为主色调的卧室,一看就能知道这个房间的小主人肯定是男孩子。窗帘做了时下最时髦的相拼色,一抹柠檬黄的色彩给安静休闲的空间带来了活泼的感觉。简单的家具布置满足小主人的起居与学习,让他慢慢的长大。


设计亮点
L型的书桌充分利用了空间,可以同时满足家里2个人同时办公,墙面凹进去的位置,安装了与书桌同色的层板,用黑色支架固定简约大方有着浓浓的工业风。另一边榻榻米的设计可以让家人们围在一起看书,喝茶,娱乐。
