

装修前
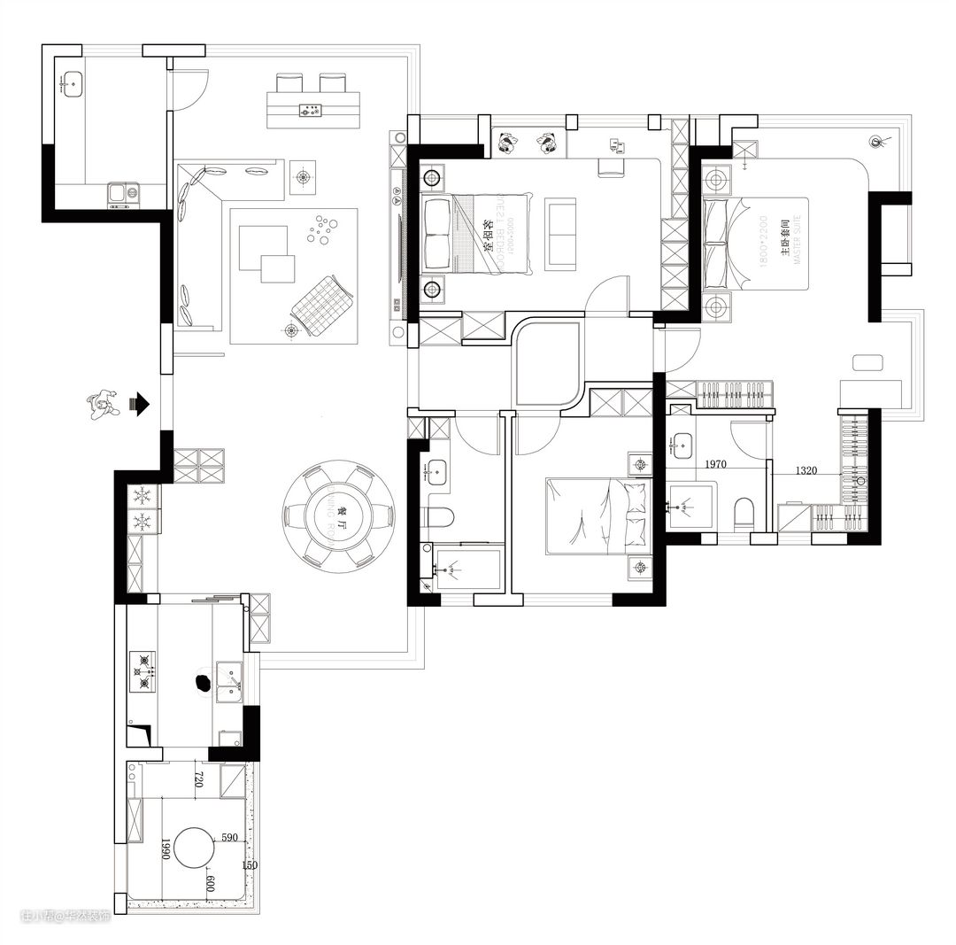
项目信息 项目地址 / 合肥 · 国贸天成 项目户型 / 大平层 项目面积 / 建筑面积170㎡ 项目风格 / 现代 设计施工 / 安徽华然装饰 业主是一家三口,女业主黄女士早年也是家装设计师,为了照顾孩子上学,毅然选择回归家庭。因第一套房子是胡庆来老师设计,整体居住舒适度很赞,所以在装修他们的第二套房子时,也由胡老师全权负责装饰设计。 两梯两户房型,给生活带来高效的便捷性,170平米的面积由四房改为三室,采光通风更佳。 业主需求 1、通往静区的过道被同户型的业主戏称为“曲径通幽”,可见过道是本户型最大的缺点。 2、晾晒在阳台上,不管是对阳台的观感,还是采光都有一定的影响。 3、两个朝南次卧开间不足3m,格局和功能性受影响。 设计改造 1、一部分南阳台成为客厅的延伸,另一部分做成独立的家政间,提高阳台功能性。 2、设备平台变成餐厅的一部分,餐厅空间更加宽敞开阔。 3、与厨房相连的设备平台做茶室,满足男业主品茶的爱好。 4、朝南两个次卧合二为一,兼顾书房和睡眠功能。 5、通过卧室的过道转角处,做对角弧形设计,金属做顶,灯光为辅,把弊端变成亮点。 6、主卫与衣帽间调换位置,提高生活便捷度。







设计亮点
自带气场的高颜值岩板 通铺客餐厅地面,是这个家的亮点 将一部分阳台变成客厅的延伸 日光能更好地透进室内 从而投射出深色系的纹理和线条 感受深色系的张力,让整个空间更加的饱和 弧形造型的处理 实现客厅与阳台吊顶的平缓过渡 弱化横梁的突兀感,灯带通过隐藏式设计 沿着吊顶轮廓打造出独特的造型 极大丰富空间层次 深色岩板电视背景墙作为客厅主视觉的延伸 通过线条分割与木材质的融合 形成余味无穷的质感精致空间 悬空地台与开放置物格适当结合 视觉轻盈通透,抵消深色调的封闭感




设计亮点
客厅看向餐厅的视野,设备平台的扩入 一定程度增加这个区域的使用面积 开放式用餐空间舒张通透 清晰流畅的线条层次 营造了流动性的空间氛围 餐厅墙面合理规划使用木饰面的范围 左右进行色彩比例分配 以独特而创意的视觉效果 提高整体的精致度 餐边柜与鞋柜背对背设计 色调与材质一体化 把控好尺寸,实现双开门冰箱的完美嵌入

设计亮点
半开放式的厨房空间 减去了厚重的墙面隔屏 也减轻了视觉的重量感 洗切炒安排在两边平行线上 动线迂回不重复,灵活机动




设计亮点
主卧两面环窗,大美湖景尽收眼底 顶墙之间弧形收口 线性灯带勾勒吊顶轮廓,提升视觉层高。 半墙木饰面从入户沿墙面一直延续到飘窗 在简约的空间里增加体块 形成连贯的空间感受,营造明暗层次


设计亮点
孩子的房间是两个次卧打通合并而成 顶面横梁以弧形元素修饰,以假乱真,视觉更舒适。 床头延续主卧设计方式,通过体块、灯光打造层次 紧靠的两个窗口配合百叶 拥有呼吸感的同时,也保护孩子隐私

设计亮点
主卫墙地同款瓷砖通铺,强烈的纹理差异 令空间产生丰富的层次感与趣味性 给人视觉上带来无限惊喜和享受

设计亮点
茶室270度转角观景窗,开阔视野 无限延展诗意的广角 素朴的榻榻米茶室布置 哪怕只是简单的茶席、完整的茶具,也颇有情致
