

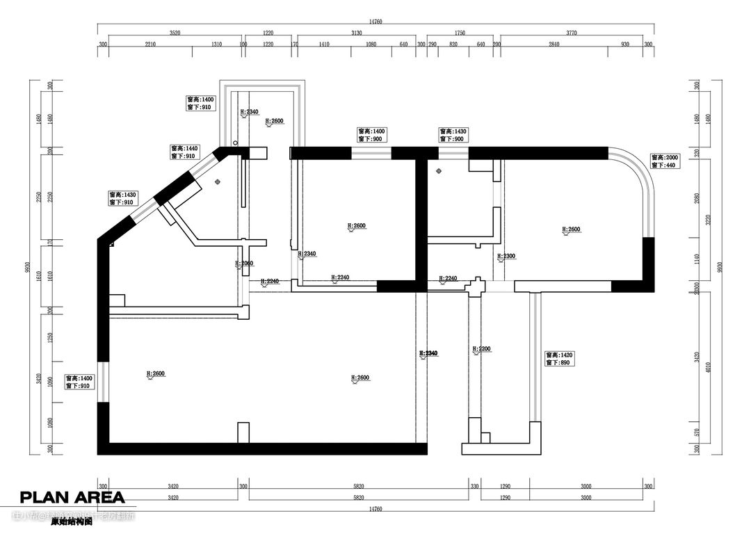
业主需求: 此套户型位于静安区的闹区,周边设施齐全地段也是非常好!房屋是2房2厅2卫2阳台的结构,家里长辈一起居住的,业主对于原户型可以说是非常了解的。 经常设计师现场勘察进行了优缺点分析:小阳台采光最好,但是空间有限,大阳台空间足够但是属于内凹型结构,设计师去测量的时候是四月,外面阳光灿烂但是室内采光却非常欠缺!所以采光和收纳问题是业主此次装修首要解决的困扰! 设计说明: 房子装修完以后入住的主要对象是业主吴姐的儿子大概25岁,平常有喜好拼乐高和收集手办的兴趣,储物柜必须多,希望所有能藏起来的东西尽量收到柜子里,家里看上去空旷干净。风格不喜欢黑白灰过于高冷,也不喜欢原木风的色调!经过和业主的多次沟通,并且结合年轻人的作息习惯,最终落成温暖简洁的现代奶油色,顶面暖白和墙面杏子灰、中性白的搭配往往能够营造出高级和温馨的氛围。


设计亮点
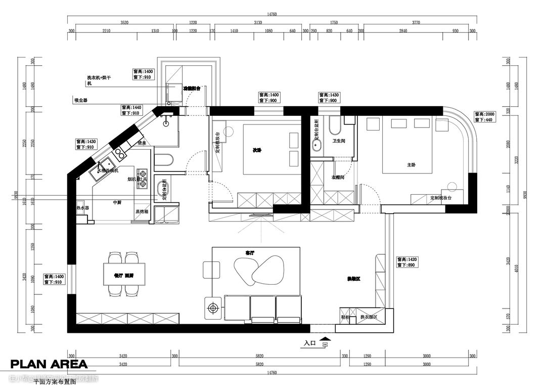
玄关柜多次更改调整,最终完成这样一组简洁的鞋柜和杂物柜组合分类的收纳区域,增加家里的储物功能。窗下的矮柜,特地预留了未开封的快递堆放区,集中开箱的快乐你懂吗?美好有时候就是自己给自己制造的小惊喜。





设计亮点
沙发背景墙和电视背景遥相呼应,整体感高级,质感拉满,通过不同的灯光营造出层次感,个性化舒适的照明环境满足不同的生活氛围,洗墙灯则能激活整个空间。 沙发背景墙大面积用杏子灰,做了深与浅的双拼色,放置四人位的奶油沙发柔软舒适,更温柔耐看。客厅电视柜做了一组玻璃收收纳展示柜,放乐高和手办。




设计亮点
餐厅只保留正常用餐的功能,业主平常在家做饭的几率并不太多,所以除了日常的储物和使用功能 尽量留出更多的活动空间,增加和客厅之间的互联性。 餐边柜延伸至过道横梁处,增加公共区域的整体收纳,靠窗角落做酒柜展示。



设计亮点
厨房是异形的空间,把之前的卫生间的空间借用进厨房,增加厨房电器的功能区,可以同时容纳三个人使用的操作台,增加家人之间的互动性。过道处的冰箱预留的尺寸刚刚好。






设计亮点
考虑和客厅整体性,主卧的门设计了隐框门,房门的颜色特地定制了和墙面一致的杏子灰,关闭的状态几乎看不出门的存在。主卧的落地大圆弧形落地窗,视野非常开阔,定制床和床头柜简约整体。一盏吊灯足以装饰整个卧室。暗藏式的衣帽间方便储物,和卫生间动线一致。 主卧衣帽间做隐藏式设计,能够释放更多空间,而且增加衣物的储物收纳。卫生间隐藏在内部空间,拥有独立的卫生间让居家生活更自由。




设计亮点
考虑次卧放置了1.8米的定制床后,空间受限,衣柜和转角床头柜一体化设计,尽量避免储物死角,方便使用。





设计亮点
公卫干湿分离,奶灰色的柔光砖用同色美缝弱化缝隙,整体感很强。下沉式淋浴房搭配同材质枪灰色的花洒,简约又有质感的低奢风格,细节彰显品位。 内部的阳台放了洗衣机,安装了阳台晾衣架,三面环窗晾衣更方便。这块将狭长的阳台打造实用的家政区,更省心省力。
