

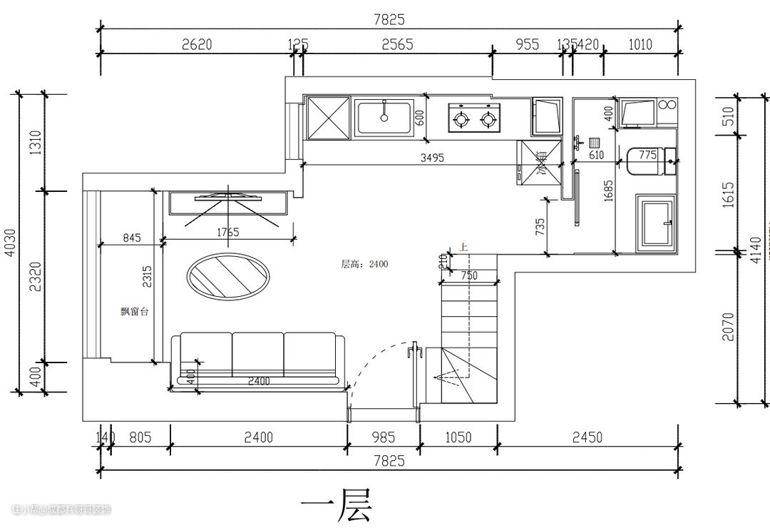
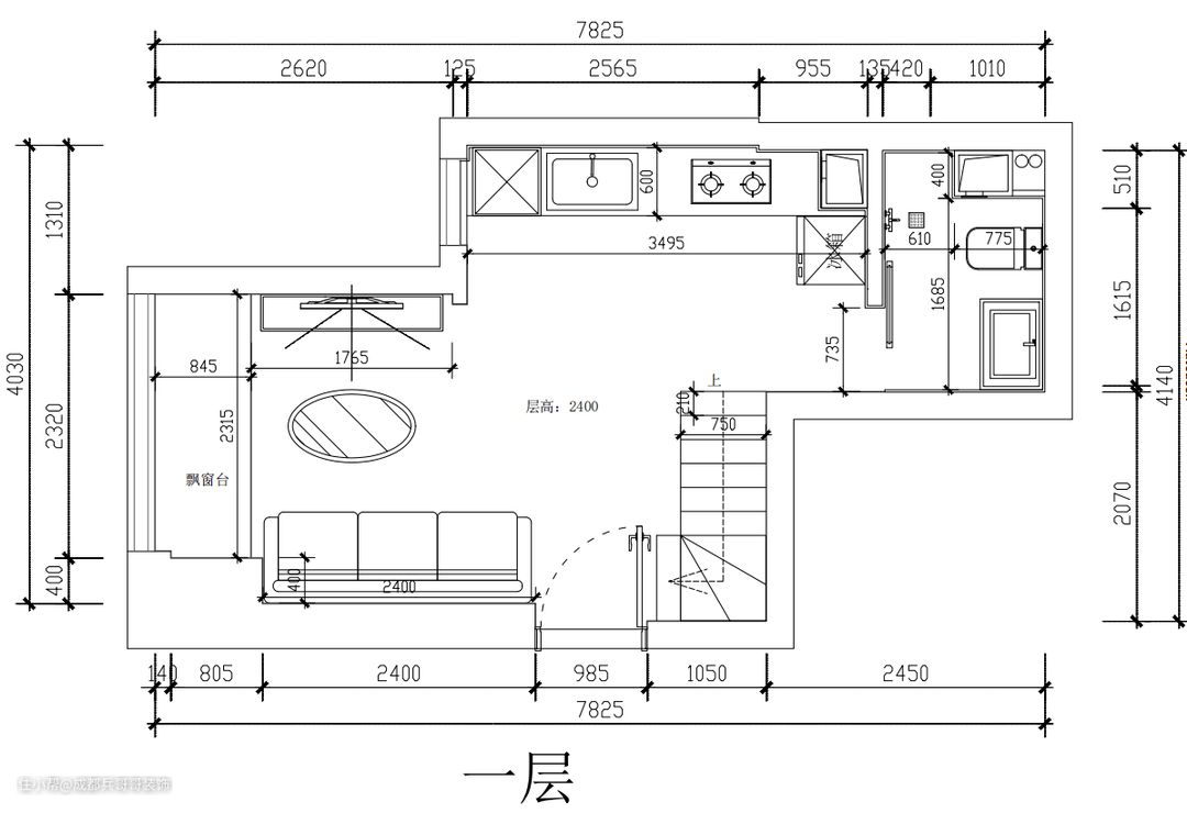
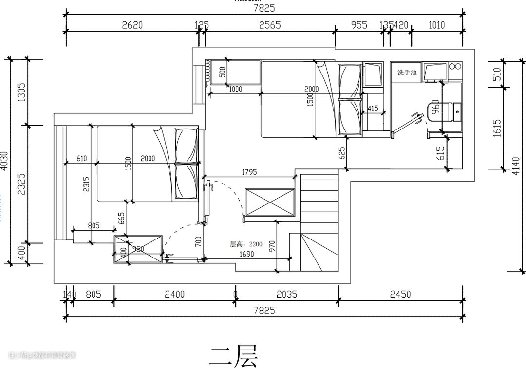
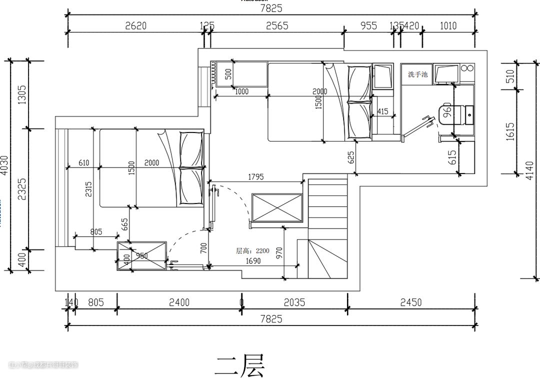
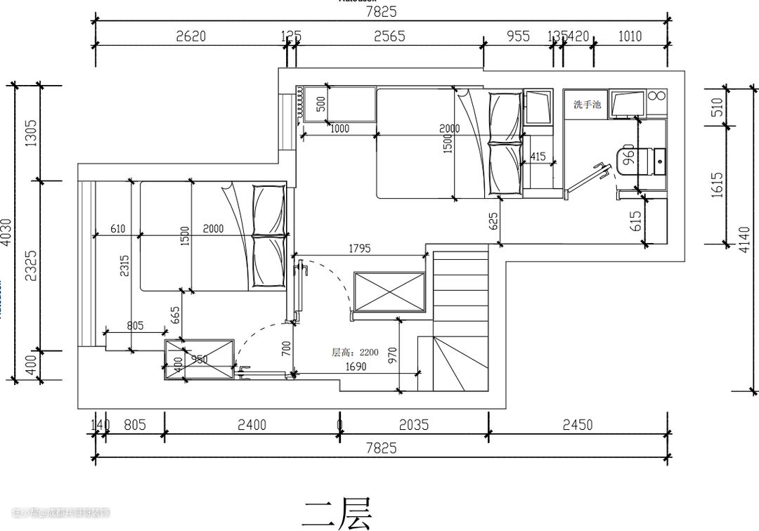
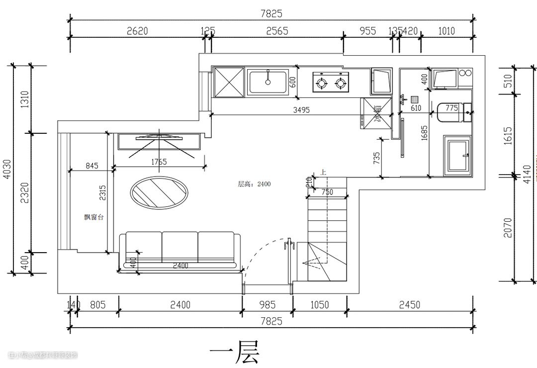
🔷🔹🔸🔶本案户型是长度为7.825米、宽度为4.14米的拐角缺口型loft公寓,层高4.9米,净空4.75米,西面拥有窗户采光通风,如何打造成两层楼小公寓呢?继续看,下面即将揭秘👇👇👇 ❤屋主是军嫂,在成都双流区买了这么一套小loft,是想让孩子在成都读书,慢慢生活发展……所以要求保留两个卧室,室内功能要齐全。设计师结合业主需求理念,最终这套公寓:一楼客餐厨卫+二楼卧室+卫生间,生活动区在一楼,休息静区在二楼,采用7字形楼梯连接一二楼,布局全面合理。








设计亮点
这套loft公寓楼梯是7字形钢结构楼梯搭建,木基层打底,再铺贴木地板。侧边石膏板封平,涂刷腻子、乳胶漆,扶手选用高分子扶手,经济实惠又很耐看。 公寓面积一般很有限,所以需要小空间大利用。楼梯作为一楼和二楼的衔接空间,下方空间用处很多,这套呢做了一整排储物柜,和入户鞋柜都可以一起使用,一举多得。同时也为这样的拐角户型设计解决了空间收纳的问题,你学到了吗?





设计亮点
一楼客厅,开放式设计,客餐一体,拥有独立飘窗台,可以改造成日常休憩区,看看窗外风景还不错~~ 客厅一面墙做电视区,另一面墙安置沙发,墙面白色乳胶漆刷满,简约自然干净,很舒适~~





设计亮点
厨房,同样在一楼,开放式布局,一字形设计,一整排原木色地柜+嵌入式洗衣机+白色门板吊柜,选用侧吸式抽油烟机,右侧还放置了双开门冰箱,整个厨房不占面积,储物收纳十足~~




设计亮点
二楼主卧,靠窗设计,一米八的床+成品衣柜,木地板铺贴,整个卧室就完工了,简洁大方~~








设计亮点
二楼次卧,是儿童房,拥有独立卫生间+一米五的床+成品衣柜,满足室内基本使用功能。整个公寓选用白色为主色调,一楼灰色瓷砖,二楼原木色木地板,视觉感给人一种雅致、自然的氛围感,简约不复杂,还原空间本质的美感……




设计亮点
一楼卫生间,流行式干湿分离,利用很小的空间完成五脏俱全的功能👍长度仅有1.685米,宽度1.385米,面积不到3个平方,拥有马桶区+盥洗台+独立淋浴间,超赞的设计,很喜欢~~
