



💕本套案例位于成都·锦江区融创玖樾台,是一套长度为10.745米、宽度为4.433米、高度为4.2米的loft公寓,原始结构空荡荡的,没有二层结构,需要重新搭建隔层才能拥有两层空间。 💕屋主要求保留两个卧室,阁楼不要满搭建,落地窗户旁边做挑空设计,空间感避免阴沉压抑,喜欢现代极简风格…… ✨✨设计师根据屋主设计想法和需求,做出以下3个亮点设计: 1️⃣.钢结构阁楼搭建方式采用大半搭建、小半挑空的方式,即保留了挑空设计,阁楼上面做卧室的面积也足够; 2️⃣.楼梯选择一字形楼梯设计,节省空间还十分耐看,楼梯下方可以和厨房一体式设计,空间有效利用起来; 3️⃣.由于公寓面积层高有限,所以二楼没有砌墙,那样会显得更加暗淡无光,室内十分压抑,而是选择的玻璃隔断,可以很好地将室外的采光带到室内,空间通透感绝佳。





设计亮点
这套loft公寓,从这个角度,我们可以很好地看清楚钢结构隔了两层楼空间,玻璃隔断+实木玻璃扶手护栏的设计,让空间更加简洁明亮……





设计亮点
这套loft阁楼搭建后,一楼高度2.1米,二楼高度1.84米,一字形楼梯连接一二楼,木地板踏步+实木玻璃扶手,这样的搭配设计让楼梯空间更加简约自然…… 楼梯尺寸是根据常住人口身高设计的,踏步长80cm、踏步宽23cm、踏步高19.6cm,选用的是花纹钢板+槽钢的搭配,做了木基层,卡座形式的楼梯扶手,实用好看不过时,上下楼梯也很舒适。




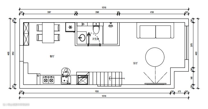
入户鞋柜,设计在阁楼下方一楼空间进门左侧,通顶式设计,中间镂空35公分,方便放置包包、钥匙等物品,底部镂空15公分,可以放置常换穿的拖鞋,储物收纳很足,舒适性也不错~~



厨房,再一楼进门右侧,一字形布局,一整排吊柜+地柜,中间做饭区域,满足日常储物功能,很实用~~ 楼梯下方做了嵌入式洗衣机,台面上方和厨房一体式设计,空间有效得到利用,公寓就是这样,有限空间有效使用,就能让室内变得更加整洁干净~~



餐厅,设计在玄关柜+厨房对面,后期摆放成品餐桌即可,空间预留在这里,简约白的墙面,屋主入住后还可以自由搭配软装设计,让家更有家的温度~~






客厅,挑空设计,保留全景落地窗,拥有电视区、沙发区、休闲区,搭配创意环形吊灯设计,采光效果超赞,生活舒适性更好~~






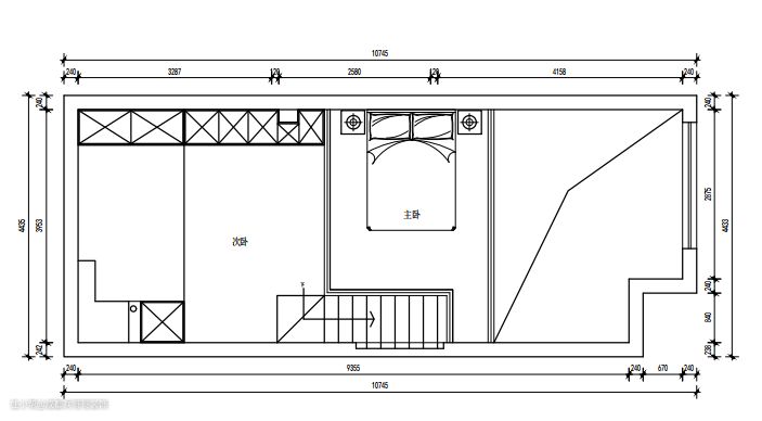
主卧室,设计在二楼,可以放置一米八的床+床头柜,满足基本功能需求。卧室两面玻璃隔断、一面半高玻璃扶手,采用窗帘进行搭配,可以让室内的采光通透感更好~~




次卧室,设计在二楼里侧,钢结构阁楼错层搭建做床架,上方直接放置床垫就行,这样做十分节省层高。次卧拥有一整面墙的储物衣柜+书桌,不仅收纳功能足,而且还可以办公、看书,一举多得,很喜欢~~




卫生间,在一楼中间区域,马桶区、淋浴区、盥洗台,功能全面。墙砖、地砖通铺,防水防潮效果极好~~
