

装修前
设计理念:这是一套现代风格的装修案例。作为一套空间足够功能齐全的复式住宅,稳重不出错的现代风格显然更为适合。全屋遵循现代的舒适简约特性,设计师将整体颜色定调为低饱和色系,局部辅以橙、蓝色系点缀。软装搭配上运用木饰面、岩板、皮质和绒布等诸多现代材质,打造出温暖而惬意的现代美宅,一起来看看吧。
装修后
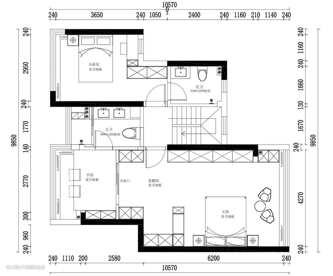
▲ 一楼平面布置图:本案为上下两层的复式户型。除了满足会客功能+餐厨空间外,另设一间次卧,满足休息与社交的双重属性。双阳台的户型,南北通透,以便更好地实现空间对流。 ▲ 二楼平面布置图:以休憩作为主要功能出发,重新整合主卧,集齐睡眠区+梳妆区+书房+主卫,实现功能齐全的套房设计。小孩房位于西北一角,与次卫毗邻而设,保证各空间的隐私。



设计亮点
▲ 入户开门即见厅,右侧沿墙定制通顶玄关柜,转角与餐边柜自然衔接。站在过道视角看整个入户大景,运用低饱和色系,简洁大方。
软装搭配
▲ 白色柜体干净清爽,中部和底部进行镂空处理并嵌入灯带,整体视觉效果更为美观,也点亮了屋主归家时的一盏心灯,卸下一身疲惫。





设计亮点
▲ 视线左转进入客厅空间,纳入阳台后,空间更显开阔。落地窗设计,窗外美景一览无余。灰白色调简雅舒适,呈现出柔和的空间形态。沙发背景由浅色护墙板+木格栅拼接而成,一幅橙色油画适时提升了空间整体韵味,在灰白构建的空间内,格外出彩,成点睛之笔。
软装搭配
▲ 电视墙所占面积不大,但有藏有露的设计,视觉上更显高级。石膏板壁龛+悬空电视柜,最大限度的补充空间收纳能力,增强实用性;从阳台看向公区视角。地面以750x150的哑光砖通铺,加上双阳台的户型,南北通透。大面积落地,搭配白色梦幻帘,光影交织。
![]()
设计亮点
▲ 坚持客餐厅一体的开放设计,并沿用灰白色系,清冷不失温柔,在简约中透着清透气息。挑选轻奢岩板餐桌居中而设,功能清晰明朗。

设计亮点
▲ 厨房,依托墙面实现L型布局,浅色橱柜简洁大方,增加呼吸感与装饰性。延用灰色哑光大砖,打造干净整洁有序的烹饪和操作环境。


设计亮点
▲ 作为承上启下的楼梯一角,使用深色调的木质扶手与踏步,与白色栏杆形成深浅搭配,围合出复古优雅的空间氛围,回归到家的核心。




设计亮点
▲ 二楼主卧进行重新整合,实现休憩+梳妆的双重功能,打造高品质的套房。地面选择温润的木地板通铺,结合落地窗设计,明朗温柔;主卧依然运用低饱和色调,大面积留白处理,温柔清雅。左侧摆放白色毛毛虫懒人沙发,为这清冷中性的时光里添了几抹温柔与惬意。
软装搭配
▲ 为了满足屋主收纳需求,床尾定制一整墙嵌入衣柜,一门到顶搭配黑色极简拉手,简洁大方足够收纳四季衣物,将凌乱收于无形之中;主卧入户口,利用L型衣柜并结合悬浮梳妆台,打造步入式衣帽间。梳妆区,开放格+玻璃柜门的设计,暖光灯带嵌入+射灯辅助照明。

设计亮点
▲ 书房删繁就简,没有过多的装饰,一桌一椅一书柜组成空间的全部。书桌临窗而放,借助自然光,双面轻纱微微晃动,透着自然之美。

设计亮点
▲ 主卫干湿分离,选用水波纹长虹玻璃隔断干湿两区。墙地砖一体,也以灰色为主,与公区呼应,清简干净,打造舒适清爽的卫浴环境。
