

装修前
作为业主女儿送给爸妈的退休礼物,这套房子中的每一处装修细节都充满了“小心思”。既满足了老两口的基本生活需求,又营造出了温馨舒适的生活场景。 在此基础之上,设计师还结合了多种现代材料与技法,在装修设计中融入了宋代美学的淡雅与静柔。如果有同样喜欢新中式的朋友,不妨借鉴一下。
装修后
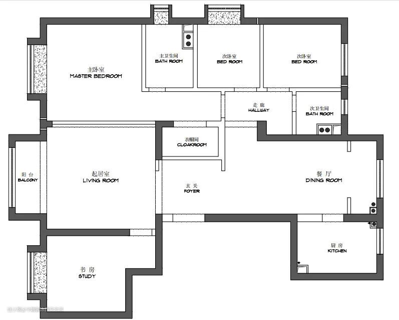
原始户型“封闭厨房空间不够用”“卧室空间进深窄,有效利用面积小”等都是业主希望得到改善的问题。 原玄关衣帽间位置不合理,客餐厅空间比例失衡,造成整体空间通透性较差,且过道位置动线十分不合理。 改造后,新建墙体封堵原过道,拆掉原衣帽间,作为新的过道。 改换左侧主卧门洞位置(向内推),右侧两间卧室合二为一,这样改造后,玄关刚好正对一条开阔笔直的走廊。


设计亮点
全新过道顶面设计为一幅舒展开来的画卷(卷轴式设计),画卷尽头是应用了由新型建材铺装的青瓦背景墙。 这面青瓦叠叠的装饰墙,是业主本人在装修前就注意到的一种新型材料,一直想要应用到自己的新家,我们的设计师在了解其需求后,专门陪同业主一同前往秦皇岛源头厂家进行了考察,之后才有了它的落地。 这里配以极具中式风格的灯具,营造出一种独特的传统韵味。




设计亮点
宋代美学遇上当代生活方式 照样遥遥领先 客餐厅采用斜顶配以线性灯,穿越古今的碰撞让中式风格焕发出新的生机。
软装搭配
墙、地砖材质均选用哑光砖,地面淡灰色水泥基底汲取些许大理石纹路,凸显宋代美学的淡雅与静柔。 墙面砖以水墨花鸟入景,许空间以灵动,让中式美学在空间中微微漾开。 客厅的极简留白参考了徽宗笔下的瘦金体,塑造出去繁为简,大道至简的中式意境。 点亮的栅格落地灯配以罗汉床,与清香同游,仿佛再等酒香醇。 书房隐形门采用白色轻奢实木格栅,既升华了室内极简留白的设计理念,又增添了室内的层次感。


设计亮点
由新建墙体一侧所延展出的新空间与原餐厅相结合,重新规划为餐厨一体化空间。 原厨房空间直接作为家政间及入户玄关功能使用。
软装搭配
洗衣机、烘干机,由传统竖排叠放改为平放,这样省去了很多弯腰的不适,为客户提供了更为舒适的操作空间。

设计亮点
由新建墙体一侧所延展出的新空间与原餐厅相结合,重新规划为餐厨一体化空间。


设计亮点
厨房墙面使用带有水墨丹青画纹理的瓷砖进行铺贴,在新中式的主调风格里彰显雅韵。


设计亮点
主卧以更为柔和的明装筒灯取代主流趋势的主灯布置,更适合父母对于灯光的舒适度。
软装搭配
床头背景墙是我们选用艺术漆所打造出来的,整体透露出一种宋代美学的氛围感。


设计亮点
我们整个案例中最为浓墨重彩的空间是业主女儿的房间,这里使用到的跋步床体现出了宋代美学的古朴风雅,形成了一处以跋步床为主体构造的微景观。
软装搭配
在卧室的材质中,我们还应用到了竹藤这种最古朴原始的方式来显示宋代的美。



设计亮点
同时,新建墙体另一侧则改造为全新的卫生间干区,以此来实现卫生间干湿分离,淋浴及浴缸的多功能兼顾。
