


💗本套案例位于成都市·梵锦108,是一套长宽为8.35m*3.09m、层高为4.2m的loft公寓,需要进行隔层搭建构筑双层空间。原始户型空空荡荡,经装修搭建后拥有两层楼居室,空间得到完美利用。 🏡屋主是位90后小姐姐,打算装修出来自己住,所以比较注重整屋效果和设计空间感。 ✨先来看看屋主有哪些设计想法吧: 要求保留两个卧室,但不要太过压抑;卫生间要求干湿分离;楼梯尽可能节省空间;风格简约简洁简单。 ▶公寓装修搭建设计开始: 第一步设计:设计师和屋主确定平面方案、效果图、施工图; 第二步搭建:纤维水泥板钢结构结构; 第三步装修:水电、防水、木工、乳胶漆、安装等阶段。



设计亮点
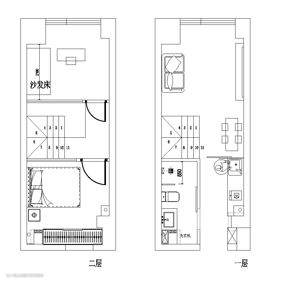
这套loft全景上看一楼客餐厨卫,二楼两个卧室,U形楼梯设计,空间布局合理明确。




设计亮点
这套公寓钢结构采用镂空两边搭建的形式,U形钢结构楼梯连接一二楼,中间部分小挑空,可以很好地降低层高不高,所带来的压迫感。 ▶卧室两侧不砌墙,选择全景玻璃推拉窗,将室内的采光、通透感展现得淋漓尽致。 ▶楼梯和二楼走廊的旁边设计实木玻璃扶手护栏,原木色的配色,和整体风格相呼应,和谐统一,简约不过时。





设计亮点
这套公寓楼梯是由钢结构搭建而成,采用花纹钢板+槽钢的搭配,再铺贴木基层和木地板,实木玻璃扶手选择卡座形式衔接,巧妙地节省了楼梯占地空间,仅需1.5米*1.5米即可,很实用。



设计亮点
公寓钢结构搭建好后,阁楼下方入户右手边便是鞋柜,面积不大,但足够使用。通顶式的设计,简约白+原木色的色彩搭配,储物收纳得以满足,看上去非常耐看。




设计亮点
客厅,位于一楼阁楼下方靠窗的位置,采光整体效果不错。设计了沙发区、电视区、茶几区,功能布局齐全。




设计亮点
厨房,安装了无地轨推拉门,开放封闭式两用,入户右侧一字形设计。一整排吊柜+地柜,中间做饭区域,满足日常储物功能,实用性不错。





设计亮点
主卧,再二楼里侧,摆放了一米八大床,安装了嵌入式上下衣柜,满足四季衣物的收纳,不占空间很实用。




设计亮点
二楼次卧做多功能房间,既可以做书房、办公室,也可以做卧室,一屋几用,很方便。




设计亮点
卫生间,设计在阁楼搭建下方入户左侧,面积5个平方左右,满足流行式干湿分离,盥洗区、洗衣区、马桶区、淋浴区,功能全面,视觉上整洁干净,很喜欢。
