
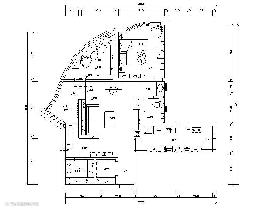
设计亮点: ① 原来的次卧改造成衣帽间、入户换衣间,并同时增大客厅空间。 ② 没有常规的餐厅设计、而是在原次卧靠窗空间设计了一个西厨,偶尔煮煮咖啡、烤烤面包非常惬意。 ③ 卫生间改造干湿分区,采用仿古砖铺贴,保证铺贴效果的同时质感非常棒。 ④ 原来的阳台一分为二,一部分作为地台书房,冬日的阳光洒进窗户,再准备上文房四宝。阳台的另外一部分就是肉肉的天下,各种植物,闲暇之时种肉肉既能打发时间,又能看着一盆盆生命的发展。



设计亮点
将原户型中的次卧改造成入户换衣间、衣帽间,并同时增大客厅空间。入户换衣间也是隐藏的玄关区域,有换鞋凳、挂衣区、放鞋区,还有一排挂钩可以收纳钥匙等零碎小物品。 换鞋凳用复古的毛巾做铺盖,增加怀旧感。开放式的格体里放满了鞋盒,里面收纳了屋主的鞋子,因为这里不常住,所以在有限的区域里完全可以满足屋主的收纳需求。





设计亮点
深色系的原木地板也带着做旧的气息,整个家色调和谐统一。电视背景墙是留白墙面+简洁收纳的设计,除了电视机区域,其它都用置物板增加收纳空间,放展示品和书籍,视觉上清新又高级。一旁拱形墙后的区域是卫生间和卧室。 所有的墙面都没有做造型,而是定制了“或隐或现”的通透型书架,不拘泥于收纳用途,旨在营造一种悠然自得,独特生活的空间氛围,形成视觉乐趣。刚完工时感觉空荡荡,但家具等物品搬进来之后,平衡的生活空间得以实现。 从客厅望向阳台视角,家里的茶几、边几,收纳架都是用原木和铁艺材质组合而成的,很有时代特征,简约而复古的造型,将小屋填满。



设计亮点
餐厅没有做常规的设计,而是在原次卧靠窗空间设计了一个西厨,偶尔煮煮咖啡、烤烤面包非常惬意。屋主积极向上的生活方式,投影于旧家具及旧物品的共同居住空间中。白色柜门、黑色笑脸拉手、原木搁板,餐垫,满满手工感。

设计亮点
厨房靠墙做了I字形橱柜,另一侧墙面留出壁龛,用来置物,整体是走廊式的格局。


设计亮点
原来的阳台一分为二,一部分作为地台书房,冬日的阳光洒进窗户,再准备上文房四宝。阳台的另外一部分就是肉肉的天下,各种植物,闲暇之时种肉肉既能打发时间,又能看着一盆盆生命的发展。每一盆绿植、每一个摆件、每一个家具的选择,都留存着屋主热爱生活的痕迹。
