
装修前
这套129㎡的房子,是杭州一对90后夫妻的家。他们的孩子刚刚学会走路,好奇心最是旺盛的年纪,咿呀着在家的各个角落探索,所以在设计时做更多的放大空间,将客餐厅玄关甚至阳台的连通,小朋友可以在家里尽情的玩耍。小朋友有很多玩具,设计中做了很多储藏收纳空间。业主也有玩游戏的爱好,在餐厅旁边做了休闲阅读区,休闲读书工作三不误。
装修后
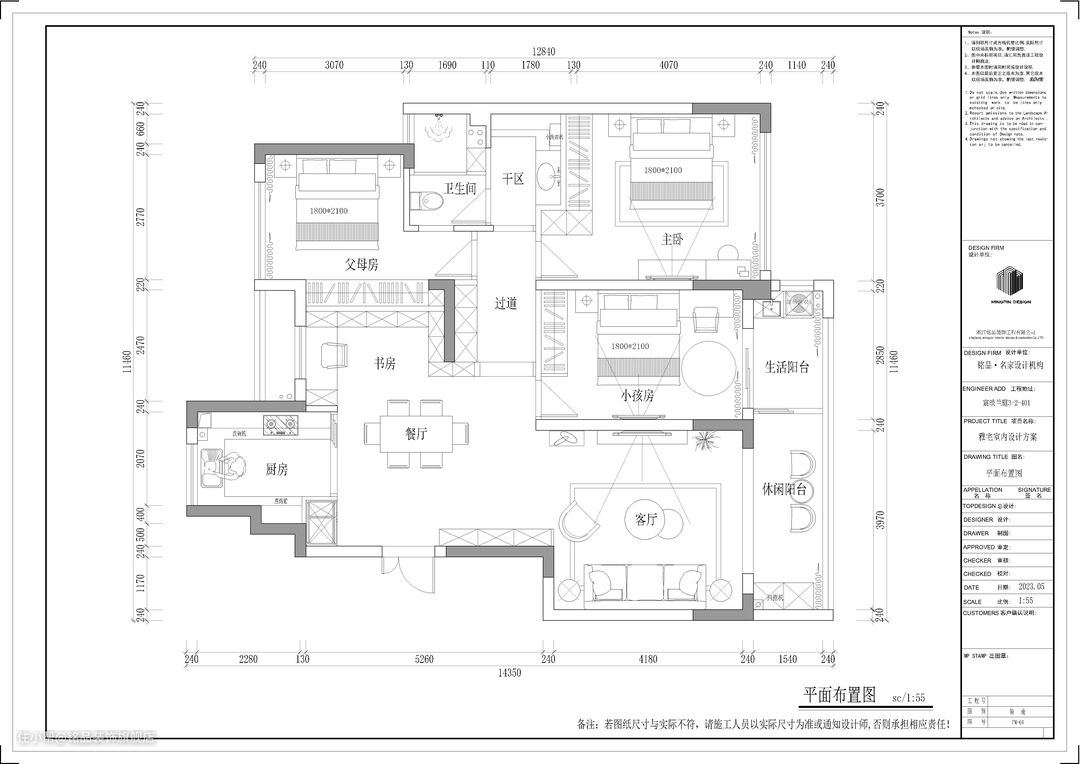
平面设计图 项目地址 / Address:宸映兰庭 设计施工 / Co :翡曼软装 风格 / Style:法式 项目面积 / Area:129㎡ 这个阶段的家庭,多半以孩子为中心,优先满足孩子成长的需要。设计师着重增加公共空间的开放性,方便家人随时照看小baby。 设计亮点 1.客厅和阳台合并,公共空间更为开阔 2.餐厅和书房打通,设计开放式休闲阅读区,集办公休闲阅读一体 3.冰箱移动到餐厅,释放厨房空间 4.定制大量储物柜,增加收纳面积 #户型 #户型图 #平面图

设计亮点
新家融实用与颜值为一体,每个细节都被用心设计。大门右侧定制整排鞋柜,黄昏归家时,感应灯自动点亮下方放鞋区,外套和包包则挂在换衣区,隔绝户外的尘土。 动静区由过道相连,入口改造成弧形门洞,无论看多少遍都不减心动。见缝插针定制整墙储物柜,解决未来二十年收纳难题。 #玄关 #玄关柜 #弧形





设计亮点
家的功能核心围绕着公共区域建立,空间打通后,明朗通透的环境不由让人心生欢喜。地面通铺柔光砖,搭配珍珠白乳胶漆,温柔了一室光景。 水晶吊灯投下璀璨光影,拉升客厅的档次。悬浮电视柜不仅方便扫地机清洁,还能将各种插座都藏在内部,防止幼儿玩耍。 硬装删繁就简,灵活运用经典线条和角花进行装饰,丰富墙面肌理效果,再配合实木、绿植、皮革等元素,创造出轻法式复古,又颇具松弛感的house。
软装搭配
#客厅 #电视柜 #地砖#沙发 #法式



设计亮点
小书房和餐厅之间移除了隔墙之后,利用弧度弱化横梁的存在感,空间更具可塑性。 150°弯曲的金属吊顶,简洁又不失柔和,为餐厅提供暖色光晕,每次用餐都仪式感十足。 #餐厅 #书房 #吊顶
软装搭配
餐边柜的设计也很有亮点,是简约又带点复古的造型门板,搭配金属圆形拉手,还有跟家里拱门相呼应的半圆弧玻璃,组合下来的效果真的太喜欢啦。 餐桌是长桌+单椅和长凳的就餐形式,简约又不失个性。白灰色系的色调符合空间的搭配。 #餐边柜 #餐厅 #餐桌

设计亮点
整个厨房呈U型空间布局,洗—切—炒合理分布,做菜更轻松。奶咖色UV高光橱柜,高级耐看又易清洁打理。柜门做了无拉手造型,视觉整体性更强。 #厨房 #橱柜 #收纳



设计亮点
主卧背景墙选用牛油果绿拼色,温暖又清新,石膏线条的点缀更有法式精致元素。咖色系的床、窗帘和木地板,让空间多了几分自然气息。床尾的斗柜衔接书桌,具备一定收纳,也营造出单独的梳妆空间。 #卧室 #背景墙 #梳妆台


设计亮点
次卧床头背景一分为二,上半奶油下半胭脂红,保持设计感的同时让人感觉很温暖。灯具选了带金属的壁灯,和黄铜把手相呼应,勾勒法式浪漫奢华的特质。床侧做了奶白色的通顶衣柜,和墙面融为一体,柜门勾勒线条,搭配金属拉手,增加精致感。 #卧室 #背景墙 #衣柜

设计亮点
卫生间干区做了很多收纳柜,整体是浅咖色的柜体,吊柜布满墙面,延伸出下置物格,日常囤货用品都有处可放。台盆柜做了L型转角设计,和柜体融合于一体,台面也做了扩充。 #卫生间 #全屋定制 #台盆

设计亮点
开放式书房定制书桌、抽屉、格子、储物柜,既结合了阅读、休闲、办公的功能,又能增加储物面积。 柜门局部采用椭圆状拉丝玻璃,自带一份朦胧的美感,黄铜拉手轻巧点缀其间。 #书房 #书桌 #书柜


