





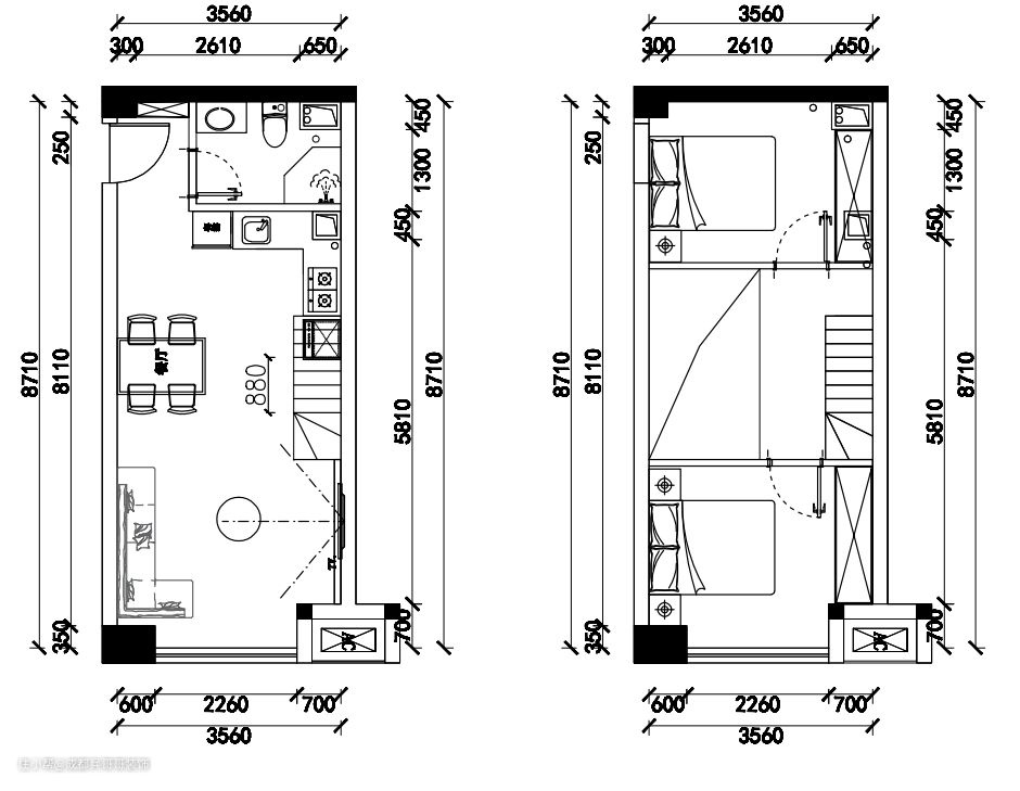
🔷🔹🔸🔶 本套案例位于成都市·昭觉寺附近楼盘——梵锦108,是一套长宽为3.56米乘以8.71米、层高为4.2米的loft公寓,刚开始的户型结构什么都没有,经过钢结构二层搭建后拥有两层楼空间。 屋主要求保留两个卧室,空间感要好不压抑,喜欢暗黑色系,自己居住,注重品质工艺、材料选材,室内主打简单、轻奢、自然、雅致。 🌟装修前: 钢结构搭建选择纤维水泥板结构铺设,楼梯是一字形转角楼梯设计,整体选择中间靠墙挑空搭建的方式,隔层花费不多控制在1w米左右。 🌟装修后: 钢结构搭建好后,进行水电、砌墙、木工、乳胶漆等施工阶段。(建议:二楼家具,在扶手安装之前拿上楼哦~) 1️⃣一楼:客厅 餐厅 厨房 卫生间 2️⃣二楼:主卧 次卧 过道


设计亮点
这套公寓整体格局是两房两层楼空间,中间部分挑空4米多的高度,室内采光、通透感绝佳。




设计亮点
公寓挑空设计,可以很好地增加室内采光效果,而且很好地降低层高带来的压抑感。



设计亮点
这套公寓楼梯,是一字形钢结构楼梯搭建而成,木地板的踏步+实木玻璃扶手+楼梯下方延伸做厨房,空间利用率达到极致,视觉上也更加整洁美观,简约干净。




设计亮点
客厅,设计在阁楼搭建下方靠窗位置,开放式格局,无主灯设计,地砖选择雅致黑色,电视背景墙个性化造型,悬浮嵌入式设计,底部还放置了成品电视柜+可爱艺术摆件,空间氛围感瞬间烘托出来了。




设计亮点
餐厅,设计在挑空区域,空间感不收约束,视觉上显得简约、洒脱。摆放的是成品餐桌,黑色岩板材质,和整体风格相搭配协调。



设计亮点
厨房,设计在阁楼搭建的下方,和楼梯底部空间一起利用,L形转角设计,一整排吊柜+地柜,还嵌入了冰箱和洗衣机,将有限空间有效使用起来,实用性太赞了。




设计亮点
主卧,设计在阁楼搭建后的上方靠窗位置,放置1.8米的大床、床尾做一整排嵌入式储物衣柜,功能布局十分全面。




设计亮点
次卧,位于二楼最里侧位置,一米八的床、通顶式衣柜、书桌,满足基本功能使用。卧室两侧都不选择砌墙,而是全景玻璃窗设计,可以很好地增加室内采光、通透感效果,生活舒适性极好。



设计亮点
卫生间,是后期新砌的墙体,在入户最里侧位置,面积4个平方左右,却五脏俱全,拥有悬浮浴室柜、智能马桶区、淋浴隔断、洗烘一体机,整体以黑色系为主,与全屋设计风格一致,视觉感高级又美观。
