设计亮点





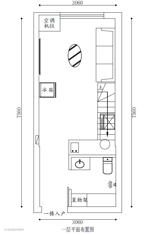
💙本套案例位于成都市·双流区·和光逸境,是一套长宽为3.06米*7.56米的loft公寓,层高净空有4.05米,屋主要求保留一个卧室,一二楼都要有卫生间,喜欢现代简约风格。因为只有一个窗户,所以靠窗一侧没有搭建隔层,而是挑空设计,室内整体的采光感、空间感也更好。
公寓全景



设计亮点
这套挑空小复式loft,需要搭建二层阁楼,选用钢混结构搭建,一字形转角楼梯衔接一二楼空间,全景看上去一目了然,一居室设计,享受惬意独居生活。
公寓楼梯




设计亮点
楼梯,一字形布局,钢结构踏板搭建而成,后期安装大理石踏步,楼梯长宽高是:80cm*23cm*19.6cm。 楼梯下方空间也可以多方面利用,这一套案例是和厨房一体化设计,十分节省空间,很实用。
客厅




设计亮点
客厅,挑空4米多的高度,全屋铺贴木地板,摆放了原木风实木电视柜、茶几区、沙发区、办公区,顶部安装了风扇吊灯,设计新颖独特,生活栖居性很好。
厨房


设计亮点
厨房,位于阁楼下方,L形布局,楼梯下方做嵌入式洗衣机,台面上方还可以储物,旁边呢便是做饭区域,功能设计全面合理。设计师巧妙地将有限空间有效利用了起来,看上去干净美观。
主卧





设计亮点
卧室设计在二楼,阁楼搭建好后,上方设计主卧室,还拥有独立主卫,平时不用刻意上下楼找卫生间,很方便,设计考虑周到。侧边还设计了通顶式衣柜,满足四季衣物收纳,空间上十分整洁明亮。
卫生间



设计亮点
一楼卫生间,设计在入户右侧,安装了极窄式推拉门,拥有盥洗区、马桶区、淋浴区,满足日常使用功能。现代简约风配色,与整体风格协调统一,简单明了。
主卫


设计亮点
主卫,再二楼最里侧,安装玻璃推拉门、马桶、洗漱区,面积不大,但五脏俱全,使用上很方便,日常生活舒适性也很好。
