
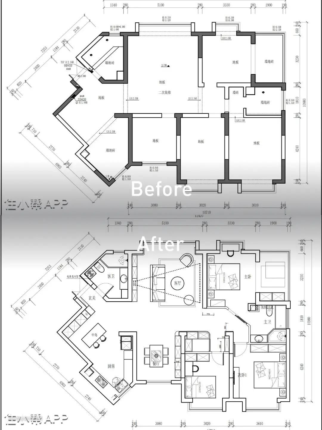
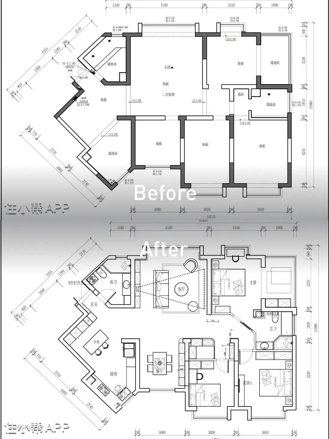
装修前
本案业主丛女士是一位非常开朗大方的东北人,喜欢酷飒的攀岩和骑行,也钟爱独属于家的那一抹“暖黄”。
装修后
餐厅做了一组木质储物柜,方便置物+储物。但是你一定想不到这里还是一个隐藏式房间~ 储物柜的右手边不是什么储物柜,而是一个1.5*2m的翻板床,这便是那图纸上不存在的“第四个卧室”



设计亮点
拆除入户门头,反光灯槽下吊28cm,安装洗灯墙,形成一个视野开阔的步入式玄关过渡区。抬眼便是一组玄关鞋柜+半墙洞洞板设计,1.74*0.3m超大容量的鞋柜让丛女士再也不用担心鞋子没地方放
软装搭配
钥匙总是随手一扔,没有好出去怎么办?洞洞板一招解决问题,原木色洞洞板不仅解决了收纳的难题,让钥匙有个“家”,同时与全屋整体空间色系完美搭配,相得益彰







设计亮点
这里既是栖居的家,也是让身心放松的天堂,藏在大框架下的小细节都是对设计品味的高度考验,选用原木和白色的简单配色,让大面积落地窗把窗外四季变换的美景变成了家里的另一道美景 “不怕麻烦,只要质感”,这是我们设计师和业主达成高度一致的对内自省和对外诉求。本案全屋都选用艺术漆,整面墙采用极考验技术的平涂刷色工艺,整砖铺贴0.75*1.5m的瓷砖,通铺地暖,温润的质感让这个家由内而外自带温度 书柜墙做半径30cm的弧面造型,满墙书柜中暗藏灯带。上半部分是开放式藏书柜,下半部分作储物柜,藏书收纳两不误
软装搭配
客厅选择了2.5*1m三人位沙发,设计时我们便考虑到沙发尺寸与书柜尺寸的匹配,现在看来倒是与后面的满墙书柜相得益彰





设计亮点
原本餐厅步入处是有一堵墙的,考虑到实际生活习惯和业主对设计的诉求,我们将它拆除,让门少一点,这样视野也更加开阔
软装搭配
餐厅做了一组木质储物柜,方便置物+储物。但是你一定想不到这里还是一个隐藏式房间~储物柜的右手边不是什么储物柜,而是一个1.5*2m的翻板床,当时丛女士展示给摄影师看的时候还开玩笑地跟我们吐槽这是她爸妈强烈要求的,说是“这里宽敞”


设计亮点
厨房铺贴750*1500mm的墙砖,这种同色系的大砖一铺上去开阔感瞬间铺面而来。因为设计的是开放式厨房,所以丛女士对跑烟问题有所担忧,当时也是来我们的电器城一个个试了,最后确定了方太的烟机灶具,真心安利给大家
软装搭配
为了增加厨房的实际利用率和操作空间,我们在厨房设计了一个1.4*0.8m的中岛吧台。将原顶面刷白与整体空间氛围互相呼应,烹饪区的嵌入式筒灯+吧台区的主灯起到了过渡式设计和照明的作用





设计亮点
拆除阳台隔断,这样你就能拥有一个视野极佳的江景房卧室;抬高2.8cm,小范围铺设地暖管,这样你就能拥有一个可以弹琴唱歌摆烂的暖和地台了,这样惬意美好的生活简直不敢想象
软装搭配
在没有脚的“怪物”身上无所事事躺一天是种什么体验?丛女士说当时一眼就爱上了这个小怪物,来自法国Ligne Roset的毛毛虫沙发,以仿毛毛虫外形示人,轻松夺取我们的眼球,成为空间中的视觉焦点,相比有实木框架的设计,全海绵填充的毛毛虫沙发,没有僵硬的骨架,坐感更软弹舒适,真的是让人一坐上瘾


设计亮点
因为丛女士的好人缘,所以家里的客房总是人气十足。一应设计也都是主卧的标配,书桌与柜体的结合式设计保证了功能性使用的目的,又不会显得拥挤、突兀


设计亮点
客卫敲掉半墙,将踏板拆除,在保证安全的前提下让它的使用面积大一半!
软装搭配
无论是主卫还是客卫都设计了下沉式淋浴房,铺设了防滑地砖+电热毛巾架,对生活的热爱就是体现在对生活品质的要求
