



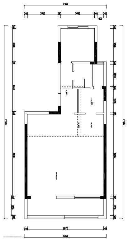
装修前
业主年龄50岁左右,购置这套房屋作为儿子的婚房使用,儿子希望有一个专门的电竞房和接待厅,卧室有一个专属衣帽间,并增强全屋收纳能力。
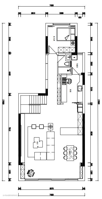
装修后
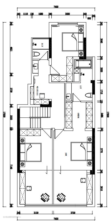
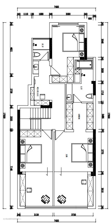
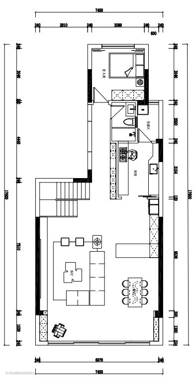
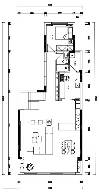
利用客厅的横厅布局,打通生活阳台与客厅间的围墙,提高采光率,增大客厅面积与收纳能力。 将二层超大主卧拆分成两个卧室,并打通卧室与阳台之间的围墙,安装收纳柜,做成一个灵活的活动区域。


设计亮点
入户见玄关,3m超长玄关打造一组到顶玄关柜,储物空间足够了。我们采用分段式设计,最右侧收纳柜采用玻璃柜门与隔断式设计结合,放置业主喜欢的盲盒、手办。中部留下一个超高空间,可悬挂业主收藏的书画等,最下方则是家用拖鞋的容身之所了。
软装搭配
冷白色柜门搭配灰色花纹地砖,在灯光的映照下,迎合业主对时尚的追求。


设计亮点
沿着玄关向左来到厨房,原门洞区域较窄,我们拆掉墙体,并安装双联动式玻璃推拉门,便利一家人的出入。
软装搭配
厨房整个空间呈一字型布局,左右两侧分别打造两排橱柜,收纳厨房杂物。左侧的橱柜还延伸了转角的区域,为厨房台面留下更大操作空间。


设计亮点
岛台作为厨房与餐厅间的分割线,赋予空间层次感的同时,也能与客厅形成良好互动。岛台上方做一组收纳柜,放置业主的杯具、茶饮等。下方预留插座,装上饮水机,一个小型吧台就形成了,台面通铺花纹瓷砖,打破沉闷之感。灰色双开门冰箱内嵌入柜,不易落灰,美观与实用并存。
软装搭配
矩形岩板材质餐桌搭配跳色餐椅,在线形灯具的映照下,烘托出温馨的就餐氛围。


设计亮点
整个客厅呈横厅布局,拆掉客厅与生活阳台间的隔墙,空间更显开阔,采光率也大大提高了。沿墙面左右两侧分别打造两组到顶收纳柜,其中预留两组明柜,为业主留下创作空间。
软装搭配
拼装式绒布沙发配置撞色抱枕,搭配几何形茶几,极具设计感。超英寸电视内嵌冷白色电视柜,后方墙面拼贴花色瓷砖,用明亮的色彩来奠定这个家奢华温馨的基调。客厅顶部悬浮式吊顶搭配黑白色灯带,简单却不敷衍。



设计亮点
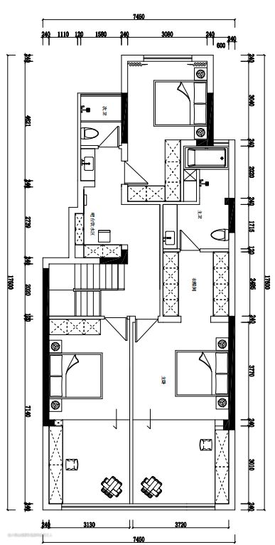
沿楼梯来到二楼休息区,原户型近30㎡的超大主卧被一分为二,并且拆掉阳台的落地窗,融入其中。利用阳台采光良好的优势,沿墙面打造一组3m长到顶收纳柜,传统分段式设计,中部预留空间做书桌。阳台地面和天花板通铺深色木质地板,环保性高,保温性好,一个灵活的休闲区域应运而生。
软装搭配
卧室整体同样采用无主灯设计,为保证照明需求,在床头顶部嵌入灯带,床头柜装饰一盏暖色系吊灯,打造舒适的睡眠环境。


设计亮点
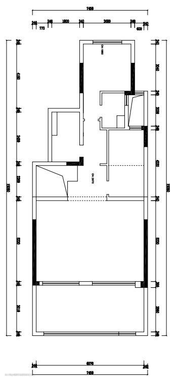
走廊最深处便是我们的主卫了,依旧沿用黑白灰色调,用简单的色彩来凸显这个家沉稳内敛的调性。
软装搭配
卫生间干湿分离,圆弧形化妆镜周边贴上LED灯带,明亮且具有设计感,洗手台下方再做两排收纳柜,浴缸旁边也做一组壁龛,增强储物空间。
