
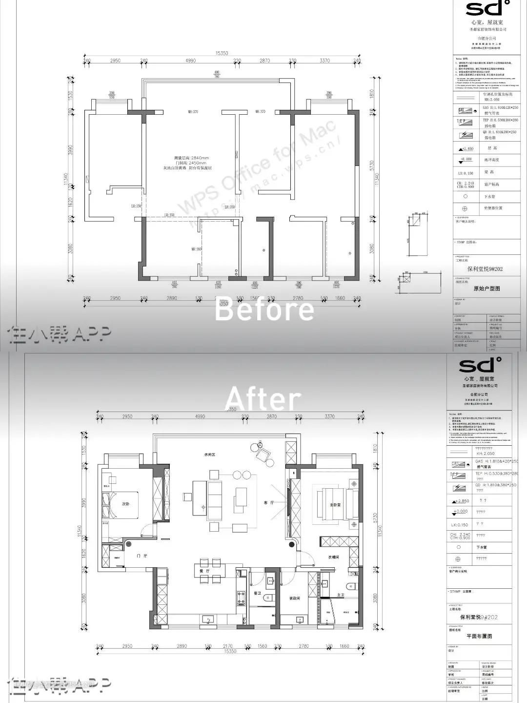
●本案居者: 一对年轻夫妻,追求品质生活。 ●居者需求: →开阔舒适的空间布局。 →客厅功能丰富多样化。 →主卧规划成套房体系。 ●设计亮点: →客厅与次卧相连通,得到一个多功能大横厅。 →主卧向东推移,增加收纳区,实现套房体系。 →餐厨一体,提高家居互动,拒绝孤独式下厨。






设计亮点
越来越多的朋友都对大横厅情有独钟,本案的户主也不例外。在征得夫妻俩的同意后,设计师果断放弃与客厅毗邻的南次卧,将其与阳台一同纳入客厅体系,形成了夫妻俩怦然心动的大横厅。 “大面积的落地窗+开放式布局”让客厅的采光好到令人流连忘返;围合式布局不仅方便亲友闲坐时交流互动,还能传递出客厅的包裹感和包容情绪,进一步提升空间的温度与温情。
软装搭配
以沙发靠背为分界点,后方辟出一方空间规划成茶室,并安置了一架书墙,这样一来,无论是一人品饮独得神韵,还是多人论茶得趣又得味,都是“赌书消得泼茶香”的最佳写照。




设计亮点
餐厅位于客厅、厨房之间,形成动线的最优解;岛台的设计更是锦上添花,既能用作西厨区,丰富了餐厅的功能性,又成为餐厨之间的软隔断,让整体空间互串互联的同时,又能保持相对独立。



设计亮点
由于女主人偏好开放式厨房的颜值与高互动属性,于是,设计师规划成餐厨一体,将厨房独立空间中释放出来,摆脱了孤独式下厨。牛乳白橱柜搭配雅黑地砖,简约的色系显得轻盈又有质感,加之开放式布局,实现视觉上的放大作用,不再有之前的局促感。



设计亮点
主卧规划成套房样式,床尾处设计了一柜到顶的收纳柜,搭配步入式衣帽间,彻底实现收纳自由。


设计亮点
区别于整体主色调的沉稳气息,给女儿准备的公主房带着粉嫩嫩的甜软与细腻,加上窗外的明媚春光,让空间的颜值更上一层楼。


设计亮点
单独留出一间房用作家政间,让家居生活的舒适度有了质的飞跃:L型收纳柜储物力强大;提前预留好洗衣机与烘干机的位置,将其嵌入其中,实现颜值与功能的双重升级。
