
装修前
说在前面/Speaking ahead 屋主夫妻是一对旅游行业的自由职业者,常住人口除了夫妻俩人外还有一只宠物小猫咪;客厅是主要活动空间,希望能保证它的宽敞开阔;对于储物空间,并不希望它只固定在某几个地方,而是最好能够各个空间都有。 装修需求/Decoration requirement 1、屋内是夫妻俩人与一只小猫。需为小喵咪规划空间,方便猫咪自如活动。 2、因为夫妻俩都是自由职业者,需要有舒服的办公环境: 3、客厅作为主要活动空间,希望保证它的宽敞开阔;卫生间可以上下楼各一间; 4、对于储物空间,并不希望它只固定在某几个地方;最好能够各个空间都有,最好是把家中的每一个角落都安排上。
装修后
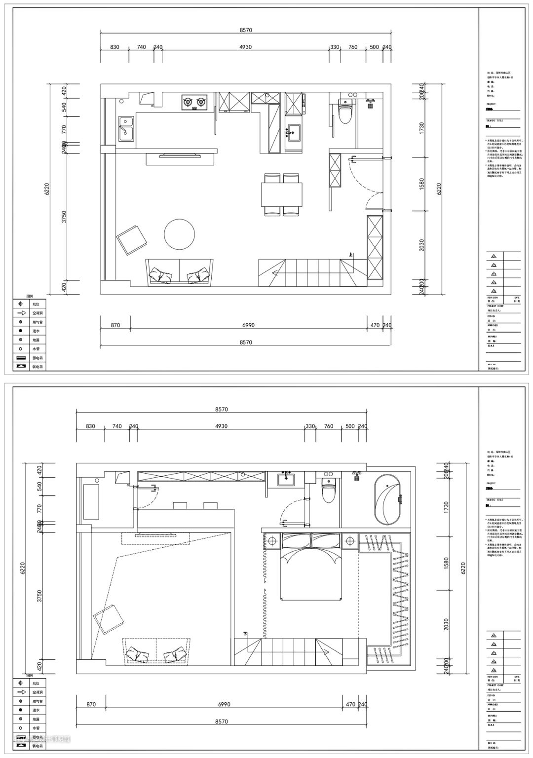
改造方案/Renovation plan 房子上下两层一共90平,一楼有一个大客厅,长条形的厨房,开放式的餐厅,三分离的卫生间,楼梯间设计了一个猫洞,一日三餐的幸福生活都集中在了这里。 二楼主要是办公区和卧室,办公区的左手边是一个小的设备间,在工作和休息时不用专门下楼跑厕所,工作区右手边就是二楼的卫生间。




设计亮点
整个空间以灰色调为主轴,材质运用上匠心独具,巧妙融合了大理石、皮革、布艺和木饰面,营造出既丰富又简洁的层次感。
软装搭配
暖色调沙发,太吸晴了,让客厅一下子就温暖住了~


设计亮点
悬浮灯光在整个卧室中扮演着至关重要的角色,为这高级灰调的空间增添了一抹神秘感。
软装搭配
卧室的衣柜采用优质玻璃,透明可视,方便拿取衣物;在美观的同时,也更易于清洁,颜值实力并存~🌸


设计亮点
浅咖色床头背景,与木色地板真的很搭,看起来就很和谐舒适✨
软装搭配
搭配棕色的豆腐块床和床头柜,打算一“棕”到底💕


设计亮点
书桌后边设计的实木柜子,是书柜也是展示柜,巧妙二合一。 内嵌灯条,当需要展示书籍和物品时,为这些物品投下迷人的光影。💡
软装搭配
搭配一张白色的岩板桌,和两把舒适的椅子,打造舒适书房的核心~🥳


设计亮点
卫生间整铺灰色大理石,耐脏又显贵气。✨
软装搭配
卫生间选择用的射灯,在均匀的照明,营造空间氛围感。💡

设计亮点
封落地窗,美观且通透,密封性好的同时还兼顾了通风。🍃
软装搭配
阳台柜做了无拉手的设计,减少安全隐患,也减少了积灰的可能性。

设计亮点
楼梯采用岩板的材质,抗污能力强,有很好的防滑效果,易于清洁。
软装搭配
安装灯带,夜晚很好的营造气氛。💡
