

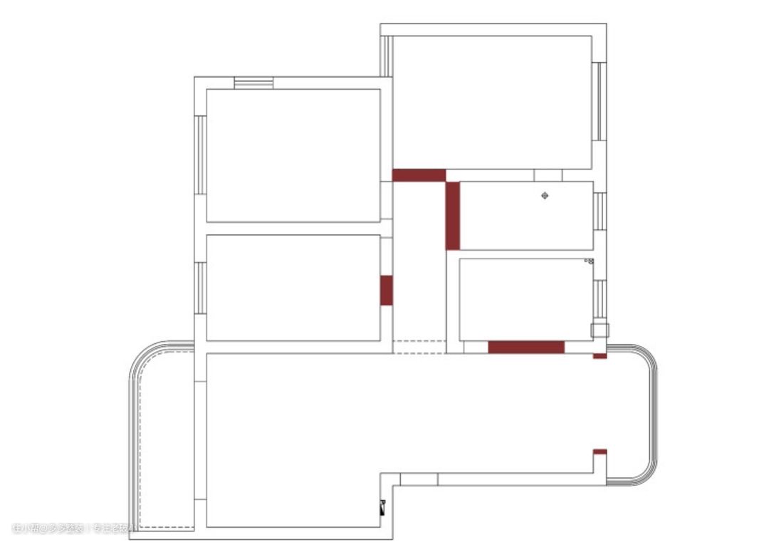
装修前
红色部分为后期拆除的墙体: 1.入户门正对房间,房间私密性受到影响 2.厨房动线不合理,操作台面不够用,操作空间拥挤 3.拆除南卧室门洞,改变门洞位置,增加卧室衣柜收纳 4.拆除卫生间厚墙,改成单墙,增加干区功能 5.过道狭长,视线动线乱,过廊门洞关系拥挤
装修后
布局改造: 1.增加过道玄关,改变大门正对卧室门洞的关系 2.把厨房原有L型操作台,变成U型操作区,改变不合理动线,增加使用面积 3.改变过道门洞拥堵关系,改变进入卧室动线,优化使用方式 4.为业主增加一个独立卧室衣帽间,解决收纳空间偏少的问题 5.增加三分离设计,增加卫生间储物收纳 6.每个房间都增加收纳功能,儿童房满足玩具收纳、学习、陪读等功能需求


设计亮点
打开家门,映入眼帘的,是一个拱形廊道,改变过道顶端门洞关系,增加一处端景,因为楼层不高,光线并不是很好,交错的门洞,能有效的提高过道采光。 为了增加入户采光,收纳柜设在进门靠墙的位置,柜体与餐厅联通,采用半封闭设计手法,一部分给到餐厅装饰隔板,一部分作为封闭收纳柜。

设计亮点
厨房设计成“U”字型,形成围合式的操作区,缩短操作动线,提高利用率,最大化的利用每一处空间,男业主平时使用厨房更多,去除过多的装饰,整体实用简洁,柜体颜色进行简单的上下分色,墙面奶油色瓷砖,深浅对比,更显高级。








设计亮点
奶油色的整体色调,搭配局部软装赤茶橘作为跳色,活泼空间氛围,微微弹出的包豪斯蘑菇灯,是艺术的展现,造型简单精致的PU线条是装点浪漫的元素。 因为楼层不高,光线并不是很好,在整体的配色上尽可能的运用浅驼色,墙顶采用同色处理,家里有小朋友,为了安全环保考虑,大面积采用乳胶漆和柔弹舒适的材质,宽松的布衣沙发,在开阔的空间中,展现慵懒轻松的舒适感。 客厅不光是提供家人会客交流的地方,也是阅读小憩休闲的场所,壁灯可以随意变化角度,满足不同场景阅读使用,INS风蘑菇灯,特地选了橘色的灯罩,玻璃与金属的搭配,与空间彼此融合,产生唯美的浪漫氛围,闲暇时,躺在慵懒的沙发上阅读,何尝不是人生最幸福的一件事。 细节的增添,让空间更显精致,半围合的法式PU线,与浪漫的橘色碰撞,不同的灯光照明切换,营造多样的沉浸式氛围,地面搭配黑白相间的波点地毯,奶白色布衣沙发以柔和的弧形线条呈现,奶油色在赤茶橘背景色衬托下,营造丰富个性的生活场景,家就应该是我们心中最浪漫的地方。 圆形岩板茶几,自带存储功能,圆角设计,也提高儿童使用过程中的安全性,不锈钢多功能边几,可以随意变换场景使用,茶几上的绿植花卉,增添空间些许宁静的生机。



设计亮点
餐厅保持空间的开阔性和视觉的通透感,柜体的颜色呼应柜体功能,奶茶色柜体作为大面底色,浅木纹做装饰,避免大面柜体结构带了的拥堵感。 餐厅的定制柜,做了功能拆分处理,一部分封闭式柜体给到门厅鞋帽柜使用,一部分敞开隔板柜给到餐厅装饰与收纳使用。 简洁的软装家具,在干净的空间里,不轻不重,刚刚好,弧形的大理石桌面和弧形的餐桌椅相得益彰。墙体采用圆弧工艺,弱化原结构柱体的突兀,柔化空间细节,给空间增添更多舒适温馨感。

设计亮点
卫浴空间进行三分离设计,干区采用绿色复古花砖拼色水磨石,湿区采用鱼肚白瓷砖,不同的材质拼色,相对于统一颜色搭配,多了一份层次美感,也会给使用者带来不一样的体验,洗漱空间隐藏式排水,安全实用,好的空间不需要复杂的设计,健康安逸的环境,才是家的初心。


设计亮点
卧室作为个人的私密空间,卧室的布置主要以舒适性和实用为重点,在软装和用色上也要统一,多以温馨柔软的成套布艺进行装点,奶油色整体空间氛围,背景增加一些线条,形成对称的边框造型,同色系,但不同材质的碰撞,搭配精致金属壁灯,给整个主卧空间注入些许典雅的格调,营造出简单、安逸的生活氛围。 卧室的背景利用线条的层次感,营造整体空间线条感,搭配上奶油色油漆和奶乎乎的床品,在自然光的衬托之下,感受温馨的浪漫生活。



设计亮点
大面的象牙白收纳柜能满足童年时光里的收纳需求,书桌与书柜的形式以个性化的方式定制呈现,圆角工艺提高安全性,特备定制的樱花粉拉手,活泼不失可爱。 吊顶向下弯曲的弧线,减少空间的尖锐感,增加柔美的氛围,儿童房以马卡龙色系为基调,设计选用茱萸粉床品,奶油黄边几,薰衣紫的柜体融入在樱花粉的世界里,可爱,温馨,娇嫩自然而然地融合在多姿多彩的生活中。 儿童床选用粉色兔子的形状,个性的独角兽壁灯,ins风中古奶黄色床头柜,床饰也是活泼可爱的搭配,作为小公主怎能不可爱。
