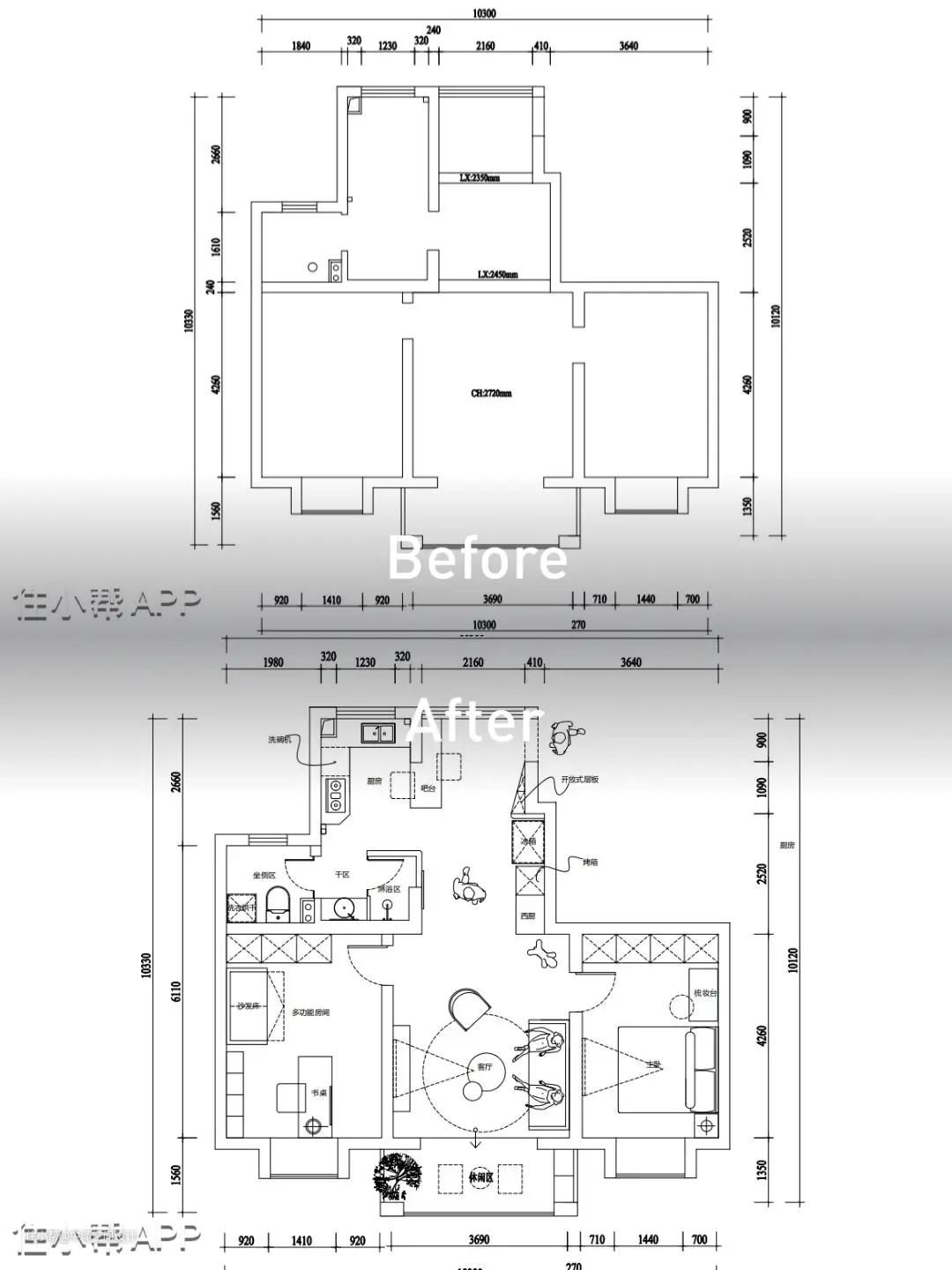
设计亮点

本次改造效果展示主要以客餐厅 阳台 餐厅 厨房 干区 为主,首先从入户开始 空间较小 摈弃了传统餐桌 采用了小吧台的方式作为餐厅区域 左侧做了个斜角的小鞋柜 第一空间不够 只能这样做 第二 防止垂直角磕碰到,紧接着便是冰箱 烤箱 餐边柜延申过去 整体风格采用是原木奶油风 用于小空间上显大且温馨
入户

软装搭配
在前面我们讲到斜角鞋柜 以及小吧台代替餐桌形式 这个空间展示了 整体配色以抹茶绿跟暖白为主
客厅




软装搭配
全屋采用中央空调 地板通铺 客厅电视柜做的悬浮的 更显轻快 沙发跟单椅也是带点原木元素 吊顶上做了一根灯带 效果上也是不错
阳台

软装搭配
阳台以软装搭配为主 没有做过多的改造 懒人沙发搭配绿植 慵懒且放松
过道

软装搭配
过道较窄 墙面放置了一副清新的画 顶上做了一条灯带 对面餐边柜可以偶尔放置一些面包机 咖啡机 休息时间泡泡咖啡 吃吃点心 简直不要太惬意
餐厅/厨房


软装搭配
吧台跟厨房区域在一块 就不分开讲了 配色还是以墨绿与暖白为主 搭配清新的小长块砖 更加耐看
干区

软装搭配
干区铺贴的小花砖 做了悬空浴室柜 在视觉效果上更显大
