

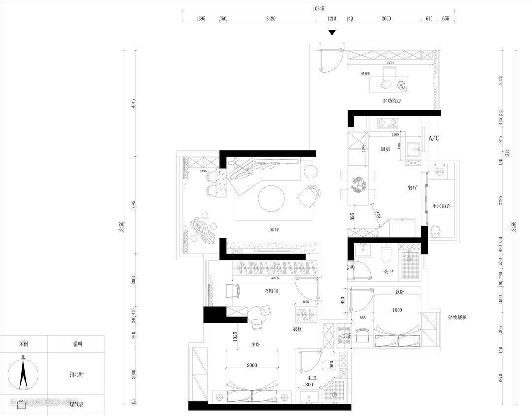
装修需求: ①利用利用好玄关的空间; ②想要一个开放式厨房,轻奢风为主; ③主卧要一个衣帽间。 设计亮点: ①玄关处打造开放式多功能房; ②开放式厨房,阳台合理利用; ③将房间合并,主卧带衣帽间扩大主卧空间。 方案解析: 本案例是102平方米四房改三房,房子户型不太方正,但是有两个生活阳台保证空间空气通透,在玄关处打造出一个多功能房,整墙的柜子满足收纳需求,应户主要求设计师将两个房间合并打造出带衣帽间的主卧,用简单的元素为户主打造轻奢风,给予户主生活品质的保障。









设计亮点
客厅选用绿色鹿皮绒沙发,宽大的靠背和可自由调节的沙发扶手给予超舒适体验感,摆放两个灰色矮凳,还能充当搁脚凳的角色,灵活多用。采用多色彩的搭配给予客厅更多不可能。 天花悬浮吊顶延伸到餐厅,运用到多种灯具,筒灯+隐藏式轨道灯+主灯+内藏灯带,满足户主多种光线需求,大理石瓷砖通铺,使得空间亮堂通透。 电视背景墙选用大理石为主要元素,黑色侧栏为底,白色大理石上墙,打造出高级贵气感,加上底部灯带的烘托,氛围感拉满!!!龙血树大型绿植摆放在角落,绿植的加入带来生机。




设计亮点
在装修过程中户主放弃了原本设计,将电视墙大理石元素延伸到餐厅选择了圆形大理石餐桌,棕灰色餐椅,在色彩上给予空间错落感。白色纱帘既不遮挡光线还能保证隐私性。 靠墙打造餐边柜,巧妙利用斜角空间,酒柜内藏灯带的设置,微弱的光线衬托下,带有欣赏性的酒柜变形成了。开放格摆放一台咖啡机,奶白的颜色颜值爆表。在餐边柜左侧留有空隙嵌入十字双开冰箱,深色的配色和白色的餐边柜奏唱着高低起伏的旋律。





设计亮点
橱柜打造成U型,生活动线合理且高效利用厨房空间,台面选用黑色打破白色的单调,大理石花纹金边的设计给橱柜带来高级感。 在吊柜的开放格放了一个烤箱,吊柜高度下沉方便操作,三插座满足厨房电器的供电需求。选用集成灶节约上方壁挂式吸油烟机的空间,吸力相对较强开放式厨房也不用怕家里到处都是油烟啦! 多槽水池满足不同需求,可拉伸水龙头清洁不费力,多种出水方式给予多种体验,自带消毒功能,让生活有保障。









设计亮点
设计师将原户型的两室合并成主卧,增加主卧空间以达到户主想要衣帽间的需求,主卧进门看到的是衣帽间,步入式衣帽间实用性更强。 选用奶白色柜体,长短不一的黑色把手边加上金色的点缀,瞬间设计感吗,满满,两排的置顶柜安排挂衣区和折叠区以及抽屉,衣物储存也可以分类有序。 床头背景墙采用半墙板的设计,与深灰色的床头很搭配,显示出沉稳大气之感,淡蓝色叶脉墙纸,透露出小清新但是不繁琐 主卧采用回型吊顶,灯光有灯带,筒灯,主灯三种灯源来满足户主对于不同灯光需求,藕粉色遮光窗帘淡雅的颜色是户主对于品质的追求。




设计亮点
次卧选用榻榻米,在飘窗处定制了两个储存矮柜,关上柜门还能当做一个简易的床头柜,柜面上方安装了两个插座,方便生活。 利用床尾的空间打造了一个衣柜,衣柜上方留有空隙安装空调,奶白的柜体与天蓝色的墙面,色彩上的碰撞带来不一样的体验,衣柜没有过多的装饰彰显极简之风。 在次卧进门处定制了同主卧风格的置顶衣柜,从衣柜延伸出来的桌子作为次卧的办公区域,桌上的羽毛水晶灯,晶莹剔透的水晶遇上柔软轻盈的羽毛,呈现出浪漫轻奢的氛围。



设计亮点
浅色大理石花纹瓷砖通铺,视觉上扩大空间面积,利用长虹玻璃分离出淋浴区,一字黑色把手方便推拉浴室门,在边缘做了两个壁龛,容纳一家人洗浴用品,百褶窗带点小清新。 洗手台加长处理取代壁挂纸盒,带储藏格镜柜,生活用品也可以分类有序,洗手台下方做了个延长板,储存空间翻倍。天花并列两条长条形灯带,简洁赋予空间线条感。



设计亮点
阳台打造置顶柜,留有高柜体空间方便容纳吸尘器等长形生活用品,柜子左侧打造开放格和玻璃柜,黑白的色彩变换,让置物柜也不再单调。 在阳台的另一侧打造一个收纳架,摆放户主喜爱的摆件,演化出一个参观区域,后期在阳台摆上茶桌,坐上品品茶岂不美哉
