

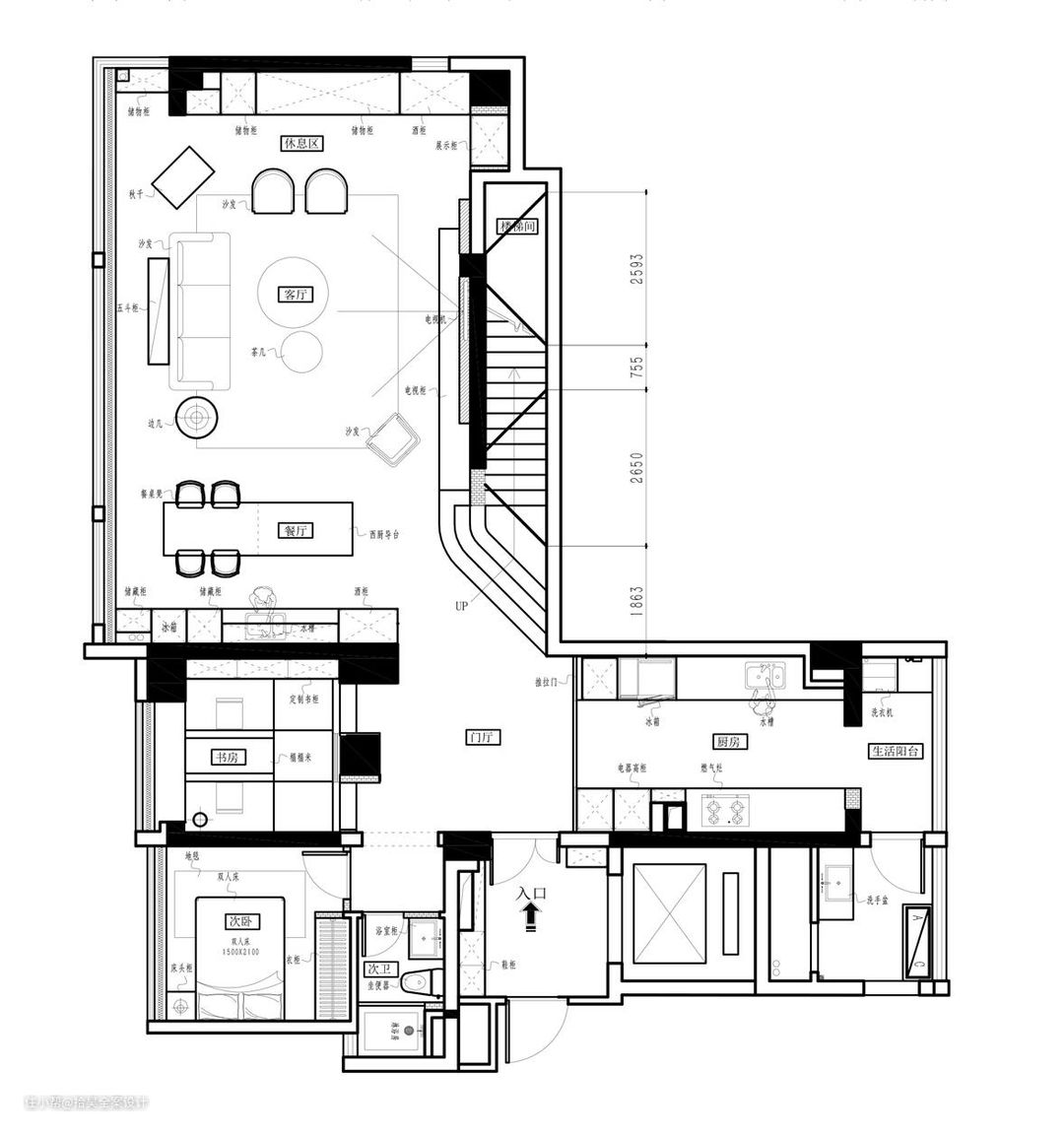
一楼在经过重新规划后,扩大了客餐厅的面积,变得更加开阔,加上一个厨房,一间客卫,以及客房和书房,空间动静分离,在保证舒适性的前提下,整体动线也更加适合生活的节奏。 二楼是专属于家人的休息区域,经过空间整合,变成了两个带有独卫功能的套房,一间是主卧,一间是女儿房。



设计亮点
沿着入户通道进来,便是客餐厅区域,整体开放式的布局设计,让室内空间一览无余,敞亮大气。 餐厅与客厅之间毫无间隔,只是借以不同的功能和配饰,来打造实现了家的温度之感。 客餐厅一体化的设计,也使得两个功能空间相互渗透,不仅有效的增强了整体性,也在视觉上延伸了空间的开阔感。 客餐厅的吊顶也采用了一体式的悬浮设计,四角通过弧度来弱化锐利的直角,用弧线美感打破顶部的生硬刻板,让空间多了灵动性和趣味性。 照明上,以暗藏在悬浮吊顶中的灯带和嵌入式的筒灯为主,层层错落,丰富空间光线、增加层次感,优美而有序,整体均匀的出光,也让悬浮吊顶更显轻盈。 客餐厅地面使用灰色大板地砖通铺,搭配上色彩鲜明的家具,在低调沉稳中点亮空间,彰显年轻时尚的家居质感。





设计亮点
电视背景墙做了非常经典的悬浮式设计,材质上采用连纹岩板+实木格栅错层结合,中和了冷暖色调,轻奢质感油然而生。一字型的悬浮电视柜,轻巧简约,柜面整洁利落,可放置绿植或是装饰品,将客厅的高级感拉满。 电视墙左侧与转角后的墙面衔接,做了定制储物柜+酒柜+展示柜的多用途收纳组合设计,哑光深灰色的柜门,色调沉稳高级,突出轻奢感,也凸显出业主的生活品味。 沙发背后巨大的落地窗使整个空间通透明亮,同时也让客厅拥有了极佳的采光和视野,可将室外景色尽收眼底。
软装搭配
一盏落地钓鱼灯静静伫立在沙发旁边,无论开灯与否,都能为客厅注入活力动感的元素。同时作为局部区域的补充照明,也可以满足业主在客厅轻松阅读的期待。 深蓝色的贝壳沙发、青灰色的拉扣沙发,以及蓝黄条纹的懒人沙发,这三组造型极具个性化的沙发,吸足了眼球,在客厅中呈现围合式的布局,以张扬的态度彰显了业主对于时尚的追寻。 沙发中间是一组轻奢风的水波纹组合茶几,在灯光的照射下,桌面会呈现出波光粼粼的动态效果,仿佛山涧溪流潺潺,真的很有艺术感。



设计亮点
区别与常规的岛台+餐桌的组合设计,本案业主采用了定制的岩板石材,将餐桌与岛台融合为一体。 岛台可以作为备餐区、放餐区,也可以作为西厨操作台或是临时餐桌,满足置物、备菜、就餐、休闲等多样化的功能需求。 餐边柜的颜色与客厅定制柜一样,功能上除了实现储物收纳外,还在台面上增加了水槽设计,柜体中嵌入了蒸烤箱、咖啡机,与岛台共同构成了一个完整的西厨区,让一起烹饪的时光变得更加有趣。



设计亮点
中厨位于入户进门的右侧,采用玻璃推拉门,做了半开放式设计,另外客餐厅中灰色地砖的通铺,也一路延伸到了厨房和生活阳台,其最大的优势在于将全屋空间连贯起来,如镜面般的通透感,让空间开阔程度翻了一番。 厨房空间开阔,沿着通道两侧墙面,各自做了一字形的橱柜设计,将洗菜区、备菜区与烹饪区分开,即使多人下厨也不会显得拥挤。 白色的石材台面,如同一块洁白的画布,为厨房注入了一丝清新与明亮,不仅令整个空间看起来更加宽敞,还能反射光线,使得厨房更加明亮通透,不论是备料、烹饪还是清洁,白色的台面都能给人一种清爽舒适的感觉,让厨房工作变得更加愉快和高效。 而深灰色的橱柜,则为厨房增添了一份沉稳与成熟。它们的深色调不仅彰显出品质感,还能有效地隐藏厨房中的油烟污渍,使得整个厨房看起来更加整洁和有序,搭配白色台面的清新,深灰色的橱柜显得格外突出,仿佛一幅幽静的画卷,让人心生舒畅与安宁。


设计亮点
通往二楼的楼梯位于电视墙背后,是本案改造的一大亮点,设计师用简洁的光影效果,营造出极强的未来科技感,宛如一个通往未来的时空隧道。 叠式的悬浮楼梯拾级而上,踏步采用白色花纹大理石,融合灯带让整个楼梯富有层次且显高级,墙顶面材质采用白色肌理的艺术漆装饰,搭配内嵌的线性灯,整体亮度的提升,解决了楼梯间原本采光不足而昏暗的问题。






设计亮点
本案主卧空间与阳台之间原本有一扇玻璃移门,为了提升主卧空间的开阔感和舒适度,拆除移门,将阳台纳入室内,超大落地窗提升采光效果,日光洒进,整个卧室都被镀上了一层温柔滤镜,营造出慵懒治愈的空间氛围。 床头背景墙采用不同宽度的护墙板进行拼接装饰,线条错落且对称的距离,层次感鲜明,结合软包的床头和素雅的床品,展现出婉约大方的姿态,让人感觉十分的舒服。 床头左侧自然垂挂的银色吊灯,小巧迷你,完美的赋予了卧室更卓绝的高级感,床头的右侧是入室的隐形门设计,与背景墙融为一体。 床尾靠墙放置了一个斗柜,既可以收纳家居小零碎,也可以摆上插花和装饰画作为展示。在斗柜的两侧分别是两个隐形门设计,左侧通往衣帽间,右侧通往卫生间。隐形门也是很好的与护墙板装饰融为了一体,与床头背景墙遥相呼应。 主卧进门的左侧靠墙做了一排定制衣柜,通体哑光黑的无拉手柜门设计,搭配上局部玻璃柜门,不同材质的碰撞,让空间呈现精致的高级范。
软装搭配
照明方面,卧室顶部做了大平顶+边吊+灯槽,搭配无主灯设计,不压层高,简洁大方,整洁开阔。衣柜一侧的吊顶开槽留空,加入灯带,制造悬浮效果,还在床尾边吊的下方嵌入了洗墙射灯,通过各种氛围灯效的组合,营造出更有格调的空间氛围。 窗边橙色的单人沙发,为房间增添了一抹亮丽的色彩,一杯茶、一本书、一段慵懒的时光,享受背靠风景好读书的悠闲片刻!



设计亮点
方正的小衣帽间里,在梳妆台的两侧做了定制储物柜的设计,搭配开放格,满足不同形式的收纳需要。



设计亮点
女儿房是少不了一些童话色彩的,床头的造型设计从孩子绘画的房屋灵感而来,在屋顶涂刷上梦幻的粉色,一个童话般的城堡梦就此实现。 屋顶之上的空间做了储物柜设计,与旁边的定制衣柜衔接为一体,一整面墙的收纳也让业主十分的满意! 圆弧形的转角设计,节省空间的同时,也能够有效保护孩子的安全,视觉效果要更加柔和一些。 床尾靠窗预留出了孩子的书桌空间,满足基本的学习以及放书所用,而且靠窗也拥有充足的自然光线,更利于孩子视力的保护。



设计亮点
一楼次卧使用频率不高,主要是方便老人来时小住或留宿客人居住,因此整体设计素雅简洁,房间中除了床和衣柜外,再无其他家具和装饰。 简洁的双眼皮吊顶,让空间变得有层次感,阳光通过窗纱渗入进来,让人感觉宁静美好。
软装搭配
软包床头让居者依靠小憩更加舒适,床的内侧设立整墙柜体,让收纳空间得到满足。

设计亮点
女儿房衣柜的里侧,便是独立的卫生间,整体设计也是简约实用,在洗手台左侧做了一个壁龛设计,可以放置牙刷牙膏等洗漱用品,嵌入式的水龙头设计很高级也很简约。



设计亮点
进入主卫,正对的是双人洗漱台设计,简约的大理石台面,一台分两盆,这样夫妻俩早晨起来能同时洗漱,避免了早起“打架”,实用性满分~ 壁挂悬空的收纳柜,拥有更高的颜值和轻盈感,也没有卫生死角,清理起来非常方便,并且少了一丝笨重的感觉,看上去非常时尚。 淋浴房、马桶区与外侧的洗漱台通过玻璃隔断做了三分离设计,实现干湿分离,分区明确,墙地面都用大砖布局铺开设计,视觉明亮且装饰感强。