

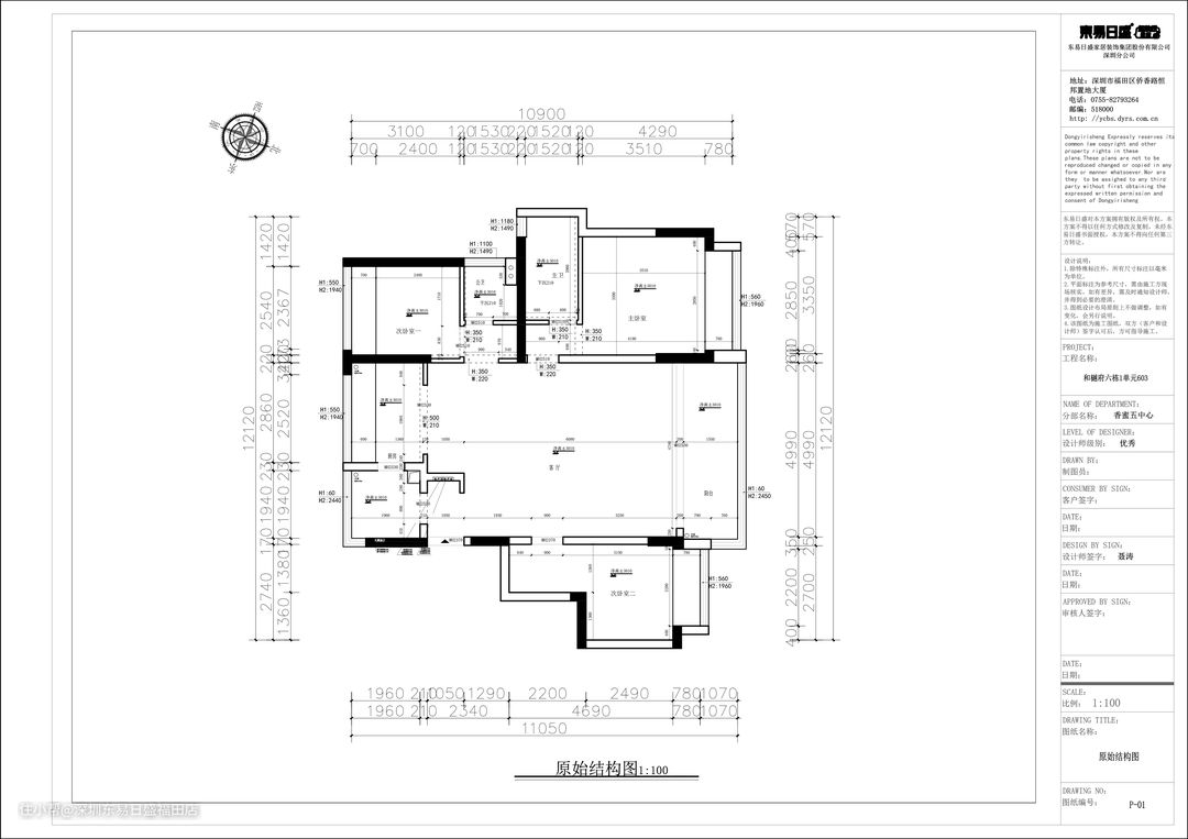
装修前
原始户型图解析: 1、厨房空间划分较小 2、空间利用率不高 3、阳台空间比较大,客餐厅空间较小 4、次卧的空间小,卧室收纳空间不足
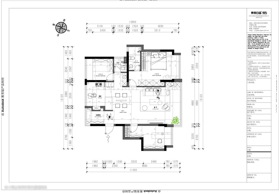
装修后
平面改造图: 1、入户的隔墙拆除小部分,做端景 2、生活阳台与厨房砌墙,做独立空间 3、客厅阳台纳入客餐厅空间,扩大使用率 4、两个卧室做书房及客房,收纳柜满足收纳

设计亮点
进门玄关做端景,左侧的生活阳台做玄关柜和洗衣机柜,落地窗处抬高做嵌入式洗衣机,缓解阳台空间压力。原本与厨房想通,现将砌起薄墙,多余的空间做厨房的嵌入式橱柜,满足厨房的收纳需求。







设计亮点
效果图vs实景图,客厅1:1还原,客厅电视背景墙1:1还原 原始客厅阳台是没有打通的,设计师将阳台规划进来,选用一整面的玻璃窗进行封窗,将外面的绿植美景全都带进客厅,同时扩大了客厅的空间感。背景墙用护墙板及镂空格子柜拼接而成,装饰及收纳需求满足。电视背景墙用造型做变化,收纳用高级灰的地台设计以及电视柜满足日常所需收纳,不同材质的拼接包裹,增加空间层次感。电视墙用悬空做造型,底部地台与墙壁壁龛做展示,添加了艺术品,空间有趣且高级。
软装搭配
从餐厅往客厅望去,窗外春雨,无遮挡的视野,开阔明亮。无主灯的客厅,四周用暖色灯带辅助光源,顶部筒灯做定点照射,满足日常使用。整体采用暖色调,木色及白色辅助,营造高级时尚整洁的意式轻奢风。客厅打通阳台,阳台这一侧做阳台柜,510*600的柜体设计,满足杂物的收纳。镂空的格子柜用灯带及背景板做视觉变化,增加空间质感。电视墙用悬空做造型,底部地台与墙壁壁龛做展示,添加了艺术品,空间有趣且高级。



设计亮点
效果图vs实景图,餐厅1:1还原 开放式的客餐厅,从厨房吧台延生餐桌,木色的餐桌增加空间温馨感。餐厅做吧台+餐桌,连接厨房,整体动线开阔明亮,空间利用率满满。简约时尚的吊灯,烘托时尚氛围感。外侧留了1000*600的空间来放置嵌入式冰箱,顶部做储物空间,原木餐桌选用2000*900的尺寸,满足4人位的家庭需求。瓷砖客厅、餐厅、厨房通铺,保持空间的统一性。




设计亮点
厨房做U型的动线布局,两夫妻的生活,厨房的使用希望是独立的,但要有互动的空间,女业主希望有吧台的空间。设计师设计整体更多的是从实用的角度出发,两侧象牙白的橱柜满足厨房所必需的收纳空间,洗切炒的东线规划,选用黑框玻璃的吊柜推拉门。厨房的吊柜推拉门隐藏起来的时候,整个餐厨空间是开放的,通透宽敞的,两个空间形成交互感,家人在准备西餐甜点的时候是可以相互交流的。厨房的这一侧就是从玄关生活阳台借来的储物空间,到顶高柜内嵌烤箱微波炉等电器,黑色把手的推拉柜更是吧收纳用到极致,里面是可以放置好几层的瓶瓶罐罐。从这有一个小吧台,餐桌从这延伸出去,搭配个小吧椅就是一个休闲好空间。



设计亮点
效果图vs实景图,主卧1:1还原 主卧是套房布局设计,主要满足日常收纳需求。木饰面半墙做床头背景墙,简约高级。卧室木地板铺设,增加空间温馨感,l.8米的床舒适宽敞,卧室另一侧是2510*500的衣柜,当季衣物充分满足收纳。主卧的另一面墙则是梳妆台和收纳衣柜,衣柜是2600*740的尺寸,可放置一些换季衣物及床被褥,收纳功能区分开,梳妆台沿着承重墙而设,飘窗处用乳白色软包垫上,温馨舒适的休闲空间。


设计亮点
次卧满足多种功能需求。收纳房、客房、麻将房!定制的到顶收纳柜,缓解主卧等其他空间的收纳压力。选择用隐形折叠床来解决客房的需求,更加节省空间,空间利用率高,想用即用,床底更易清洁。不用收起,摆上麻将桌,这又是一个娱乐功能室,小小次卧,百变空间。


设计亮点
卫生间做干湿分离,公卫的洗手台外置,镜面柜、悬空洗手台柜、旁边的到顶收纳柜,满足屋主的收纳需求。同时两个柜体底部都是悬空,一个方便清洁,一个是方便安放扫地机器人。主卫的空间也是干湿分离,白色简约的大砖通铺上墙,玻璃推拉门隔断淋浴间,镜面柜延伸至马桶空间,收纳空间充足。