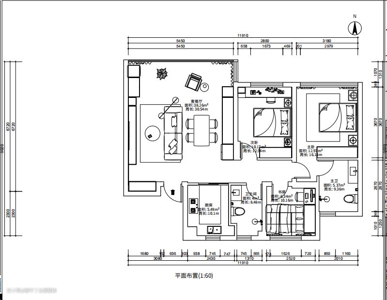
3D全屋

方案解析

极简设计细节,营造出都市生活的舒适与和谐。
客厅

入户长廊采用暖色调水性漆,结合黑白色系的鞋柜放置于长廊尽头,通过筒灯照明,营造出温馨迎人的氛围。无玄关柜的设计使空间看起来更加宽阔,简洁又实用。黑白色系的定制餐边柜与岩板台面的餐桌相结合,搭配深灰色的高密度回弹海绵餐椅,不仅美观而且舒适。铁艺铝材LED双色吊灯增添了现代感,同时开放式的布局充分利用了空间。
主卧

主卧室注重流畅的设计线条和简洁的造型,以白色的定制衣柜和骑仕灰的护墙板为主,营造出舒适、开阔的空间氛围。现代风格的黑色吸顶灯和筒灯提供了充足的照明。
次卧

次卧采用定制到顶的衣柜和白灰双屏色床,增加了趣味性和收纳空间。书桌下的灯带和五角星造型吸顶灯提供了足够的照明,创造了一个舒适的休息和学习空间。
功能室

书房中的榻榻米和羊绒灰色的定制柜体提供了充足的储备空间,粉色的现代吸顶灯为空间增添了温馨感,更具个人空间特色。
厨房

U型的黑白色调定制地柜和天使白爱格麻定制吊柜,配合高斯白石台面,不仅美观大方,还提供了充足的储物空间。平板灯确保了烹饪区域的明亮。
主卧卫生间

灰色和木质的温馨结合,提供简洁而舒适的环境; 采用浅木色的巴铂成品浴室柜和哑黑色系的浴巾架,简约而方便。墙面和地面的瓷砖搭配,以及置物平台的淋浴花洒,都体现了实用与美观的结合。
卫生间

采用浅木色的巴铂成品浴室柜和哑黑色系的浴巾架,简约而方便。墙面和地面的瓷砖搭配,以及置物平台的淋浴花洒,都体现了实用与美观的结合。
