
装修前
每个人对于家的定义不同,但大多数人对家的期待却很相似:一个能让他们放松和愉悦的家。 为了满足这样的期待,本案全屋以柔和的暖色为主调进行打造,结合温馨的灯光设计,构建出一种轻松自在的氛围。 在这里,屋主可以卸下所有的疲惫,尽情享受家的温馨与宁静。无论是窗外的明媚阳光,还是家中的柔和灯光,都让人感受到家的美好。
装修后
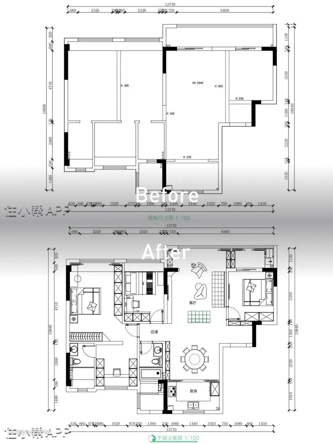
原户型分析: · 结构稍混乱,空间零散、划分不明确 · 南北不通透,客餐厅都有隔断,采光不佳 改造亮点: · 将生活动线优化,对于各区域空间进行巧妙划分 · 打造LKD客餐厅一体化设计,空间更加通透显大 · 主卧大套间设计,集居室、书房、储物、洗浴为一体的多功能设计

设计亮点
全屋通铺木地板,客厅开间3.5m,大白墙+无主灯设计,整个空间显得更为温暖和舒适~
软装搭配
2.5m奶呼呼的沙发,像块大面包🥖,实木的云朵☁️茶几,颜值真的好高~放在家里也是一道风景线


设计亮点
✅玻餐厅相对于客厅采光较差,所以餐边柜设计了奶白色更显空间明亮,拉手选了同色系白色,简简单单就很好看啦~~
软装搭配
✅玻原木花纹的餐桌,独特的自然质朴的特质,为用餐区域增添温馨和愉快的氛围感~

设计亮点
🧱开放式厨房+吧台设计~不仅增大了空间感,也提高了空间的利用率
软装搭配
柜门是纯白色高光的,高光的橱柜更好打理,整体都是无拉手的设计,更加简洁~

设计亮点
卧室硬装挺简单的,原木色地板,奶油色乳胶漆,简洁的衣柜与梳妆台;以暖色调为主,营造温暖氛围感💓💓
软装搭配
奶咖色的窗帘和米灰色的床搭配,恰到好处的温柔和低调

设计亮点
👋小户型的梦想衣帽间,明确划分了展示区|挂衣区|叠放区|换季被褥储物区|梳妆台等不同区域和功能
软装搭配
衣柜里做的灯带设计,晚上氛围感真的很不错,整体感觉很温馨~

设计亮点
这个次卧是长辈房,所以设计和布置以简单为主,单是看着就觉得岁月静好✨✨~
软装搭配
大容量的收纳桌,多个抽屉储物设计,加上储物柜满足空间收纳

设计亮点
🤍瓷砖选用的是大理石大砖墙地通铺,整体效果出来后特别显大,很有质感
软装搭配
运用多种同色系⚪️的装饰搭配,既丰富了视觉效果,也让空间氛围感更佳

设计亮点
这就是开放式阳台的专享快乐吧,在阳台看蓝天白云,真的不要太舒服😆
软装搭配
北欧风的编藤椅三件套,舒适的躺椅,生活需要有自己独享时光~
