








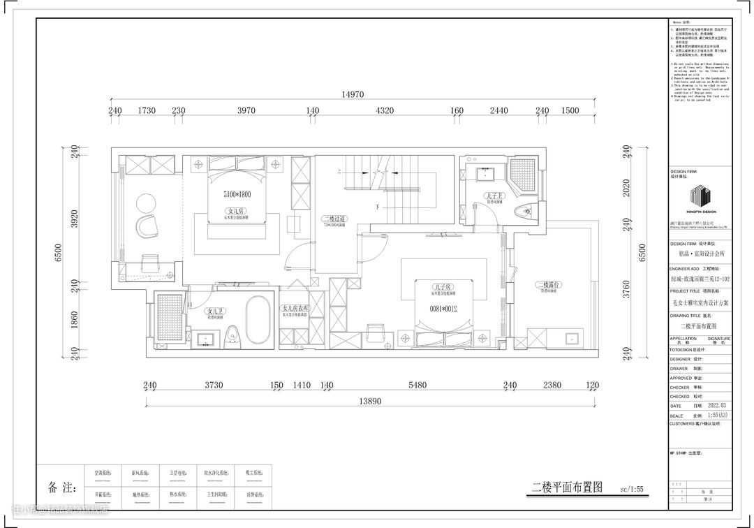
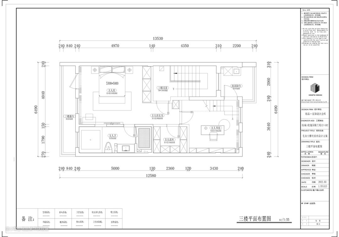
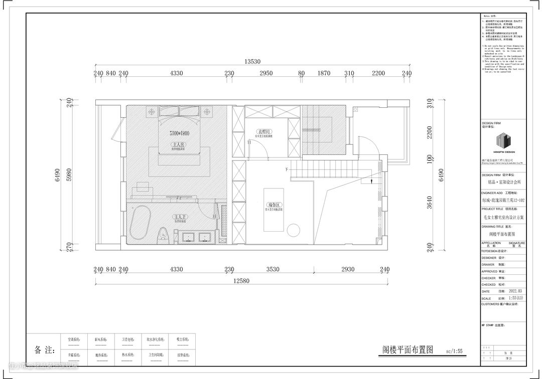
项目地址 / Address:富春玫瑰园 设计施工 / Co :铭品装饰 风格 / Style:现代 项目面积 / Area:468㎡ 空间是生活的容器,是居住者释放灵魂的自由之地。某些时候,空间就是拿来"浪费"的,在满足功能性之余,它能提供给居住者的情绪价值反而弥足珍贵。 本案是独栋别墅,面积468㎡,设计思路为根据居住者的生活状态、审美、品味以及对未来的憧憬,打造一处放松且具备高级感的私享家。 设计亮点 1、地下室拆除多余墙面,打造画室、健身、储物为一体的休闲区; 2、一楼客厅圆形构图,客餐厅开放式,拓展卫生间; 3.二楼阳台纳入女儿房,改出化妆台+储物功能,儿子房也是套房格局,带露台; 4.三楼整层是屋主夫妻卧室,泡澡间、衣帽间、洗衣阳台、书房齐全。





设计亮点
大宅独有的挑空设计,减少了光线的遮蔽,让上下层交互汇聚,产生充沛的“家能量”。 重新审视陈设的摆放方式,构思客厅的布局。以感性的“圆”作构图,让静谧白与“圆”触碰居住者内心的柔软。暖阳洒落,微风荡漾起窗帘一角,心情在归家的一刻明朗,空间变得鲜活流动起来。壁龛+进口松木隔板,打造不容易撞款的沙发背景。香氛蜡烛、书本、石膏摆件,虽是小玩意却让家居氛围更充实。
软装搭配
墙壁转角、家具、摆件采用大量的曲线元素来营造空间的节奏感。布艺沙发、短毛绒地毯,触手可及的柔软。读一本书,看一场电影,享受难得的松弛意境。




设计亮点
实木承接起客餐厅的转折,特有的温润属性赋予餐厅治愈人心的力量。细腻的木作餐桌与餐椅,让简单的一日三餐富有意义。 餐边柜不止于储物,两侧玻璃柜内是居住者的收藏的红酒,中间是西厨台,咖啡机、饮水机井然有序。

设计亮点
厨房做了U型布局,整体橱柜是偏胡桃木色系的,搭配黑色台面,更有时光的痕迹感。墙砖用了白色系,层次拉出来,地砖是浅灰色,更耐脏。 洗手台和烹饪操作台做了高低台设计,屋主洗菜做饭的时候弯腰不会感到劳累,门做了茶色玻璃,更有复古感。

设计亮点
家里每人都拥有独立的睡眠空间,进退自如的尺度,私密性十足。这间卧室背景墙以灰色为主,床也是灰色皮质款,让色系有了延伸,两侧都做了胡桃木衣柜,大大增加收纳空间。


设计亮点
特别要提到阁楼的吊顶设计,趣味性十足。烟熏胡桃木皮定制柜,与浅米艺术漆应和承转,舒适且不失品质。望向床尾,胡桃木隐形门内是泡澡间,避免破坏整体感。


设计亮点
次卫墙体砖保持一致色系,浴室柜选了极简悬空柜,底部卫生更好清洁,也显轻盈,镜子搭配了圆形镜。主卫整体色系以米色为主,台盆柜选了浅咖色,搭配智能镜,视觉上感到舒适。一侧是传统的淋浴区,另一侧是马桶和浴缸区,满足屋主不同洗漱的功能需求。


设计亮点
楼梯下的另一侧是衣帽间,整体是L型柜体,所有柜门都做了茶色玻璃,搭配灯光,氛围感绝佳,日常寻找衣物也比较方便。 梳妆台临窗摆放,光线最佳。满足屋主日常的梳妆打扮,一侧定制了柜体,开放格和玻璃柜门搭配,收纳日常杂物。



设计亮点
墙面通刷艺术漆,取消踢脚线,纵向线条干净利落,如同别墅内自然生长的脉络,笔挺且有秩序感。 螺旋楼梯连接二层地下空间,在大面积分布的暖白里,黑色扶手格外醒目,虚与实交界,强调视觉反差。
