
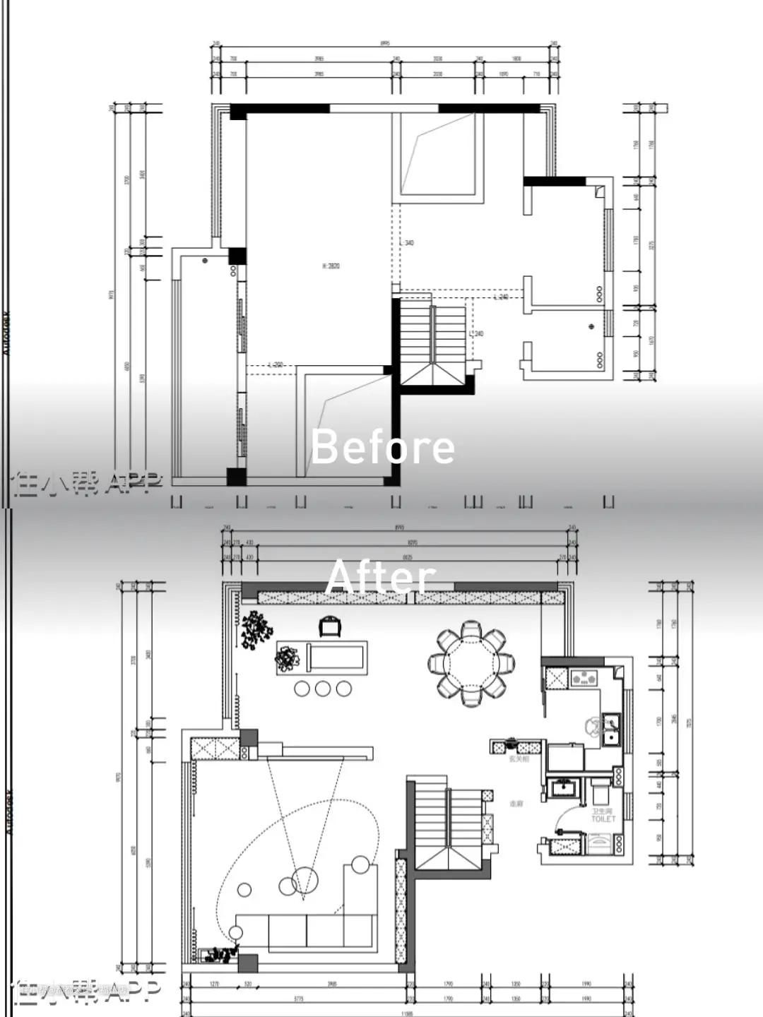
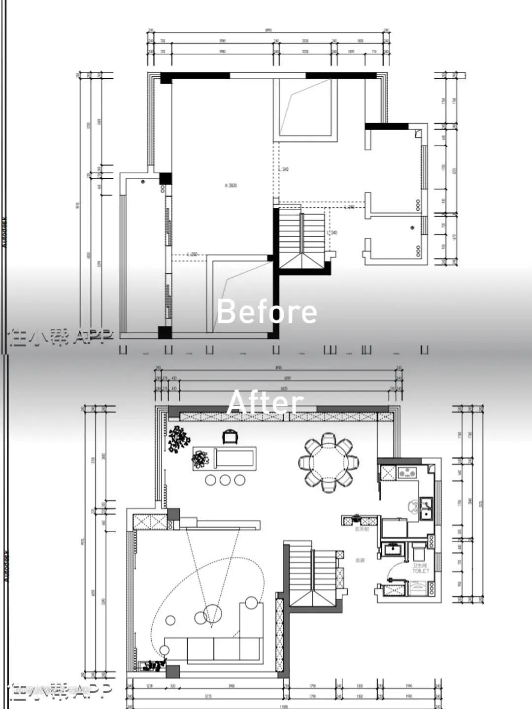
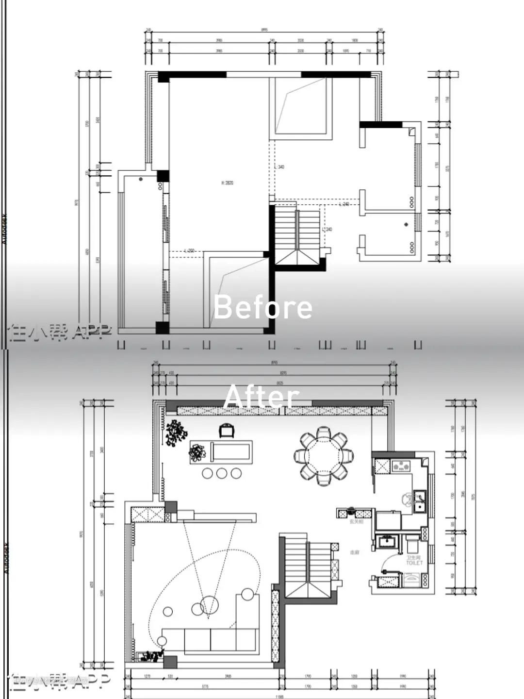
户型分析: 1.户型赠送面积较多,通风井打通后整体空间没有隔墙,需要重新布局; 2.入户门位置没有鞋柜,客卫空间较小,楼梯坡度较高; 3.负一层娱乐空间没有卫生间。 户型改造: 1.入户增加了穿插鞋柜,做了透光,增加了客卫和过道的采光, 2.开放式书房和餐桌做了贯通,餐厅区域飘窗位置拆除,增加收纳柜, 3.客厅悬浮电视墙,从沙发看向电视墙,半悬空的电视墙加持了客厅的纵深感,视觉上显得空间更有层次。 4.负一层增加了卫生间,同时也保留出台球桌和茶室的位置,又增加了一个棋牌室的空间 5.楼客卫较小,利用设备平台外扩,增加卫生间空间,让卫生间功能实现3等分。 主卧增加了一个L形衣帽间。








客厅整体以咖色作为大面积的底色,背景墙利用白色咖色拼接做分色处理,让客厅不再单调的同时突出客厅的层次感,跳脱的色彩不仅保留了客厅清爽视线,还让空间更加有趣味性。 客厅是整体布局上通透流畅,藉由沉稳的咖色引申出自然朴质意趣。 哑光皮面的沙发很有中古的味道,越用越有韵味,皮革迷人的质感自带一种怀旧与复古感,在繁忙枯燥的现代生活中,给我们增添了浪漫复古的情调。 在大大的落地窗前摆放舒适的哑光皮质椅,因为现代家居追求的简约,流畅的家具让整体风格更加的简练又不失丰富的品味,令人回味悠长。 客厅的落地窗让整个屋子内部充满了阳光的味道,让家与自然相互连接,亲切也温馨。 对电视墙没有过多收纳需求的,做成悬浮电视墙设计,让空间拥有漂浮感。转角空出一个过道,如此一来,整体造型不会显得生硬呆板,也多了一份温柔力量,空间瞬间有了呼吸感,不显得局促。




餐厅是直排式座椅设计,橙色的椅子和黑色的桌子更加具有视觉冲击。 储物餐边柜+餐桌一体设计这样一个全开放式的小小空间,就可以轻松实现餐厅、茶水间、交流等功能,让整个家的视野和氛围也相应得到改善。


厨房面积宽敞,动线明确,整体呈现U型布局,灰色橱柜搭配整体色彩效果,显得整洁清爽,上下无把手橱柜的设计大大增加了储物空间,美观性和实用性兼具。





主卧的配色是白、咖、灰的组合,静音地毯的加入让整个主卧提升档次,这是属于屋主独特的浪漫和生活。 床头柜保持同一色系,木质的家具质朴稳重,纯色床品中和家具色彩稳重却不沉重,呈现出一种慵懒感,营造静谧舒适的氛围。








次卧是极简的搭配,空间以纯洁的白色作为主要色调,仿佛一位画家在空白画布上任意发挥,原木元素为这个空间注入活力,在视觉上带来舒适和享受。复古的羽毛吊灯和碎花窗帘让空间看起来不单调,隐隐透着精致氛围。







二楼的休闲区属于一个多功能区,既能够在这里看书喝茶、还能打台球娱乐又能储物收藏。 浅咖色的不规则绒面沙发复古质感满满,让空间显得更温暖,让人感觉非常舒适,越看越有味道! 另一边是麻将棋牌区域,周末休息时可以带朋友一起到活动区域畅聊玩耍,是一件快事!


卫生间功能区分隔均匀而明确,全透明黑灰色玻璃门隔断干湿分区,实用性更强;整体是哑光白色,给人一种明亮又干净的感觉,简约而舒适。
