3D全屋

方案解析
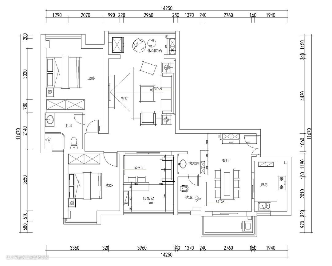
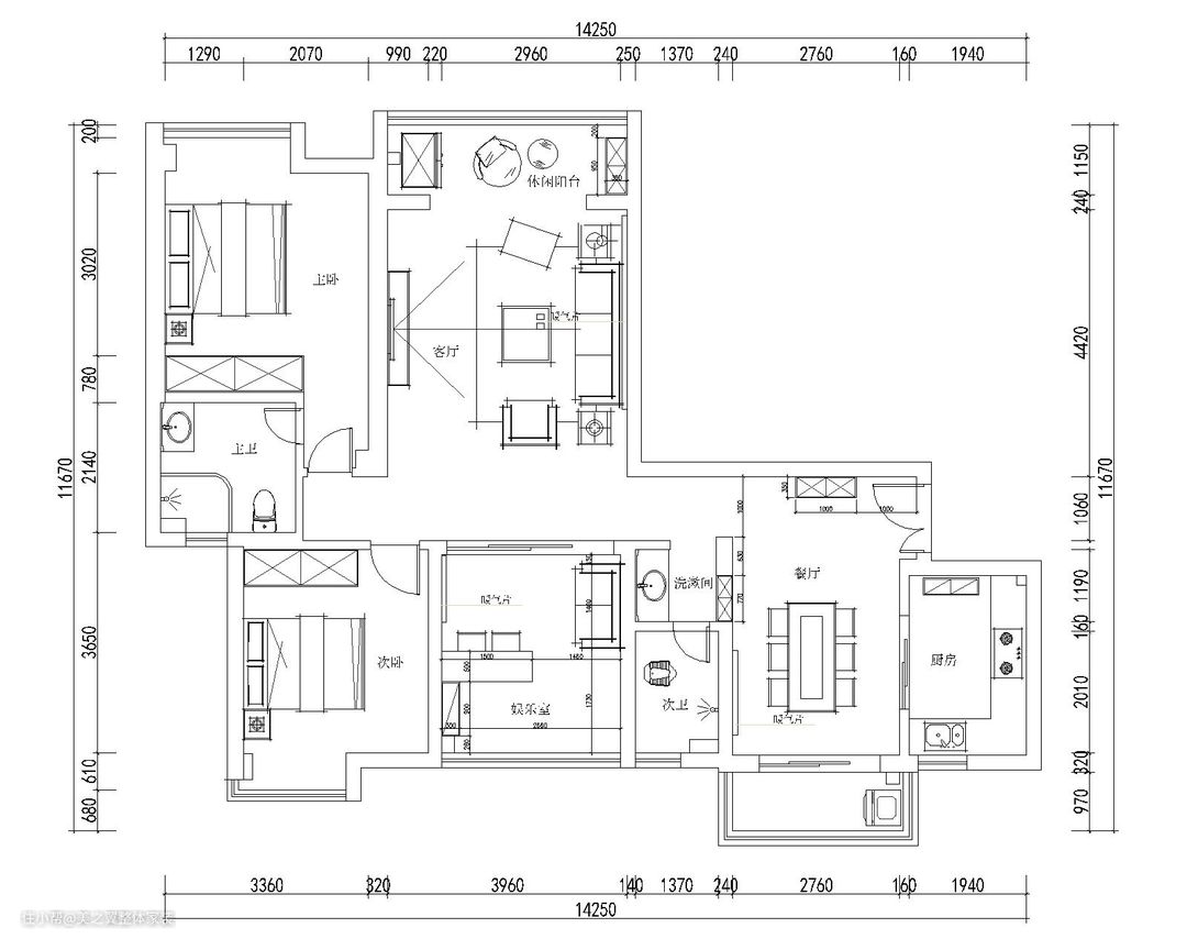
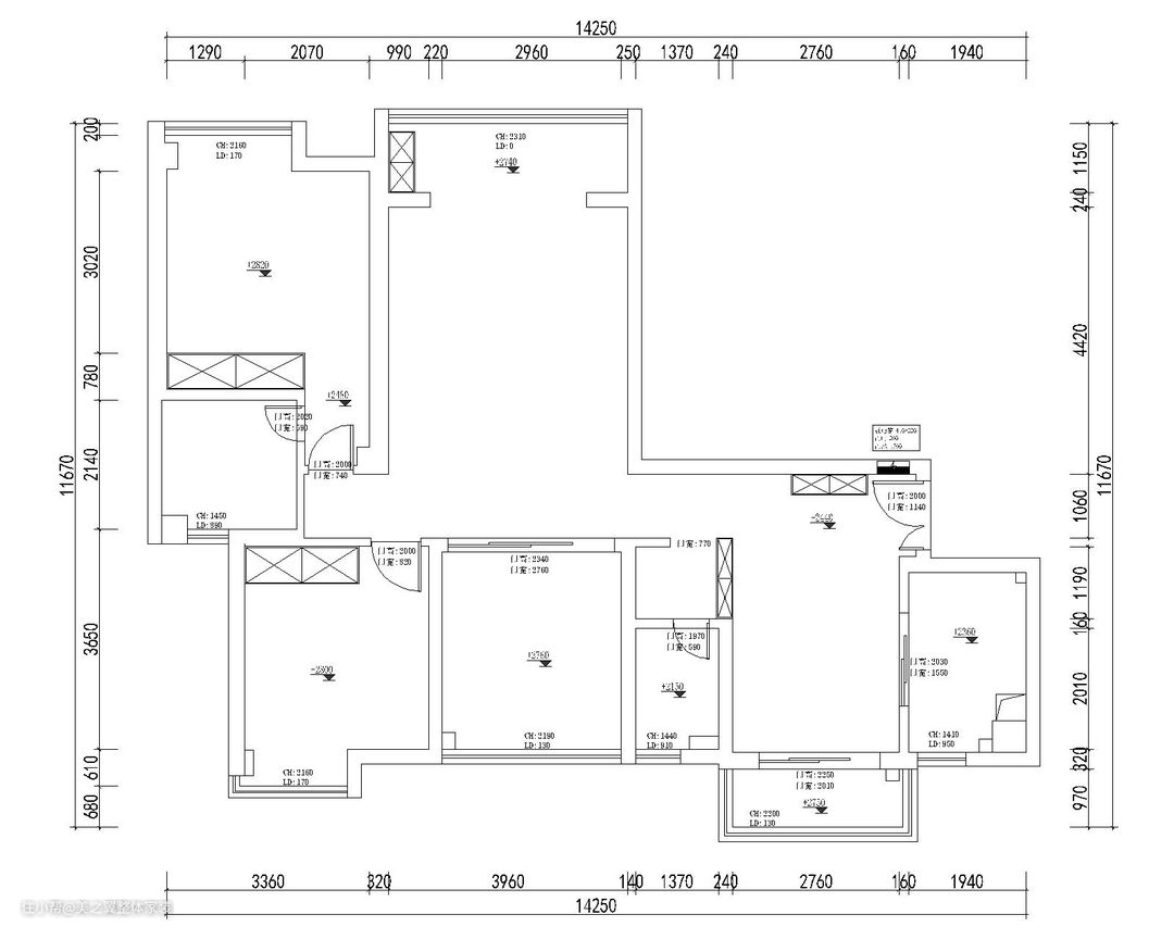
客户对施工工艺有一定的要求,需要储物空间和休闲娱乐的空间,并且看中施工过程中使用的材料与环保程度,对于空间关注度上,客户最看重客厅与餐厅的空间设计。 在房屋的原始结构上,客户对于空间的设计存在不合理的感受,而客户对于房屋的需求,必须保证通风采光、收纳储物都能满足,且能有一定的个人私人空间,于是设计师针对房屋结构与业主需求,对户型进行了微改与安排,确保了业主的入住需求。


餐厅

客厅

阳台

次卧

厨房

卫生间



客户对施工工艺有一定的要求,需要储物空间和休闲娱乐的空间,并且看中施工过程中使用的材料与环保程度,对于空间关注度上,客户最看重客厅与餐厅的空间设计。 在房屋的原始结构上,客户对于空间的设计存在不合理的感受,而客户对于房屋的需求,必须保证通风采光、收纳储物都能满足,且能有一定的个人私人空间,于是设计师针对房屋结构与业主需求,对户型进行了微改与安排,确保了业主的入住需求。







