设计亮点


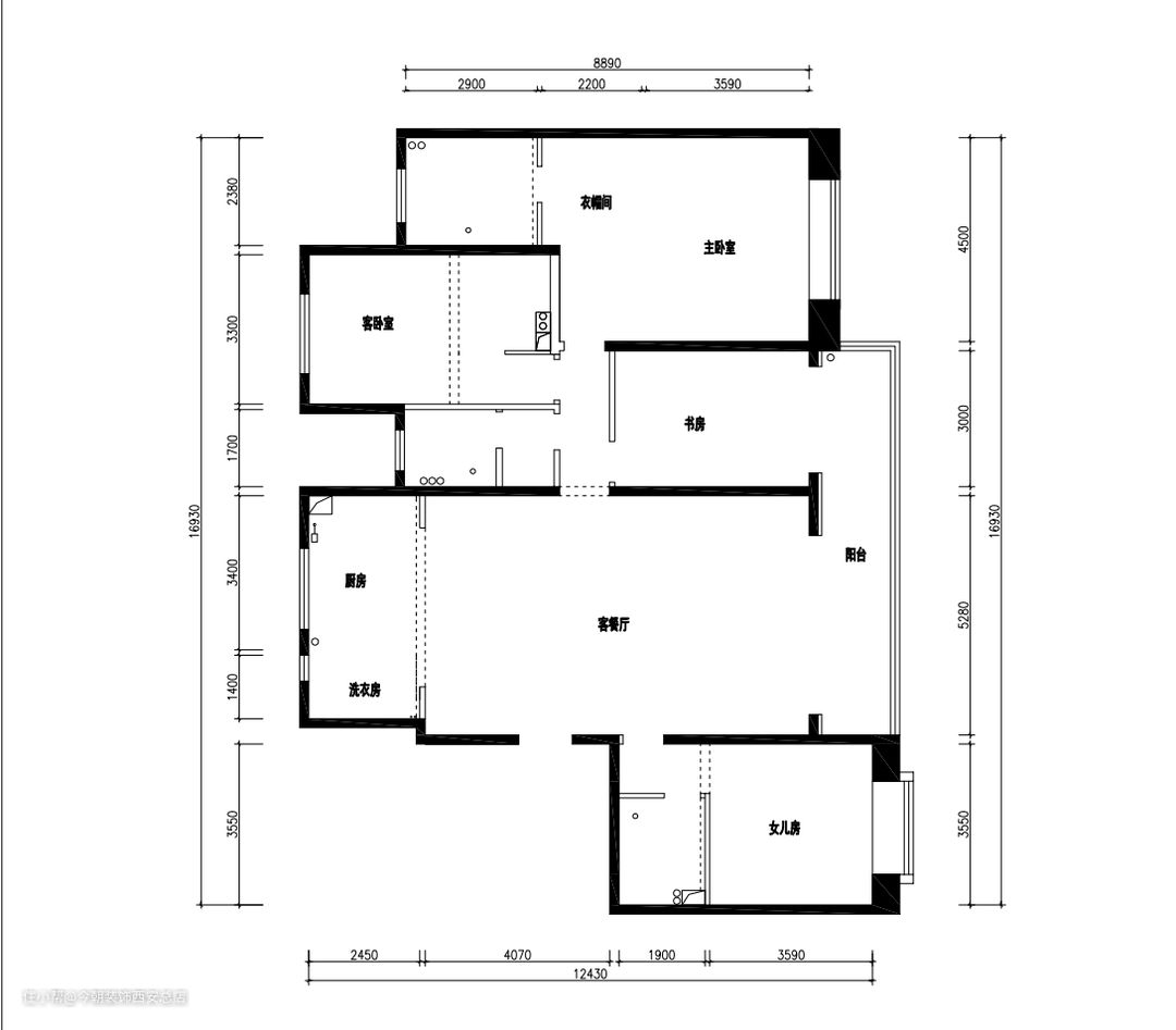
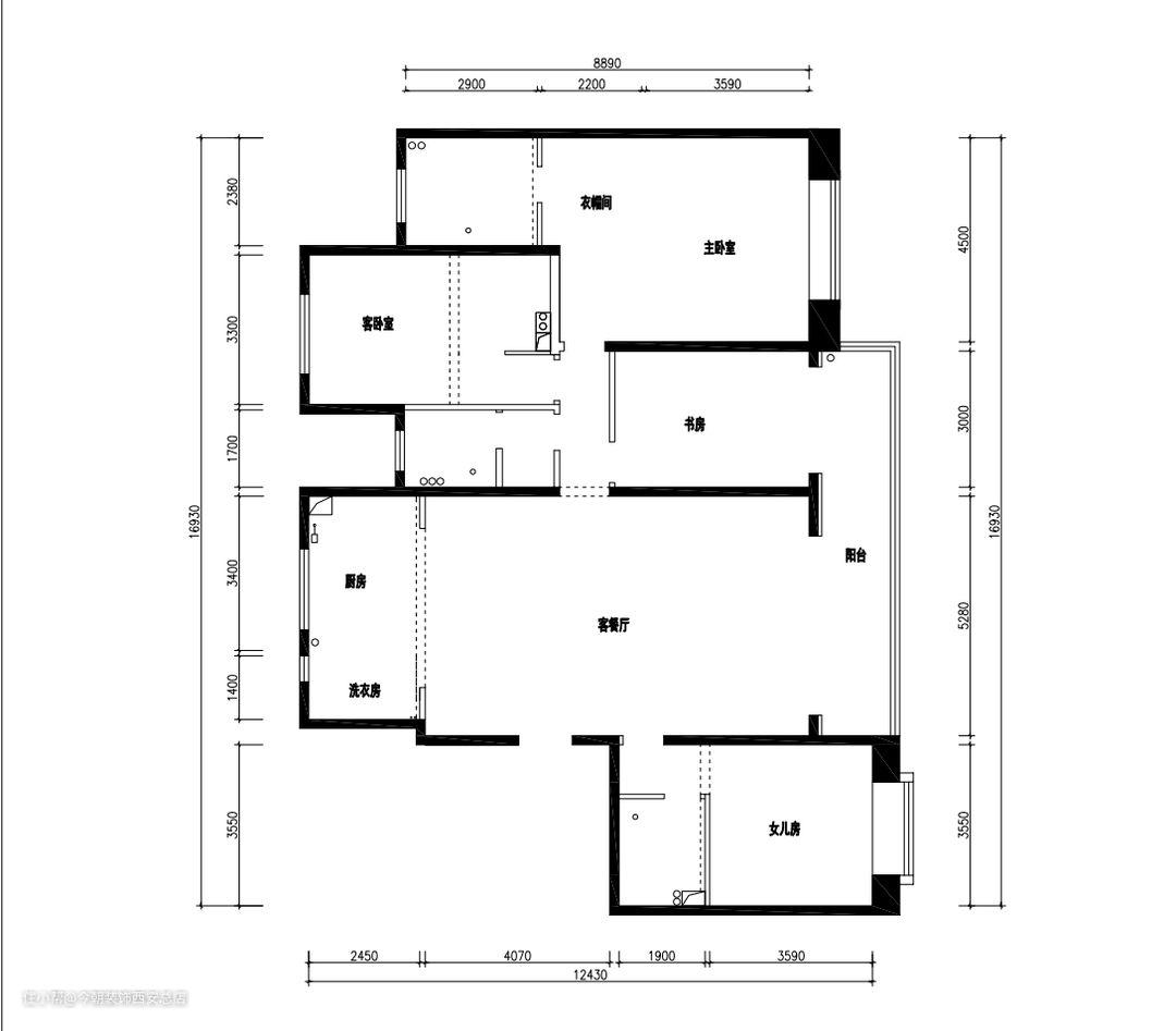
装修前
▲ 原始结构图 ❶ 户型很方正,没有过多需要改动的地方; ❷ 生活动线、家务动线很清晰; ❸ 视觉采光非常完美,双阳台设计可高效利用; ❹ 电视墙不完整,需要稍作调整。
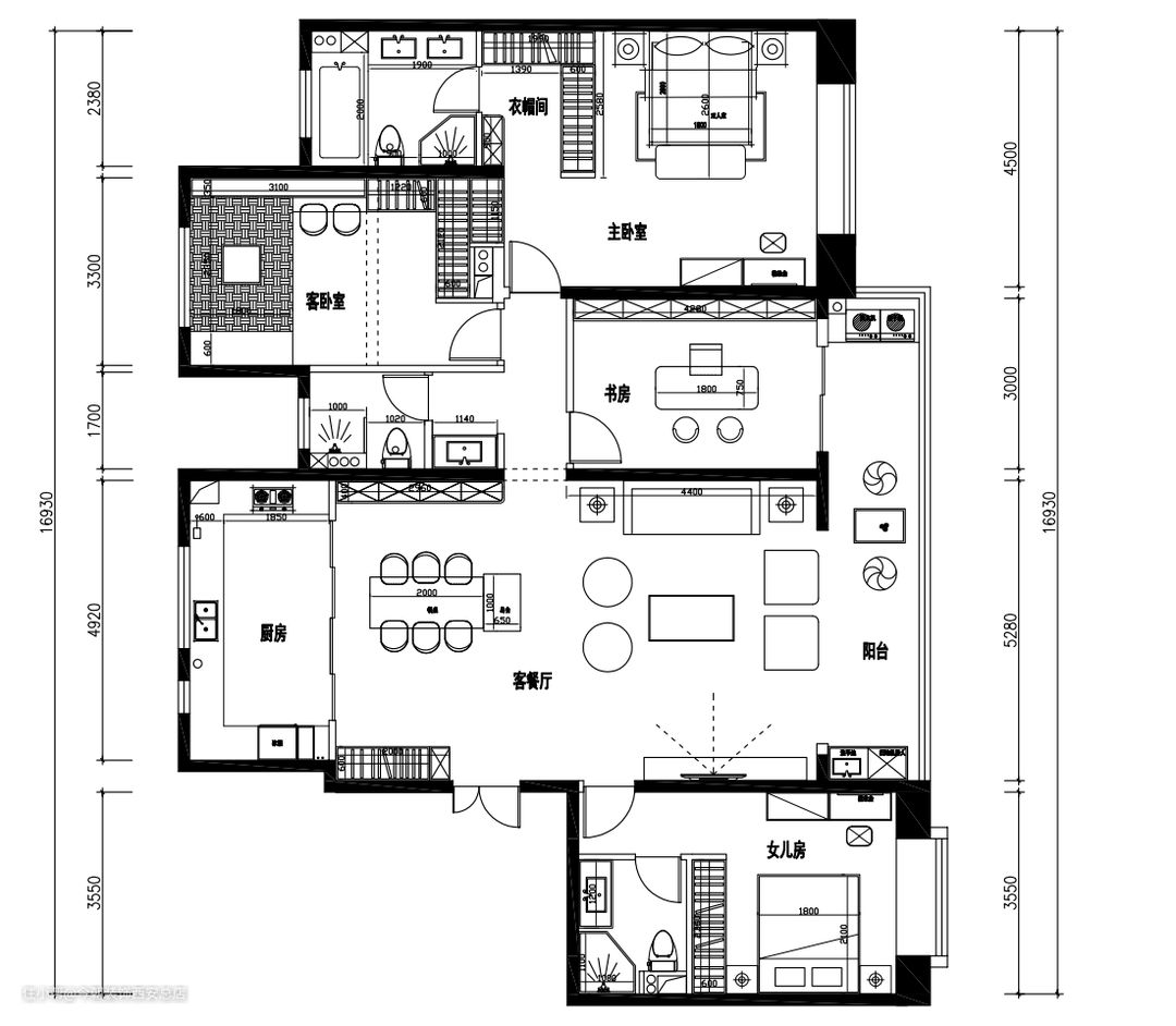
装修后
▲ 重新布局 ❶ 三个朝南的卧室分别做主人房、女儿房、书房,北向卧室做储物+临时客卧; ❷ 公共区域收纳统一集中到餐厅+阳台位置增大客厅的活动区域; ❸ 客卧作为临时所用稍显浪费,做背靠背衣柜,匀一部分空间给主卧; ❹ 餐厨做LDK设计,四联动推拉门实现开放式厨房要求,通风采光更加完美。
客厅


设计亮点
▲ 客厅全貌 整体色调:胡桃木色+奶咖+灰调 瓷砖通铺、整体吊顶,顶地面形成一体感,加上开放式厨房,整个餐厨客阳台更加通透宽敞。 大平层的视觉感、优越感得到最大的释放!
厨房

设计亮点
U型厨房设计,宽敞的操作台、嵌入式冰箱,使用跟功能上足以满足三口之家的日常使用。
主卧


设计亮点
▲ 主人房 以宽敞、明朗、足够收纳、已打理为主,借用了客卧部分的空间,用来做当季衣物收纳。 主卫按照主人的需求设计【双人梳洗区】【泡澡区】【淋雨区】,舒适度分值拉满。
次卧

设计亮点
▲ 女儿房 做了点光源分散设计,满足不同时间段对灯光的不同需求,暗卫是这个房间的弊端,做了双排气+电热毛巾架设计,保证空间干燥。
书房

设计亮点
▲ 书房 这里作为全家的办公、阅读区,整墙的书架是标配,双向办公桌椅更好的满足需求。
临时客房

设计亮点
这个房间日常作为收纳不常用的物品,偶尔来客做临时住宿,也是另一个书房的形式。设计了舒适的榻榻米,足够容量的收纳柜,以及临时办公或者看书的设计。
卫生间


设计亮点
做为日常不太会使用到的客卫,干湿分离的设计,便于打理卫生。
