设计亮点


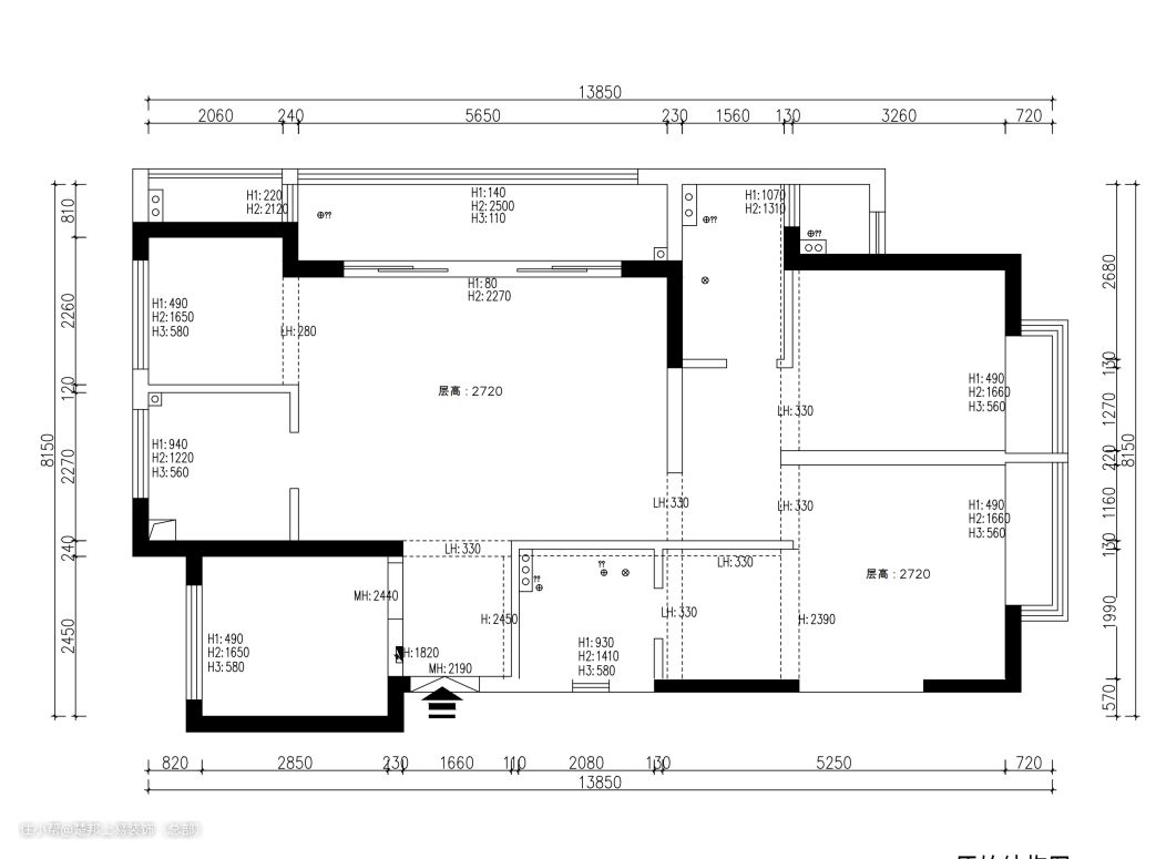
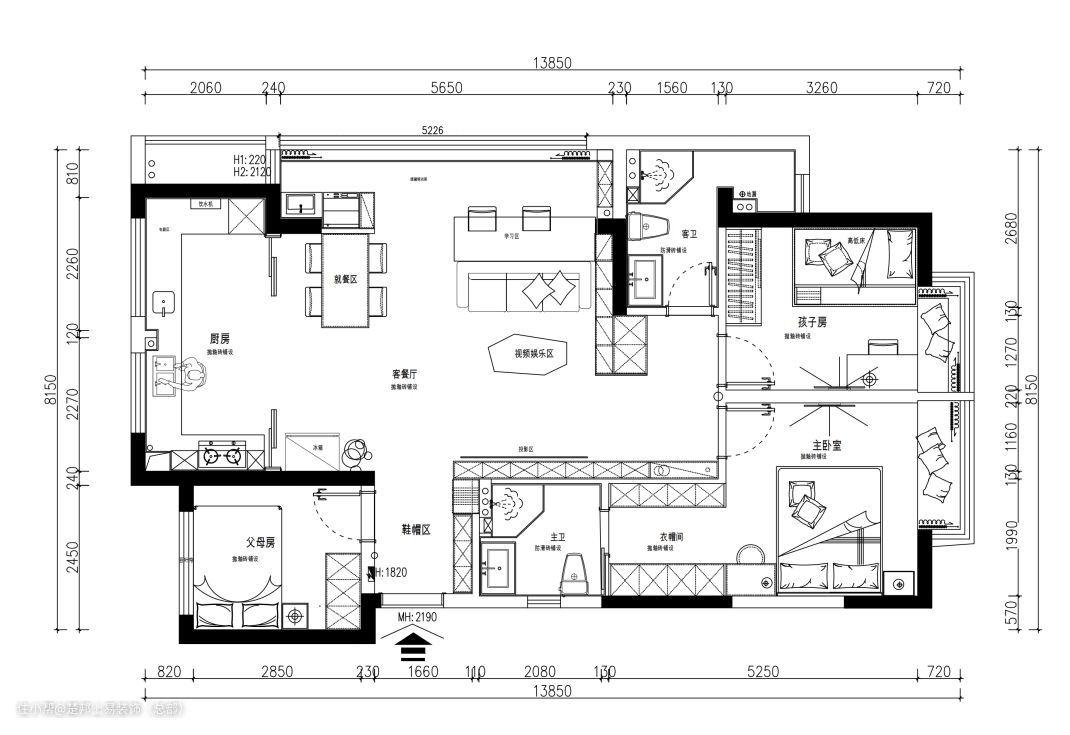
坐标丨杭州·万家风华 户型丨3室2厅1厨2卫 面积丨109平方米 风格丨现代简约 施工单位丨楚邦上易装饰 设计亮点 ①将客厅部分空间规划成门厅,一部分纳入主卧体系,又将阳台纳入客厅,补足客厅活动空间。 ②打破原始4房3卫的布局,打通书房与客房间的非承重墙,采光更佳,并配上可供休息的榻榻米空间,诞生了孩子完美的学习区。 ③餐厅空间也进一步扩大,特意设计的岛台功能多样,形成了互动型家居。
客厅




客厅精简了家具,以“低重心”的方式强化包裹感,让交流互动面对面;加上恰到好处的灯光氛围,让整个空间散发出慵懒、治愈的气息。 墙面刷上雾灰色调的油漆,加上夕阳灯梦幻的光晕,让整个空间瞬间柔和了起来。奶咖色的皮质沙发与雾灰背景墙形成视觉层次感,书写下恬淡、简约的空间情绪。
餐厅



餐厅设计成开放式,方便各个空间的家人及时就餐,形成了流畅的动线。为了进一步增加餐厅的储物功能,除设计餐边柜外,还于餐桌前置了一方岛台,既能收纳零食、碗碟等,台面又可作为备餐区、烘焙区使用,一举多得
厨房


银灰色橱柜隐匿着一股高贵、典雅的气息,还耐脏、易打理;无拉手柜门立面干净利落,视觉效果更佳。
主卧



低饱和度的配色加上柔软舒适的床品,在温暖光芒的晕染下,生成一个静谧、舒适的酣眠空间。
次卧

卫生间


次卫一体化设计,整体布局简洁大方,功能区划分明确。高端的卫浴设施与简约的设计相得益彰,营造出一种现代与优雅并存的氛围。
