
装修前
【屋主需求】 1、房子是给父母养老的,希望有两个卧室,卧室不要太拥挤,注重互动性 2、有充足的收纳空间,提高空间利用率 3、最大程度保留房屋的采光,明亮通透又温馨
装修后
1、将两个卧室打通,做一体化布局,增加视觉水平距离 2、厨房和客厅打造双II型走道+U型布局,提高空间实用率 3、客厅与卧室之间做半墙屏风与隐形门设计、阳台与客厅打通、无主灯设计、木质+玻璃材质搭配,优化采光


设计亮点
业主魏先生在装修前,做了不少的准备工作,素材和想要达到的效果表达清晰明了,使得在前期设计方案的时候,我们的设计师高鑫与Mr.魏进行了极其充分的互动(上面是双方交流中留下的手稿图),最终达到了切实的落地。




设计亮点
效果图与实景图对比 👆






设计亮点
视线水平的纵深感越强,空间给人的尺度感就越大。 利用这个原理,设计师将阳台做了封窗,与客厅相连于一体,再加上卧室与客厅之间半墙多面窗所做出的“屏风”设计,让屋子的纵深距离得到了极好的延伸 以及多倍的采光。 客厅做了整墙的收纳定制柜(最大深度400mm)提供了极大的收纳空间,还让整个屋子显得简洁有序。 全屋做无主灯的设计,并沙发背景墙一侧做了转角45°的铝槽灯,增强照明均匀度和亮度,营造独特温馨氛围,让空间看起来更加开阔。


设计亮点
阳台两侧均定制做了收纳柜体,一侧做洗衣伴侣,并提前预留了放置扫地机机器人等智能家具的尺寸位,可以将物品更整齐有序的存放。在洗衣烘干一体机的上方也专门预留了小空格,取洗衣液、衣夹等物品时能够顺手自如;在洗手池的上方还有可以晾晒毛巾的衣杆。 虽然家里有烘干机,但考虑到实际的生活情况,难免还是有晾晒衣物的需求,因此,在吊顶改造出内嵌式的多功能电动晾衣架,具备实用性又能保留家居的美感。



设计亮点
以温柔的奶油色作为主调,加上大量运用弧线元素,整个空间呈现出优雅柔和的质感。 餐厅靠近公卫以及厨房,其中餐厅与卫生间的半墙玻璃砖隔断给空间带来了留白的“呼吸感”,空间并不显得拥挤。 冰箱则是安置在了厨房外,与餐边柜做水平面持平的内嵌设计,实用与美观兼并。
软装搭配
餐厅摆上圆形的餐桌,可以容纳多人用餐,又不占用太大的空间,加上全屋的门洞均作了圆弧形的造型设计,让家具和装饰之间的过渡更加自然流畅,环境温馨而舒适。



设计亮点
玄关做了一个顶天立地的收纳柜,柜体采用了米白色的肤感板材,质感细腻,鞋柜的一侧是一个换鞋凳,方便家里老人能够坐下来换鞋,在换鞋凳上方的木板墙面上安装了几个挂钩,用于挂放外套和包包;




设计亮点
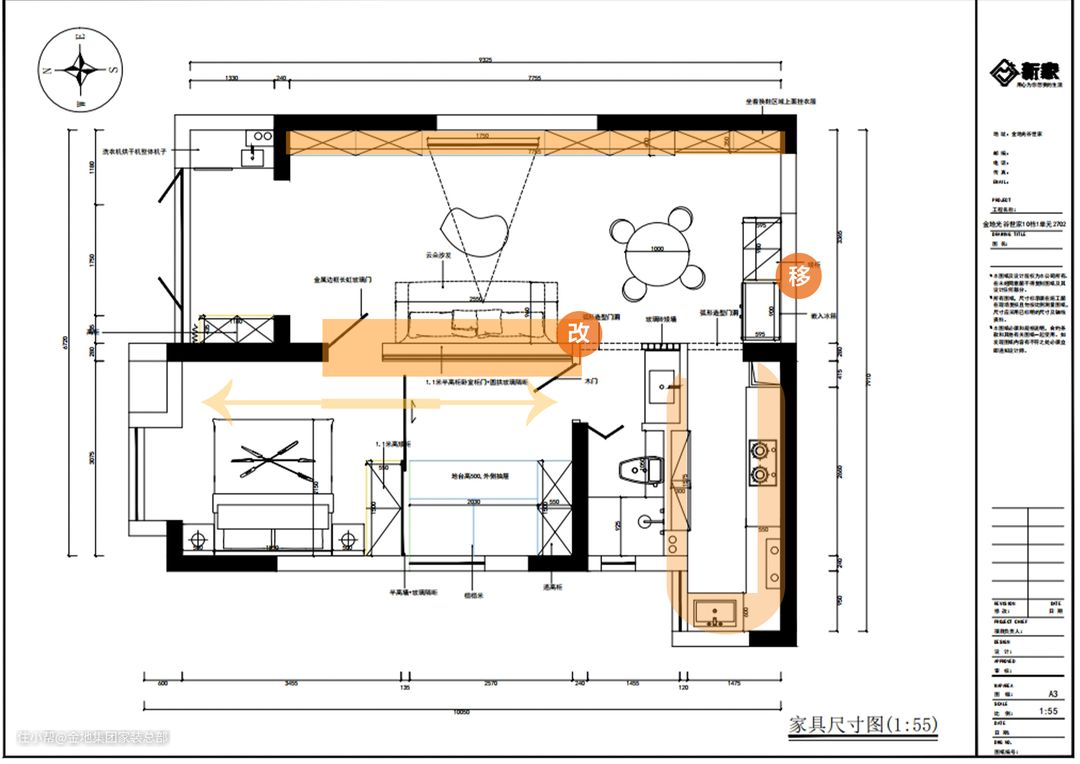
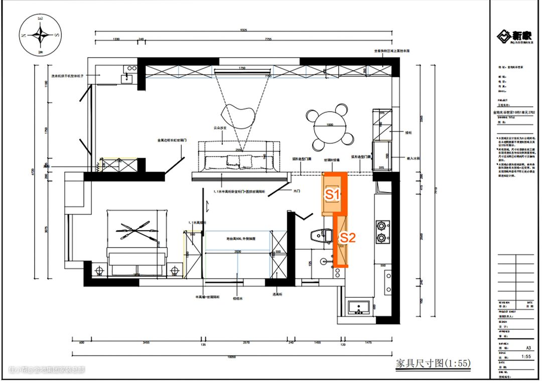
厨房的空间利用率一样得到了极大的提升,将厨房与公卫之间的墙体做S墙改造,厨房的右侧就多了一个可收纳的多功能台面,这样就实现了双II型走道围起来的U型厨房布局。 动线不仅更加便利,厨房两侧也均可储物/做备料台,过道既是交通空间,也是收纳操作空间,还是生活空间的一部分。


设计亮点
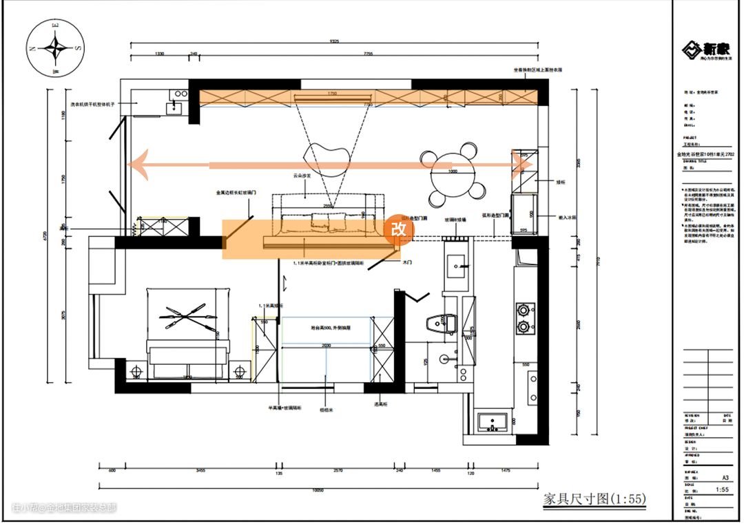
进来卧室区,也是整个房屋的亮点之笔。将两个卧室打通,实现了通风、通光和通情的效果。 �通风——将实墙打通,以极窄边框的玻璃滑动门做隔断,将门推到一旁,两个房间就能够实现一体的空间式布局,两个房间的窗户形成空气对流,为小家引入清新的风。 ☀通光——屏风的设计再加上更自由的光线流动,空间更明亮,视野也更清晰,自然光撒入到原本就带暖色系的法式奶油风家中,温馨感满溢。 ❤通情——原本分隔在数个空间的家人,得以共享一个大空间,与父母一同居住的时候,还能更加便于相互照应,彼此的情感互动频率更高。



设计亮点
主卧的门与圆供玻璃屏风做同款的设计,整个视觉感融为一体,只是在颜色上做了适宜的区分。卧室内吊顶转角45°的铝槽灯加上床头板内嵌的灯带设计,将空间的轻盈与氛围感柔化了出来。 靠近门的一侧放置半高柜作为衣橱使用,也很好地给予了两个卧室床体的隐私性。另外,窗台的下方也同样做了可以储物的柜体,解决小空间利用效率低、收纳少的问题。




设计亮点
次卧靠墙做榻榻米的床体设计,西侧保持了整洁利落的水平线,更好的释放了两个卧室之间相连的过道空间,空间尺度得到进一步的优化和扩大。 此外,利用客厅沙发后墙200mm的小空间,在圆拱玻璃隔断下方给次卧做了隐藏式的1.1米半高柜,增加了卧室的储物力,刚好“凸出”的木板墙还能作为沙发放置物品的收纳台,一举两用!




设计亮点
卫生间做干湿分离,采用不透影的磨砂推拉门做隔断,马桶与沐浴区之间则用⅓玻璃墙分隔开,提高空间的采光又能保有隐私性。另外,湿区的地砖与墙砖通铺长方形雾面砖,也达到了一定扩容的效果。 浴室柜专门选了带遮板的镜柜,可以避免洗手台直对卧室门的尴尬。
