案例赏析之为宠物猫设计的房屋
知名设计师詹碧涵
2019-12-17
猫咪房

这次项目主要是为了一对新婚夫妻
及他们的两只猫设计出一个三房两厅的安乐窝
从宠物的行为、人的作息作为设计的出发点
将两者的生活整合在同一空间下
既有互动的地方亦有各自的专属空间
设计师选用了草木绿、木纹质感
连贯柜体及空中走道的设计
来创造出这个简洁连贯的生活空间

相互穿透
空间以开放式为主
主要以半高电视墙作为一个半遮蔽功能
使空间得到充分的分隔
让空气、阳光保持自由流动
通透的规划让空间更宽敞

另外,为了保持简洁的感觉
设计师并没有采用灯槽设计
反而选用我们平日在展览厅看到的路轨式射灯
在夜间时,这种灯饰更可以营造出窝心的感觉

设计师利用半高电视墙
作为客厅及饭厅的分隔
整个家居的家具及饰面都使用木质材料
木材都以栓木皮喷漆处理
虽然设计以开放式规划
但是每个空间间隔仍然很分明



饭厅旁错落的层板为猫跳板
小猫可一直跳至天花板上
此设计增加了猫的活动范围
也让空间具有玩味感


设计师把这个设计概念完美展示出来
主人及小猫在客厅各有自已的生活空间
亦可以有一个微妙的互动



过道边的一个落地货架
4x5的储物盒
可以将喜爱的陈设摆放其中


延续宽敞空间
设计师把原本的墙身拆卸
改为用双面书柜
除了延续开放通透的客饭厅
亦增添了不少储物及摆放装饰物的空间
另外,把原先的房门改为黑框玻璃趟门
门框材质与客饭厅射灯路轨接近
令空间更为宽敞一致
仔细看设计师还使用了绿色的猫跳板作为此空间的点缀

多功能房采用了玻璃分隔

房内放置梳妆台和一架钢琴
而旁边则为木制的小猫家居以及小猫的用餐空间

小猫的休憩空间

动静结合
因为屋主喜爱大自然
所以设计师就为业主挑选了绿色为主人房的主色调
草木绿、浅色木纹,营造北欧森林的风格
给予人一种惬意舒适、宁静平和的感觉
睡房使用绿色墙身
而床边的柜台木材则是涂上绿色
犹如睡在森林中


透过趟门的设计让化妆台、电视、衣柜
整合在同一幅墙中

再加上草木绿的门把
犹如生活在树林中


猫本身自带的神秘感
常给人一种若即若离的感觉
人们常说猫很冷淡也不恋家
但还是无法阻止对猫的喜爱呀~

台湾 Loft H
由台湾ST工作室设计
房主和猫咪的开放式居住空间
位于台北市中心

设计师通过去除厨房、客厅
卧室和储藏室的墙壁
创造一个开放的空间




客厅设计了排陈列柜
房主用来放书和收藏品
猫咪也可以在上面串来串去

ST减小了房间的橱柜量
以保证空间的开放性和灵活性
整个房子以白墙和暖色调为主


首尔Loft
首尔OBBA工作室为
一对新婚夫妇设计的房子
房子的外观像是两座房子合在一起

房内设有可伸缩楼梯
和一间为猫设计的阁楼

猫咪喜欢在楼梯上玩耍
便专门为猫设计的楼梯
完全满足了猫咪喜欢上串下跳的乐趣

厨房和客厅占据了第二层的空间
确保光线吸收到充足的自然光

客厅的地板也可
当作厨房吧台边上的长凳
这样吧台既能当餐桌也能当书桌

在厨房的楼上是一个小阁楼
在里面安静的享受一本书或电影
偶尔还有猫作伴

东京The Cat House
由日本Key Operation工作室设计
坐落在东京一条狭窄的街道内

设计师设计了较复杂的内部空间
各个大小不一的房间相连

其中最大的空间是客厅
也是用餐区



为了让猫咪可以在房间高出穿梭玩耍
便在客厅的墙上设了一排排架子


设计师讲书架与楼梯结合
从楼下一直到楼上
楼梯所到之处都有书架
就是个小型的图书馆嘛



楼梯夹层有个小房间
用来办公或阅读


楼梯一路而上
还有个阅读的小空间
小猫在这楼梯穿梭一定非常有趣



伦敦温馨小家
Scenario Architecture工作室
为一对年轻夫妇翻新改建的房子
整体面积不大,却充满个性

内饰整体以白色为主
家具也非常简单

看不出这房子有任何
为猫设计的痕迹吗?
其实有个专为猫咪设计小走道隐藏天花板




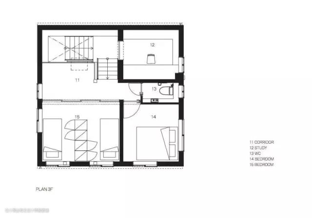
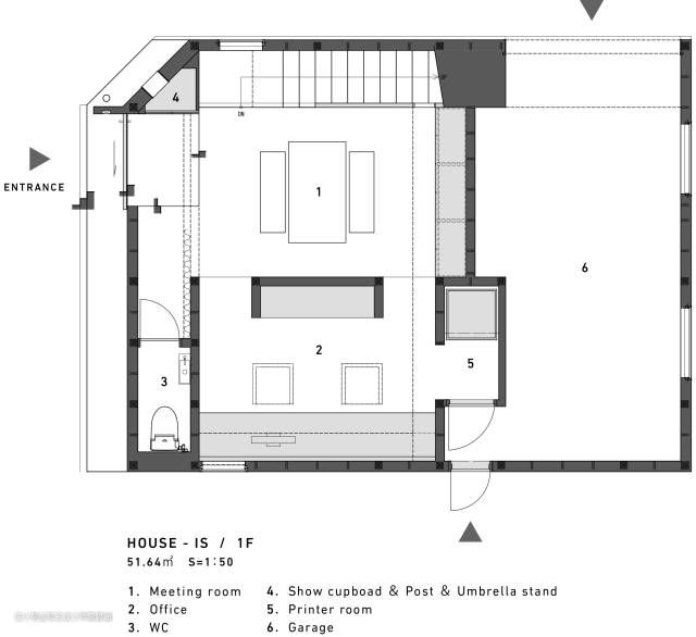
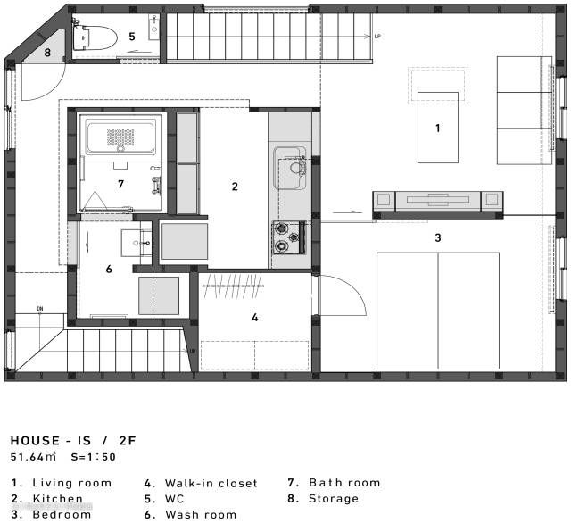
东京House Is
东京DO DO工作室的平面设计师
设计了一套房子,既是家也是工作室
工作室内,设计师为自家猫咪设计了条走道

一楼是设计师的工作区域
在货架上设有条小走道
猫咪可以在上面行走



楼上则是生活区域
设有客厅、厨房和卧室




客厅里黑色的储物柜

东京Inside Out
由Takeshi Hosaka工作室设计
房子的主任是一对夫妇
养有两只猫

房子的屋顶有一块是开放的
植物种植的这块开放的屋顶下
阳光和雨水都可以进入

有了这屋顶
犹如身处室外
外面的任何天气你都能看到



刮风或下雨的时候
只需把楼上的窗户关上
不会受到外面天气的影响

卧室和浴室都设在一楼



猫咪在楼下的走廊散步
既淋不到雨,还能享受享受太阳

在这里 分享最实在的小宅家居指南

有这么贴心的主人
这么赞的房子住
下辈子当只喵星人吧~

本文转载自网络:一起设计 HDD建筑与室内设计
仅用作学习交流 版权归原作者所有 如有侵权请立即与我们联系 我们将及时处理!