人体工程学如何决定了居家的舒适感?
上海木桐设计(西安)
2020-04-14
“我家厨面太低了,每次做饭都得‘猫着腰’……”这句看似平平无奇的日常小吐槽,决定了小哥哥在装修时,特别在意橱柜高度的问题。


与我们碰到的这位屋主一样,很多朋友在装修时都要和各种家居尺寸打交道。其实,生活中很多的不方便、不舒适,都是来自于设计时的尺寸没有依据屋主身高来计算。

厨卫、客厅、卧室还有阳台等等,各个空间都包含着许多人体工程学尺寸,一个尺寸的差错,都可能导致在日后的生活中出现各种不便利。
今天,聊到这个话题,木桐设计们汇总了在实际与屋主沟通时常用到的关于人体工程学的设计,从客厅到卧室,从鞋柜到衣柜,还有大家很关心的采光问题,背后都有人体工程学的奥秘哦~准备装修的你还不收藏起来~
客厅
1、茶几的尺寸
沙发与茶几之间的距离在450mm最合适,这样的距离在能保证一个人能通过的同时又便于二者的使用,即人不但能通过,且坐在沙发上时可以比较舒服的拿到茶几上的东西。一般茶几的最佳高度为300mm—450mm。


2、电视距离
电视屏幕不是越大越好,电视机要适应空间的大小。一般的情况下,电视和眼睛的完全距离是2500-3000mm。如果电视屏幕较大,距离要适当增加。

对角的观看者,也就是坐在沙发两边的观看者,17°的观看者距离在2000mm,25°的观看者在3000mm,32°的观看者在4000mm,37°的观看者在5000mm。

3、沙发尺寸
两口之家客厅一般建议沙发的宽度至少为1750mm,大于两人或者家庭经常有客人来往建议不小于2100mm,坐位的深度不小于600cm。
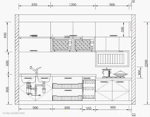
厨房
厨房的操作台高度一般为800-900mm,并对操作台的生产提出建议:采用定型合身,多样化台座,即台身用高800定型,然后用台座增减高度,使台高可以在800和900mm之间调整。
按照人体工程学原理合理的灶台高度在人体肘部以下10-15mm,烹饪者上臂与腕部的角度应大于95°,合理的水槽高度在人体肘部以下5mm,如果家里有儿童应设计1个脚踏步,高度在200mm左右。灶台高度通常是800mm,水槽高度通常是920mm。


身高和厨房台面的高度关系可以按公式推送:身高/2+(5~10)公分。这样的高度正好是人的手臂自然抬起的高度。
卧室
1、床的尺寸
我国标准双人卧室的面积一般不小于12㎡。方形双人床的宽度是1800mm/1500mm,单人床宽度是1200-1350mm,长度是1800mm/1860mm/2000mm/2100mm。
圆形床的直径为φ1860mm、φ2100mm、φ2400mm,床高度350-450mm。

2、床头开关插座
①开关插座离床两侧分两种方式,一种是在床头柜居中位靠近床一侧预留开关位置,另一侧是插座位置;

②一般情况下,床头柜的高度都在550-580mm左右,而插座高度一般应该比床头柜更高150-200mm左右更合适(放书籍及手机电子设备、水杯)。所以插座的垂直高度距地700-800mm。假如床是2000mm的,床头两边的插座应该留有离床200mM宽,离地高度在700mm左右的距离,以床为中,插座在左右方向各偏1100mm左右。(减掉一旁衣柜的尺寸)。
卫生间
1、洗脸盆高度
洗脸盆太低或太高都容易造成身体疲劳,对于身体不适的朋友来说体验程度会非常不好。一般情况下,洗脸盆使用高度是750-850mm,目前大多数人的选择会在800mm左右。身材较高的朋友(男士1.8米以上,女士1.7米以上)则可以考虑900mm高的洗脸盆。

3、马桶的尺寸
马桶的高度,按照中国人平均身高设计,一般为430mm到480mm,马桶安装高度以人的小腿弯离地面的高度下30mm到80mm左右,是人体比较应宜的高度。这样一来,马桶的坐板不会挤压到人体的大腿,防止大腿血液不畅通,还可以辅助腹肌的力量以及肠道的排便力量。
具体到每家每户中,以家庭身高中较普通的成员为参照对象,选择需求的马桶,就基本满足家庭其他成员。小孩和儿童则需要小孩专用马桶。
家庭衣柜
小孩在2-9岁的标准升高变化在870-1285mm之间,儿童衣柜的挂衣高度宜设置在600-1200mm之间。成人用标准衣柜挂衣杆的高度一般是1200-1500mm左右,一个同时满足儿童全生命周期使用的衣柜挂衣杆(区)的高度最好可以600mm-1500mm做升降调整。

鞋柜
1、鞋柜的深度设计一般合理范围是300-400mm,一般鞋子的尺寸不会超过300mm,同时也可以满足放置一个鞋盒深度;
2、半高鞋柜的高度设计一般在1000-1200mm之间;回家时,方便钥匙与包等小物件随手摆放;换鞋凳的高度在400-450mm之间;
3、鞋柜内部层板的高度一般在150mm左右,高筒靴除外;
4、鞋柜中抽屉设计,一般的高度在200mm之间,在鞋柜的位置处于800mm左右的高度,方便进门小物件的存取。
在鞋柜的尺寸设计时,最好了解到自己家人的鞋子尺寸以及数量,低帮鞋、高筒靴、小孩鞋等做好分类,做出最大化收纳设计。

一个易被忽略的补充:
了解了以上常用到的尺寸参数,再补充一个大家容易忽略的问题,很多人觉得房间的采光不好,其实这也涉及到人体工程学中的“窗地比”,即窗户和室内的面积关系。
室内采光和日照是通过窗户来实现,当窗的面积小于室内地面面积的1/16时,人在当中会感觉不舒适,窗户太大也不是很好,会影响房间的私密性和房间的节能性。我国建筑设计规定各空间窗地比(窗户面积/地板面积):卧室、起居室、厨房不应低于1/7;卫生间、过厅不应低于1/10;楼体、走廊不应低于1/14。
(图片来源于网络,侵删)