50㎡凸字型公寓,打破常规设计,进门就是厅,让人耳目一新
保驾护航好物研究所
2020-06-22
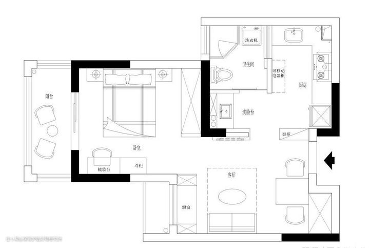
本期案例是一套50㎡“凸字型”单身公寓设计案例,户型可以说有点不规则,客厅空间狭小,与餐厅共存,而且不是loft户型,一楼整个空间都非常紧凑,可用的空间精确到1㎡。尤其针对我们这类资金不足的人群,小户型还算合适,无论面积大小,生活是绝不能将就的。


经过设计师的巧妙设计合理布局,没用浪费每1㎡,玄关处与餐厅一体,在右侧设计一排柜子,底部镂空放置日常鞋子,餐厅后边做一组衣柜增加收纳。


可以说每个空间都尽可能利用到,由于客厅本身面积有限,在于浴室公用的墙壁上安装电视机,所幸旁边是一扇飘窗,做成榻榻米式很舒服。


客厅的风格很是清新,墙面虽然掺杂了多种颜色,但是浅色打底反而让空间凸显了一种清爽之感。

厨房一体化开放式设计,将厨房化繁为简,干净整洁的操作区以及清新舒适的布局,十分满意。


最后是卧室,简约爽朗的背景墙,营造了一种温馨舒适的睡眠环境。全屋唯一的阳台,用玻璃门隔开,外部当做休闲生活阳台,一个人住也十分惬意。