重庆这对小夫妻103㎡的家,全屋太美太治愈!看完忍不住夸赞
本设家居
2020-09-01
爱情里的你,穿一件白色的上衣。绕过那卷发,浅浅地一笑,笑得好灿烂,那是我见过的最美笑容。
今天这个案例位于重庆,致物设计,业主是一对年轻夫妻,房子里每一个角落都流露出幸福的味道,被这浪漫温馨的居家氛围深深迷住,能把爱融入到家居设计当中,身处其中也能感到无比幸福。
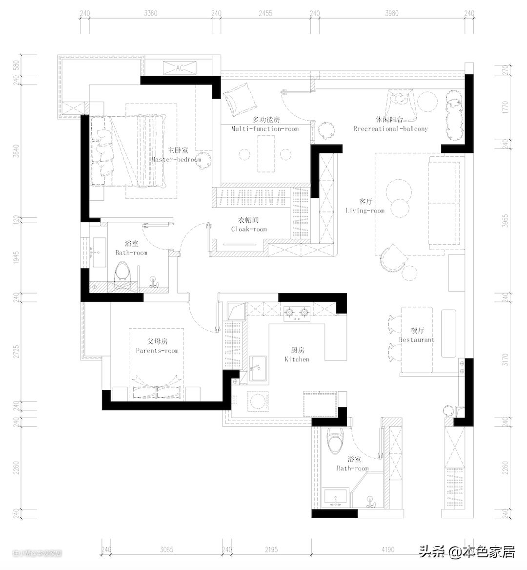
原始结构图

平面布置图

平面布局上做以下3点改造:1.拆除原次卫生间,将其位移到入户左侧。2.拆除原始户型的厨房位置及生活阳台的非承重墙,将空间合理重组。3.拆除原始书房改造成多功能房,也是为未来儿童房使用。改造后每一平米都得到极致利用,引进更多自然光,空间也更加宽敞明亮。
玄关

入户是一整排的收纳柜,左侧使用白色定制木板饰面。换鞋区地面高低差,可以有效阻挡灰尘。靠门的第一个格子同时具备换鞋凳的功能,柜子下方的隐藏式灯光,不仅给走道补光,从视觉上柜子更轻盈。

玄关和客餐厅之间使用黑框长虹玻璃做隔断,造型简洁大方,不阻挡通往玄关的光线,还能保护隐私,一举多得。
客厅

通过玄关,视线变得豁然开朗,米白色调的客厅采用无主灯设计,整个空间更加干净整洁。摒弃传统电视墙,隐藏天花的荧幕满足年轻人的观影需求。沙发背景墙选用三个圆形装饰画,简单明了,不拖泥带水。

悬吊式加隐藏灯光的L型收纳柜,一直延伸到阳台,有藏有露,平日里大量的生活收纳,都可以整洁的隐藏在美观的柜子里。

主人公出场,郎才女貌,故事的结局就是王子和公主永远幸福的生活在一起,让人不由得羡慕!

阳台和室外的绿植郁郁葱葱,充满生命力,而且采光极好。偶尔在此看书或喝茶,就能感受到徜徉在大自然的怀抱中,让人与自然和谐共生。
餐厅

从客厅看向餐厅,没有做过多的装饰,大面积留白,以及搭配简约的家具,把家里收拾的一尘不染,整个空间清新自然。

在玻璃隔断处的墙面做一道黑板,可以记录生活中的细碎小事,想的细致又周全。

业主追求材料的纯粹和环保,餐桌椅和边柜选择实木家具,搭配天花2个网红吊灯,颇具治愈的北欧风。
厨房

拆除原有厨房和工作阳台的隔墙,半开放式的厨房变得宽敞明亮,充满了生活气息,洗衣烘干机的布置方便排水。
主卧


墙面采用雾霾蓝乳胶漆,低饱和度色彩让人感到放松,营造舒适的睡眠环境。搭配墙上一幅脏脏粉装饰画,增添了层次感。

最让人惬意的是飘窗,室外景色宜人,大自然触手可得,非常解压。

衣帽间的设计一组悬挂架子,作为换洗衣物临时使用,拿取方便快捷。
次卧


次卧为父母或者亲朋好友来到家中的休息室,延续简约的设计主调,床品与主卧背景墙色调相呼应,干净且温馨,墙上扎染装饰画是整个房间的点睛之笔。
榻榻米


多功能房现在作为两口书房,将来打造成儿童房。阳光透过榻榻米房的百叶窗帘,整个空间散发出暖暖的光芒,温馨十足。
卫生间


主卫选用灰色和浅咖色墙地砖,次卫通过拆除部分地梁解决了马桶排水的问题,选用白色墙地砖,少量的原木色作为点缀,干净而不失格调,所有设施都整齐有序的摆放在空间,井然有序。
看完全文,你喜欢这样充满温馨的家吗?欢迎留言、点赞和转发。关注我,后期将有更多精彩内容绝不让你失望,谢谢!