电视背景墙藏了两道隐形门,解决背景墙有卧室门不好!
秦皇岛蓝琪装饰
2020-09-23
1、整个空间大量留白,开放式布局,让家看着特别通透敞亮。
2、客厅背景墙后面打造了两道隐形门,分别通往次卧和卫生间,好实用。
3、没有特别复杂的设计,却显得大方文艺,超级舒适。极简之上,生活惬意。
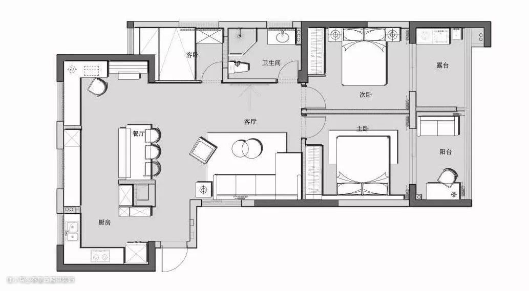
平面布置图

玄关

▲简约的小玄关,散发出文艺的小情调。尽头处的原木背景墙和绿植搭配得甚是应景。厨房


▲厨房,纯白色调搭配,清爽又大方,不过日常得勤加打理才行。设计了超多的收纳柜,东西置物其中,家也看起来特别整洁。
客厅


▲客厅两面背景墙,深浅两色形成鲜明对比。有小清新氛围,也带着些许沉稳。灰色沙发能坐下好多人,蛮适合请朋友来家串门。


▲电视背景墙有个创意的隐形门设计,门一关整体感很强,门一开,就可以看到两个不同的功能区间。
餐厅


▲开放式餐厅,与客厅、厨房以及玄关都做了较好的衔接。长长的椅子可以坐下更多的人,方便日常好友聚会!
主卧


▲主卧布置得特别温馨。床头也精心设计了一番,可以放些装饰画和小绿植,侧壁还设计了小书架。
次卧

▲次卧比较文艺范儿,虽也是简单的设计,但软装搭配看着好舒适。原木卧床,格子床品,还有清新的绿植装饰画,好美!
书房


▲书房很适合工作学习,也可以一个人在这做自己喜欢的事不被打扰。从网上淘了铁艺置物架,还设计了照片墙,生活气息浓郁。
卫生间


▲卫生间面积不大,但是分区还是特别合理的。各种柜子、置物架,保证了日常的收纳需求。干湿分离也不赖!

小户型听我一句劝!装冰箱别只盯着厨房,这些地方也挺香
亚美利加整体家装
70赞
实用的高低床设计,让小户型儿童房,扩容好几倍
亚美利加整体家装
60赞
卧室面积太小,把床和衣柜结合起来,非常省空间
亚美利加整体家装
59赞
卫生间太小?把洗手台放在门外,搭配隔断更美
亚美利加整体家装
78赞
43平的小户型loft,娱乐区和收纳都有,谁看了不羡慕?
亚美利加整体家装
66赞