哈尔滨|恒祥中山140㎡高级感私宅,设计让生活更艺术
哈尔滨大树装饰公司
2020-10-03
▍项目简介:
【项目名称】:恒祥中山
【面积】:140㎡
【户型】:3室3厅1厨3卫
【设计风格】:混搭风
【设计师】:大树装饰张超
▍设计说明:
本次设计希望为业主打造一个简约而不简单、设计让生活更艺术。
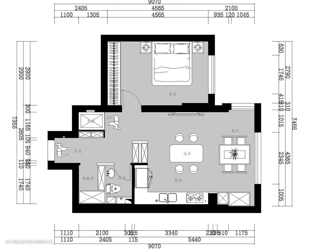
▍平面图:



▍效果图:
▼ | 客厅 |





▼ | 卧 室 |

▼ | 餐厨 |


▍实景图
▼ | 一层餐厨 |


▼ | 二层客厅 |




▼ | 二楼客厅 实景一角 |


▼ | 二楼主卧室 |

▼ | 三层女孩房 |

