好的卫生间不只要注重干湿分离,三分离设计更实用!
秦皇岛蓝琪装饰
2020-10-24
厕所,在日本无论是公共的还是家用的
都有一种莫名吸引力
那些干净到令人发指的厕所卫生
以及人性化的设计,无一不是亮点
但最令人深刻的还是他们对于厕所空间的利用

日本人酷爱泡澡
无论卫生间的面积大小
家家户户都标配浴缸
而在保证有浴缸的基础上
还能实现三分离甚至四分离

今天我们就来好好聊一聊「三分离」的设计

01哪些适合做三分离
首先我们要先明确一下三分离的概念
并不是说给浴室加个玻璃门或者浴帘就算是分离了
这种不是三分离
而是「干湿分离」

真正的三分离
指的是洗漱、如厕、淋浴分区
彼此空间不重叠
可以三个人同时使用
换句话说
三分离就是三个独立的房间
将卫生间的功能互相分担
彼此独立互不干扰

而二分离则退而求其次一点
将厕所分成两个独立区域
实现两个人同时使用卫生间


再退而求其次一点
就是实现「干湿分离」
把最湿的淋浴独立出去
给浴室做个隔断就行
这样就能避免把整个卫生间都弄得湿答答的


相较于一体式的卫生间
二分离和三分离能够实现干湿分离
极大提升了卫生间的使用舒适度

而三分离相较于二分离
则是将淋浴完全独立
将干湿分离体现的更为彻底
同时能更好地缓解多口之家在使用上的矛盾和压力
极大提高卫生间的使用效率

想象一下
如果是三口之家
晚上在妈妈泡澡的时候
爸爸能上厕所
同时孩子又能洗漱
如果人口更多,三代同堂的家庭
那三分离的优势就更为明显了

02什么样的家才适合做三分离
三分离的优点很多
但最重要的一点就是
它并不是所有的中国家庭的刚需


日本追求三分离的原因之一是因为在他们的观念里
洗澡和上厕所是不能在一起的
一个是「变干净」的地方
而另一个是「排污」的地方
卫生间要是不分离
对他们而言心理上是无法接受的
但这对我们而言却不是一个那么难以接受的事

所以,我们对于三分离的态度
不是从心理的角度出发
而应该从实用性的角度考虑
真正需要三分离的家庭
首先家里的常住人口至少得大于等于 3 人
不然根本没有必要

其次是家里有且只有一个卫生间
如果家里有两个卫生间
只要都做二分离
也已经能够满足日常使用了

最后需要考虑的就是家庭成员有没有泡澡的习惯
泡澡比起淋浴花费的时间会更久
而浴缸所在的空间里
有且只能供一个人使用
所以多口之家想要悠闲泡澡的话
把浴缸分离出去就很有必要了


除了实用性每家每户不一样以外
三分离对于中国家庭而言还有一个难点
不好实现
因为三分离对于面积的大小和户型要求比较高
要实现三分离的话,卫生间不能太小
而对于户型的要求就更高了

一般常见的卫生间形状就是
竖长条形、横长条形和正方形
而只有横长条形的卫生间是最有可能实现三分离的
空间最好划分
只要加上隔断即可




而正方形的卫生间的话
面积至少需要 4.6㎡


如果想要舒适使用的话
面积最好 6㎡ 左右


▲正方形常见的三分离样式
至于瘦长型的卫生间的话
几乎不太可能实现
因为要进入最里面的淋浴区的话
必然要经过洗漱台和马桶
动线是 3→2→1
如果非要实现的话就得拆墙

03三分离怎么实现
如果你家有一个足够面积的卫生间
也想做三分离的设计
但还是不知道怎么来分配空间
怎么办呢
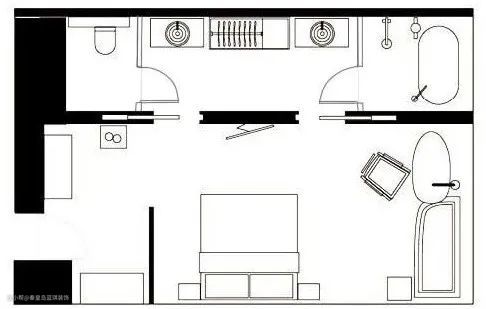
下面就来看一个小平米卫生间的设计案例
首先将卫生间左边的门改到中间位置
在门的右边放带储物柜的洗漱台
左边还能放洗衣机和洗衣池
中间砌上一堵墙
与里面区域划开界限
马桶和淋浴
同样是一左一右分配好
再砌上一堵墙分割出两个空间
这样三分离的格局就出来了
最后把入口分别做成斜墙
这样设计每扇门都可以自由开合
也不会妨碍到其他区域
其实说到底要不要三分离
还是得看它到底能不能因地制宜
对于多口之家而言
三分离的方便程度远胜于二分离
但是二分离对于空间的要求更小
对于小家庭更为合适

所以选择三分离还是二分离
还是应该从自己的实际需求出发
而不是追求所谓的流行
这样才能真正提高自家的居住幸福指数




新中式装修风格到底有多火?看这45㎡超大客厅变身记!
26㎡小公寓看上去居然有40㎡!
装修十连问?只有经历过,才明白其中的苦!
5款男孩儿童房装修效果图,款款有亮点
羡慕朋友可以将80㎡的家装出120㎡的味道
铺贴瓷砖为什么要用瓷砖定位十字架?