跃层空间该如何设计?这么安排避免一切不方便
武汉装修白小杨
2020-10-21

什么是跃层?
老规矩,先了解户型,再谈设计!

简单来说,就是一套房占一栋楼的两层,房屋内部通过楼梯或电梯连接。

△一楼

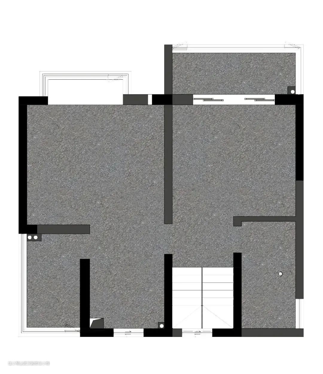
△二楼
优点
①布局明确,动静分区良好,隐私性好。
②跃层式住宅,大多都有较大的采光面,通风条件也比较好。
③跃层的两层层高都属于正常住宅的高度,相对于复式、Loft,入住舒适度更高!
跃层布局设计
说完跃层的定义,咱们再来聊聊跃层的设计!
1、整体布局

△一楼

△二楼
跃层住宅通常一楼的主要功能是:客餐厅、厨房、卫生间、客卧。
二楼设计主卧、衣帽间、主卫、次卧。
2、横厅
刚才我们说,跃层通常有很大的采光面,除了客厅挑高的情况,也是因为很多跃层都是横厅!注意空间布局很重要!
推荐客餐厅布局 ↓↓↓

△沙发不靠墙+餐厅

△沙发+固定柜体隔断+餐厅

△沙发+吧台隔断+餐厅

△电视墙做隔断
3、增强空间线条感
很多跃层住宅,本身面积就比较大,设计的好,空间感十足,但如果设计的不好,又会显得空旷。



可以通过:石膏线、顶部线条、灯线等设计,增强空间的层次变化,提高空间线条感。
4、善于利用过道面积
①过道扩入卧室

对于卧室附近的过道,如果是非承重墙,我们可选择砸墙重砌,将过道面积扩入卧室,避免面积浪费。
②过道设计休闲区

放上一组小沙发+茶几+地毯,就可以得到一个小休闲区,适合二楼过道设计!
③过道收纳

△楼梯过道书架

△过道嵌入式收纳柜
过道,作为家里的杂物收纳很合适:
①如果过道宽度>1.2m,可以直接打柜体,不要太深,30cm左右就好。
②如果过道的墙面是非承重墙,那可以考虑将墙拆除,做嵌入式收纳,更加节省空间。
跃层设计注意
说完设计,咱们再来说说那些需要注意的地方!
1、保温隔热
跃层窗户大 ,很多都是落地窗,采光好的同时,也面临着保温隔热性差的问题。

建议:
窗户材质尽量选好的,窗框材料:断桥铝>铝合金>塑钢;玻璃建议选择两层或两层以上的中空玻璃。
除了窗户材料,窗帘也是重头戏;推荐:天鹅绒、涤纶、棉质;(窗帘越厚,保温隔热隔音效果越好。)
当然客厅的窗帘不可避免的厚且重。

对于横厅或挑高的客厅而言,开关窗帘会相对比较麻烦,建议安装电动窗帘,开合方便。
2、二楼隔音
跃层虽然看上去像是一个空中小别墅,但是你家的楼顶还是住着人的,并且二楼还是作为主要休息区,所以想要更好的居住体验感,二楼的隔音是重中之重。

做好卧室隔音可以从三个方面入手:
①墙面软包,通过在墙面表层安装一层隔音材料提高隔音效果。
②顶面吊顶,吊顶内部填充隔音棉。
③门窗隔音,门可选择实木门、实木复合门,窗户可加隔音条。
3、楼梯安全
考虑安全性,建议台阶的坡度<30°,并且安装扶手。
台阶的深度在27-40cm,宽度建议在100-120cm,每个台阶的高度建议在15cm左右。
楼梯台阶下方,可安装灯线,提高夜间行走安全性。
①扶手

△砖砌扶手


△玻璃扶手

△铁艺扶手
②护栏
客厅挑高区域的二楼部分,一定要安装护栏。

护栏可选的材料也很多,考虑安全性,护栏的高度不低于1.2m.
跃层设计案例
看完跃层的设计要点,跃层案例也来一波~
1
项目地址:合肥-平湖秋月
设计风格:北欧风
户型面积:140㎡


▲一楼设计方案前后图


2
户型面积:123㎡
项目地址:合肥-建发雍龙府
设计风格:现代简约风


▲一楼设计方案前后图


▲二楼设计方案前后图
3
户型面积:123㎡
设计风格:现代简约风
项目地址:合肥-建发雍龙府


▲一楼设计方案前后图


4
户型面积:158㎡
设计风格:现代轻奢
项目地址:合肥-唐宁府


▲一楼设计方案前后图

