外国15㎡窄公寓,储物空间多还放下双人床,厨卫也能共用?
家物
2020-11-02

在买房不易的当下,小户型房受到了不少人追捧,其中小公寓也成了不少年轻人最爱的户型。但是如何让小公寓实现空间最大化利用,反而也成了一大难题。
当然户型虽小,住着舒服才重要。所以今天给大家分享一个外国小公寓设计,虽然屋子只有15平方米,却五脏俱全,甚至达到了50平米的效果!值得所有小户型学习!

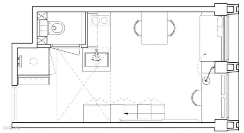
这间公寓位于荷兰鹿特丹,前身是一个写字楼的办公间,所以面积比较狭窄,只有15平米,不过层高足够,房间尽头是飘窗,采光也不错,所以设计师利用了层高优势,将格局重新划分,把厨房卫浴,卧室和工作区全给装下。

进门左手是玄关,头顶则是卧室。为了居住舒适,在大门的2米处高度设置了跃层,占据总面积的三分之一,从而实现卧室的放大,睡在上面也能满足伸展和活动,住着不憋屈。


下方柜体能作为楼梯用,也能当成衣柜和储物间,方便日常物品的存放;墙上的黑色隔板,既是装饰也是扶手,设计细节很贴心。

卧室下方是小卫生间,马桶和淋浴间各自独立,而为了节省空间,特意将厨房和卫生间合一,即水槽共用,既能作为洗漱区,也能在平时做饭时使用。

上方吊挂的镜子是双用镜,朝向卫生间的一侧贴上镜面,作为梳妆镜用,厨房一侧贴上黑板,日常也能用来记事,一举两得。

厨房设计也很简单,塞下嵌入式烤箱和碗橱,满足使用需求即可。

厨房旁边是宽敞的客厅,摆放一张小桌子,既能当餐桌也能当办公桌;

临近靠窗位置,特意放置了小型榻榻米,可以作为每日休闲的区域;连剩余的角落也设计成了小型读书区,真是榨干每一平米。

小公寓面积不大,但利用层高优势打造出小跃层,同时满足了功能性和舒适性,尤其是厨卫共用的新理念,省空间又是实用,让小空间瞬间变大,我们不妨也学起来。
(图片来源于网络,如有侵权立即删除)