85㎡简约风,简洁大方的装修风格更受年轻人的推崇
星彩焕新装饰
2020-11-06
导语:本案为简约风格,简洁大方的装修风格更受年轻人的推崇。但是简约不是造型简陋、工艺简单的为简约设计,其从布局到材料颜色的搭配、物品的摆放都非常的讲究,重点就在于简,即外形简洁,室内空间朴素、大方,但其功能性强。从细节上来说,即物品的摆放要整洁,装饰的物品要少,在颜色和布局上来说,颜色的种类最好不要太多,布局要大方,格调要简洁、素雅。在如今的繁忙生活中,在一个安静、舒适、宽敞明亮的环境中生活,能消除视觉的疲劳,忘记都市的喧嚣,享受生活的宁静。

原始结构图 #三房二厅一厨一卫 #简约

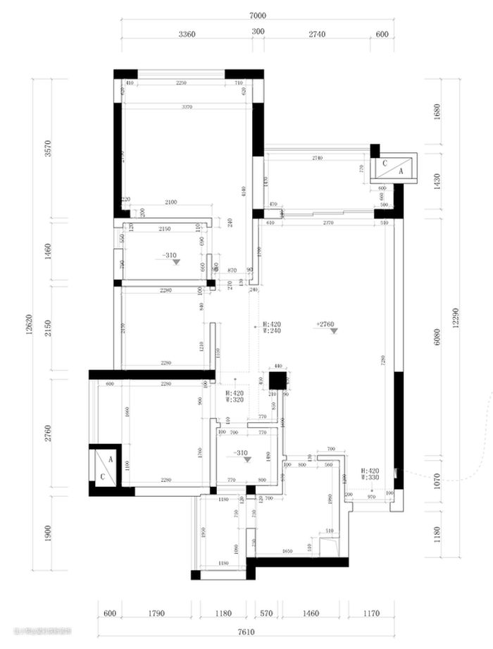
平面布局图 #三房二厅一厨一卫 #简约

1.本身追求简约效果就不用在装饰上面大动干戈,平板的白色柜门搭配木色的柜体。

2.客户是一个喜欢安静整洁的男生,他应该是住厌了老城区的吵杂,所以就把房子装好独自一人“过日子”。

3.喜欢安静的人自然就不喜欢复杂的造型,比较简单的装饰,蓝色成了空间唯一的主色调。

4.室外的雨,室内的滴水声,厌倦了汽车的轰鸣,自然的声音再大也激荡不了平静内心的涟漪。

5.不拘一格的亚麻地毯搭配素色的装饰贴近自然。

6.当初选植物时客户说他不适合养任何东西,他不打理,所以选择了基本不用打理也能存活的仙人柱。

7.客厅简单的摆件和装饰画,显得整个空间大气明朗。

8.空间局限性,餐厅比较小,不过好在够他叫上三五好友聚餐使用。

9.餐桌是黑白搭配的色调,简单又不失格调。

10.虽然是喜欢安静,窗帘和挂画还是搭配了年轻人的个性。

11.回到房间觉得放松,上上网,玩玩游戏,累了可以直接休息。

12.多功能书房,兼客房办公一体,榻榻米的设计也是大大的增加了储物的空间。

13.榻榻米中间做了升降台,可在聚会时玩上几把桌游。

14.层高比较矮,所以选择竖纹柜门来扩大视觉效果。

15.卫生间做了干湿分离,亮色空间显得干净整洁。