奇葩手枪户型也能拯救?160㎡房子改造后美到家了
设美家
2020-12-01

项目地址:京基·御景东方
项目面积:160㎡
设计风格:北欧
设计&落地管控:设美家
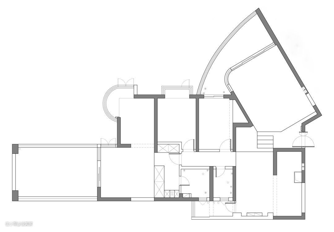
今天要介绍的家位于深圳南山区,整体户型比较特别,形状看起来像一把手枪,房屋内部属于小跃层结构,客厅比其他空间要低,优缺点也很分明:

原始结构
户型缺陷
①入户、跃层楼梯区以及一旁的次卧属于异形空间,不好利用
②房子内墙多为承重墙,可改性不大
③开门即是客厅,没有玄关区缓冲,而且是异形结构,斜角区域难以放入家具,收纳不足
④公卫面积小,只有3㎡,很难满足业主需求的更多功能
优点
①房子面积较大,内部其他空间都很方正
②主卧外还有足足21㎡的户外花园

平面布局
屋主是一对年轻的夫妻,时尚个性,有自己的审美追求,能接受比较前卫的色彩以及造型设计,希望设计师能解决异形空间利用难的问题,还原一个美观独特实用的家。
客餐厅
拆除了原有建筑楼梯,改为更为平缓、长度不一的造型台阶,在左边打造了一排半高的鞋柜落在阶梯上,底部半悬空恰好方便放置常穿的鞋子。
右边的墙面巧妙的做了延伸处理,让异形空间趋于方正,并且嵌入安装了穿衣镜,方便进出门整理行装,靠近客厅一面也更方便做柜子。


△改造前同角度
客厅
客厅拆除了原本老旧的电视背景墙,改成更简洁的白墙,并且利用木线条做简单的造型,让大白墙不显单调。


△改造前同角度
沙发背景以及主家具用了业主喜爱的脏粉色,柔美不失风情,又带着复古轻奢的优雅知性,和另一边的白色电视背景墙形成对比,让整个空间不至于太过艳丽。

皇家蓝的地毯、单人沙发和墙上的装饰画相呼应,整个空间色彩不多却充满表现力,再搭配一些铁艺制品,整个空间有一种“可盐可甜”的感觉。



餐厅
走上台阶,后面是开放式的餐厅厨房,地面用了不同的材质来划分空间,厨房是防滑吸水的复古六角砖,餐厅则是更加温馨的木地板。
餐桌一旁用软木板制作了一面照片墙,上面贴满了夫妻俩旅行照,见证着点点滴滴的幸福时光。

右边拐角的空间也被利用起来,做了两面通顶的柜子,中间开放格用来展示夫妻俩收藏的各种玩偶、纪念品。


△改造前
主卧
大面积的脏粉色加之皇家蓝的点缀,整个主卧延续了客厅的色调,但木质元素的穿插也让卧室多了些温馨感。

墙上的装饰画组选用金色画框装裱,一旁的床头边几、壁灯同样带了些许金色,在大面积的脏粉色映衬下显露出华丽复古的气质。

床尾是精心搭配的梳妆区,梳妆桌与边柜采用了统一的木色,墙上则是安装了白色的隔板,用来摆放一些小玩偶、首饰盒等。

拉开门,外面是大大的露台,设计师用户外木以及绿植将这里打造成夫妻俩的专属花园。


阳光暖暖,微风徐徐,让人心旷神怡。

书房
书房主色调是安静沉稳的蓝色,夫妻俩有在家办公的需求,因此定制了超宽的双人书桌,俩人可以一起办公、学习。
顶部开放与封闭结合的吊柜也能满足业主收纳书籍、展示藏品的需求。

小孩房
这里是预留给未来孩子的房间,墙面是清新自然的浅绿色调,没有买成品床而是做了低矮的榻榻米,方便以后照顾孩子。

异形角落刚好利用起来作为孩子的小小玩乐区。

卫生间
原本公卫只有3㎡,设计师把原本的小阳台并入室内做了卫生间的淋浴房,于是有了足够的空间把洗漱池外移,做干湿分离。

优雅脏脏粉
