230㎡简约大宅,双厅大户型,布置钢琴与古筝,彰显优雅气质!
云南圣辉装饰集团
2020-12-05
这是一套230平米的简约风格大平层户型,整体空间简约风格为主,把一些时尚现代的元素植入到空间内,大平层的户型下,采取双厅的格局布置,也让生活空间显得更加自然时尚,令人惬意轻松而舒适。
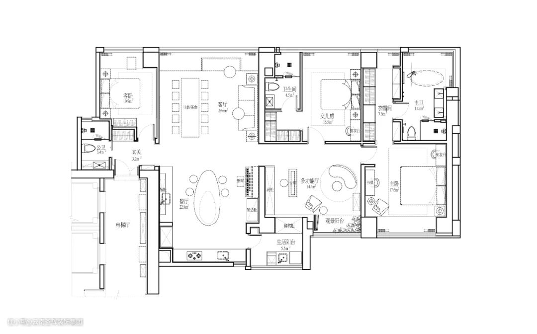
平面布置图

客厅


▲客厅布置不以电视为中心,垫上一席地毯,布置上布艺沙发,中间摆上茶台与椅子,让客厅布置成一个喝茶聊天与休闲放松的多功能空间。


▲米白色的布艺沙发,搭配小茶几,沙发后方的是屏风装饰,让空间显得更加舒适雅致。





▲细节软装布置简约而又优雅,让空间显得更加华丽而端庄大气。
餐厅

▲餐厅与厨房做成开放式的一体空间,布置时尚的大理石台面餐桌,几张简约的凳子围绕餐桌布置,侧边还有餐边柜+西厨操作台,整体空间实用而又时尚大方。

▲餐厅侧边布置上主人的钢琴,钢琴旁边还有一个胡桃木的矮柜餐边柜,成熟端庄的布置设计,让用餐空间也更加档次雅致。

▲餐边柜做成独特的酒杯收纳设计,台面上的玻璃器皿布置,也让用餐空间显得更加优雅情趣。




▲华丽精致的细节布置,也让用餐空间更加有仪式感。
休闲室

▲休闲室布置了休闲沙发与茶几,还有古筝与一面大书架,整体天花以木饰面质感的吊平设计,营造出简约自然而又成熟端庄的气质感。


▲休闲沙发椅与茶几,旁边一个小斗柜,布置装饰品与圆镜,使得角落位置也艺术感不减。


▲书架摆设着主人的藏品与书籍,彰显出主人不凡脱俗的艺术追求。
卧室


▲卧室空间简洁大方的浅灰色墙面为主调,地毯也是以灰色的简约质感,布置灰色皮艺床铺,布置素雅的床单被套,呈现出一种轻松优雅的睡眠环境。


▲床尾位置还布置了书桌与休闲椅,为主人提供一个休闲与阅读放松的小私密空间。在素色的空间基础下,摆上红色的抱枕点缀,也让空间显得更加活力而又时尚魅力。


▲精致的细节软装布置,也让卧室空间显得更加温情舒适。
衣帽间

▲衣帽间设置衣柜收纳基础,飘窗布置花瓶插花,还有一张小鼓凳,为更衣提供了方便的体验。
卫生间

▲卫生间整体简洁为主,窗户以百叶帘设计,靠窗布置一个大浴缸,营造出一种温情舒适的泡浴体验。

次卧


▲次卧空间在简约的空间基础,搭配红色床单、地毯与吊灯等细节布置,营造出一种时尚优雅的卧室气质感。

▲床头柜上的吊灯是红色的,搭配温馨舒适的皮质靠背床,显得温情浪漫而时尚。
次卧②

▲请输入文字另一个卧室整体空间以简约舒适的布置为主,摆上一张灰色布艺床,木质床与床头柜,搭配灰色床单与窗帘,飘窗还设置了茶台布置,让空间显得简约自然而惬意。

▲床头柜木质感的设计,摆上一盏银色台灯,也让卧室氛围显得更加现代大方。