被这套189㎡美式圈粉了,原木色精致稳重,主卧室紫色很有特色
光影设计
2020-12-07
本期给大家带来的是一套美式田园风格,业主是一对从两小无猜的稚童,到青春活力的学校,再到穿上婚纱,到如今的两个小孩,一路长跑了近四十个春秋,让人非常羡慕的爱情!房子是四房两厅的格局,刚好满足他们一家人的居住需求。房子是实际建筑面积是189平米(包含墙体的面积)。
坐标地点在湖南湘西的花垣县。业主两口子的年龄都在四十多岁,喜欢的东西自然是成熟稳重,所以最后摒弃了轻快的简美风,选择了比较稳重的美式田园风。
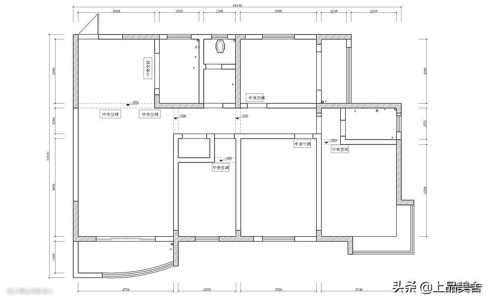
01户型图

原始结构图
房子虽没有南北通透的格局,但却有四四方方的空间布置。房子的尺寸算是标注是详细了,每个梁的高度也标明了。房子户型虽好,不过让人有点遗憾的就是只有一个阳台,没有双阳台的结构。还有个小遗憾就是没有玄关。
02平面布置图

平面布置图
由于没有玄关空间,房子对外就没有了缓冲区,所以占用了餐厅一点空间,做了一个玄关出来。客厅旁边的阳台依然做休闲阳台,把生活阳台搬到了书房兼客房那边,刚好那边有下水管。原有过道空间太长了,所以将主卧的房门向外扩展,占用小孩房和书房兼客房各一点面积,这样多了一个衣帽间空间来,对两边的空间也不影响。
03玄关

玄关
通过设计师的规划,玄关空间视觉感很强。很有艺术感的窗户和门洞,都给玄关增加了特色,让人一进门,便能感受到自然的木色和经典的灰色,指引着视线。在玄关里面设计了,卡座、鞋柜、还有吊柜,加以装饰品绿植的烘托,显得静谧又纯净。在细节上面都处理得很好,让人无可挑剔。墙面选择了很有肌理感的涂料。
04客厅

客厅

客厅

客厅
客厅的电视背景墙和吊顶做了很好的搭配,都采用石膏板抽缝的设计处理,电视墙两边的原木储物柜,为了让其显得不太沉闷,所以用白色点缀一下,显得轻快一点。美式的厚重,给生活增添了几分的品味,美式的对称,精致有仪式感。
05餐厅

餐厅

餐厅
餐厅的布置很有仪式感,也很有特色。被玄关占了一部分面积之后的餐厅,显得有点小了,不过摆放圆桌还刚刚好,酒柜的设计尤为突出,弧形的造型,里面暗藏灯光的设计,高级感很强,很有品位。
06主卧室

主卧室

主卧室

主卧室
紫色的床头墙面,足够吸引人的眼球,在房子装修中这种颜色是很不常见的,但不得不说它确实很显特色,这里做了一点点造型,即使是不做造型,也会显得很特色。衣柜采用的是推拉门,不占地方。电视墙造型,颜色选择上做的偏沉稳一些,床头的紫色刚好与其搭配,弱化一点点沉稳,让整个卧室变得不显沉闷。
07书房

书房

书房

书房
书房沿用了整体的设计风格,大面积的用原木色搭配美式风格的线条感,造型简单的原木桌椅,简约自然,提升了空间的质感。在这里面摆放的沙发床,来客人了可以秒变客房,而且还是个带书房的套间。书柜的设计和酒柜的设计造型和色彩搭配都一样。
08小孩房

小孩房

小孩房
这个小孩房标记为小孩房1,采用的是榻榻米的形式,其实这个卧室不小,可以不用榻榻米的。用榻榻米之后,小孩房就多了一个可以玩耍的区域出来。柜子全部选择的推拉门,墙面全部采用的非常卡通的墙纸,以后小孩子长大了,可以随时换,墙纸就变得不二之选了。
09小孩房

小孩房

小孩房
这个小孩房标记为小孩房2,采用的是上下铺床,和小孩房1一样都选择的卡通墙纸,方便以后更换。