怎么把王思聪住的酒店搬回自己家,看到就是赚到,建议收藏!
乌市尚层空间总店
2020-12-13
我是个热爱体验酒店的室内设计师,回答这个问题再好不过。
喜欢酒店体验的人群很多,比如金星常住的饭店,250平米,月租金8.3W。

再比如王思聪在上海居住的某酒店公寓,协议一个月24W


说明社会的部分阶层是认可这种居住模式的。个人虽然不建议把家装修成五星级酒店一模一样,但五星级酒店的客房设计经过常年的积累和变迁,对入住者的关怀和舒适度始终是最高的。将其中一部分设计沿用到家里,提升家中的舒适和体验,也是我一直在思考的。这里就谈一些适用家装的部分。
星级酒店室内设计里重点分四个部分:
机电设计、卫浴设计、装饰设计、照明设计(厨房设计不在本次讨论之内)
一.机电设计:
1、写字台:2个通用插座(家装增加1个),网络点一个。
媒体连接盒:写字台旁、用于连接电视和客人的娱乐设备,包括HDMI、USB、AV、VGA、IPOD3.5接口。

2、床头柜上方:2个通用插座(可带USB);床头柜下方:1个台灯插座。床头柜有一个总开关最好(家装客户几年前就开始要求床头有总开关了,这个因人而异)。
3、Mini Bar:1个带开关插座,1个小冰箱插座(家装也碰到过要设计Mini Bar的情况)。
4、卫生间:1个剃须插座、1个吹风机插座(家装可共用一个插座,离地40cm增加一个小厨宝插座)。

5.马桶一个卫洗丽插座。
6.机顶盒应是3合1的,即把有线电视、卫星电视、VOD点播合成到一个机顶盒内,这种机顶盒需要当地有线电视部门定制。
7.数据点2个:卧室和写字台。
IPTV网线:电视机后;媒体连接盒:写字台旁、用于连接电视和客人的娱乐设备,包括HDMI、USB、AV、VGA、IPOD3.5接口。
二.卫生间设计:
1.选用抽水力大的静音的马捅,淋浴的设施不要选用太复杂的,而要选用易于操作的设备。
2.设淋浴玻璃房的卫生间,一定要选用安全玻璃,玻璃门边最好设有胶条,既防水渗出,也能使玻璃门开启时更轻柔舒适。
3.水龙头的水冲力不要太大,要选用轻柔出水、出水面较宽的水龙头,有时,水流太猛,会溅到客人的裤子上,会比较尴尬。
4.镜子要防雾,并且镜面要大,因为卫生间一般较小,由于镜面反射的缘故,而使空间在视觉上和心理上显得宽敞。卫生间巧用镜子会起到意想不到的效果。(家装的镜面需要增加储物功能,摆放牙刷和个人用品)。
5. 硕大的洗手台盆,家装要做到这点得考验设计师的功力了。
云南某酒店洗手台盆

梁志天某项目洗手台盆

琚宾之家洗手台

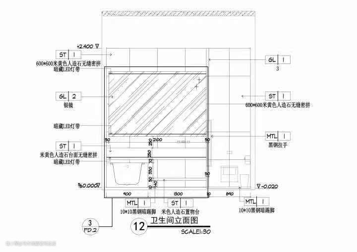
附上参考施工图

6.卫生间的地砖要防滑耐污。地砖与墙砖的收边外最后打上白色或别的颜色的防水胶,而让污物无处藏身。
7.镜前灯要有防眩光的装置,天花中间的筒灯最好选用有磨砂玻璃罩的(现在流行的暗藏镜前灯,或在吊顶处使用射灯照明)。
8.卫生间的门及门套离地20CM左右的地方要做防水设计。

有些家庭的卫生间门套与地砖接口处和外墙会有腐烂现象,原因是卫生间与外墙交接处渗水。 渗水源一般来自淋浴房洗澡时渗入地面砖下找平层,由找平层往外围渗漏,很多就算做过闭水试验的卫生间也有可能会有这现象。原因一般为墙体会因为沉降或其他家装修震动引起小的开裂缝造成渗水。
解决办法:
卫生间防水刷到隔墙外部,离地30CM,门套处有木基层,离地20CM处不做木基层,或者锯断以阻隔潮气。
9. 淋浴区采用大理石底座,这是星级酒店的常规做法,排水和防滑功能强大。
具体做法:
大理石底座抽缝(厂家订制),水槽预留100mm,地漏在花洒下方,高度下沉,让左右两边水流灌入地漏;能有效防止积水漫过脚部。

目前我做过的家装项目90%都采用大理石淋浴底座了。即使遇到预算不够的情况,也用瓷砖解决,关键就是留缝和坡度。
三. 装饰设计:
星级酒店常用的大理石、金属线条、木饰面、硬包对于大多数人来说成本有些高,难度也大;

上图是王思聪的酒店,并不建议家里装修成这样。
普通家装设计师也很难完成酒店装饰设计要求

比如上图的酒店包厢
大理石拼花,墙面采用造型蓝色系花纹砖,天花平顶造型,现场电视背景墙壁龛深度与电视机结合不是很好,电视外凸,收边一般,五金件采用什么样,限位怎么处理,怎么预防夹手等问题是我们需要关注和考虑的。
好在现在一些度假酒店和民宿流行的简约新中式和日式禅意风,大部分人还是可以借鉴的。

上面这张照片的是杭州某奢华酒店,4K多一晚。颜色寡淡,但很符合建筑的禅意氛围。

安吉某外籍度假酒店,2-3k一晚

简简单单的家装案例

上海某设计系酒店,1.3k一晚。

杭州某艺术酒店

琚宾设计的卧室,是不是有些像上面的酒店?甚至更舒适一些。
白墙+浅木色的装修线条与家具为主,这点很多人能轻易做的。搭配一些布艺和靠垫就能达到理想的效果,当然细节还是专业人士掌控。顺便一提,靠垫套芯羽绒要好于棉的。
四.照明设计:
1.增加整个客房内的照度,除常规的台灯、落地灯、床头灯、廊灯、夜灯、吧台灯外,另外再增加吸顶灯,分组控制。
2.吧台处使用射灯,房间内除床头上方,其他位置的墙面挂画上方均要考虑设置一可旋转45度角的射灯,直射挂画(2700K-3000K为佳)。

上图是我设计的写字台区,打上灯光立马就体现挂画的品质了。(46平米2房)
3.床头上方顶棚坚决杜绝使用射灯:第一,不安全,射灯爆炸时易伤害客人;第二,无多大实际用处,设想,你住店时会半躺在床上开着头上的射灯看书?仅仅是外观效果好点而已。一些设计师往往只重视视觉效果而忽视实际使用及影响。若换成普通筒灯,又体现不出所谓的效果了。

4.床头灯采取固定在墙面或用床头台灯形式,摇臂式床头灯因易损坏而已经被淘汰。
5.除卫生间的镜前灯外,都应采用暖白光源(家装镜前灯也可采用暖白光源)。

6.使用灯槽增加气氛
预算紧凑,就只能在灯光上出些效果。
最后:
要得到酒店般的舒适体验,收纳和整理也很重要,桌面、沙发、椅子上最好是不要堆满东西。酒店靠的是每天打扫,而家庭就只能靠强大的储物功能和收纳意识来保持整个房间的干净与舒适。
【点赞+收藏,祝您好运连连】