48平小户型公寓,全屋通透又明亮,最爱一楼客厅,漂亮
大连塞纳春天
2020-12-17
今天给大家分享的是一套48平米的小户型公寓,没有用过多的色调和造型设计,以简约风为主,功能齐全,客餐厨全开放的形式,还带有两个卫生间,真的非常好看实用,特别是一楼的客厅,简直就是小伙伴们心中的白月光,下面一起来看看吧!

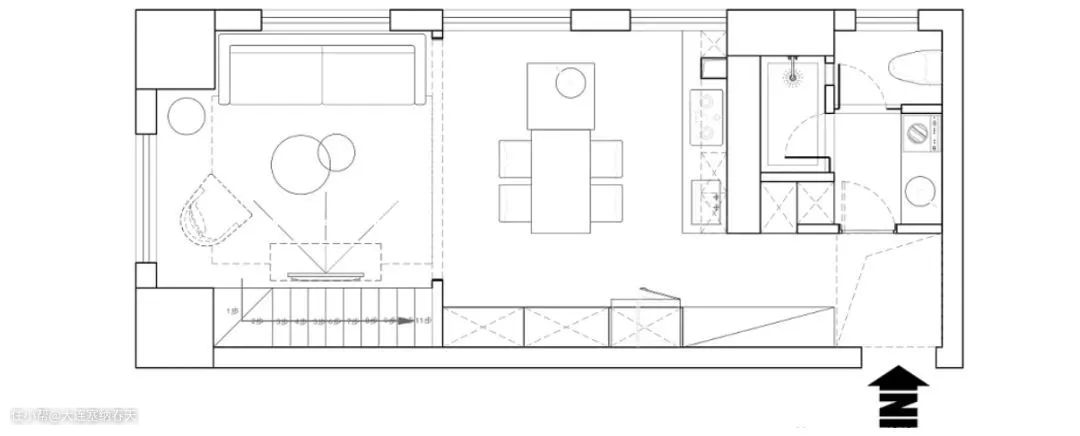
一楼平面布置图,一楼是起居室,从玄关开始依次是卫生间、厨房、餐厅和客厅

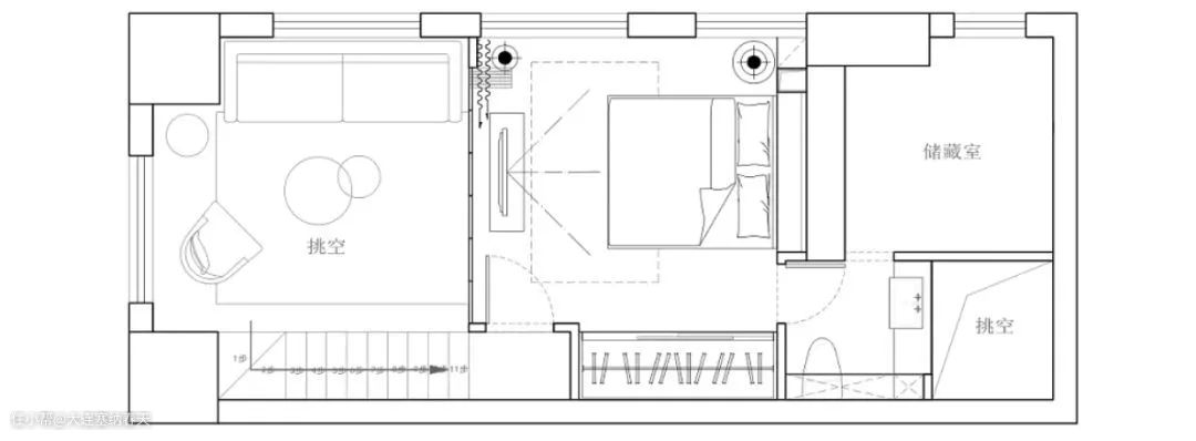
二楼是卧室,带了一个储藏室和卫生间,布局还是很清晰的

整体的空间线条感和层次感都非常明显,简单的黑白配色加上精美的软装搭配,不累赘却也不单调,整体呈现出一种时尚、简约、大方的效果,彰显出满满的格调,看起来一切都是刚刚好。

进门玄关绿意盎然的龟背竹墙绘,左手边摆放了一个矮鞋柜,不仅可以放鞋,柜面上还可以放些出门容易忘记的东西,如钱包、钥匙等,或是摆上几幅装饰画作展示也很漂亮。

玄关进来往左转就是厨房和餐厅,开放式的格局显得空间宽敞明亮,白色橱柜搭配黑色墙面,让厨房看上去简约又大方。这里可能有人担心开放式厨房会产生油烟问题,但说句实话,根据咱们中国人的烹饪习惯,就算是封闭式的厨房也难避免这个问题,所以只能建议用集成灶。

餐厅设计成了餐桌结合吧台的形式,既能满足平时的用餐需求,又能坐在这里工作学习,吧台底部是带有收纳功能的。厨房和餐厅对面定制了内嵌式储物柜,采用封闭柜+开放格的组合形式,兼具收纳和展示作用,把冰箱也嵌入其中,美观整洁。

大多数的loft公寓客厅空间都很大,为了避免让人产生空旷的感觉,所以吊顶用了几圈黑色线条装饰,再挂上一盏自然垂下的网状吊灯,让空间更加富有层次感。

二楼卧室的楼梯,铁丝吊筋护栏整齐排列,充满立体与线条感,墙壁上的壁灯散发出微微光芒,别有一番情调,木质的楼梯踏板显得很温馨舒适,容易让人产生就地而座的安全感。楼梯下方的空间也没有浪费,做了隐藏储物柜,可以放很多家居杂物。

卧室里面也是以简约为主,天花板装了一圈筒灯,卧室除了楼梯口的围栏可以透光,里面还额外带了两道窗户,采光效果特别好。床头装了一排开放式储物格,上面可以放放书籍啥的,拿放比较方便,床边左侧定制内嵌式推拉门衣柜,既美观又节省了空间。

一楼的卫生间,洗漱区和马桶区做了一个小隔断,浴室镜里面装了灯带,暖暖的灯光让空间多了一份温馨,照镜子的时候也能看得更清楚,洗衣机是嵌在洗手台下方的,不占位置,又能保证空间布局的整体协调性。

二楼的卫生间做了镜柜,以便收纳更多的物品,保持台面整洁,浴室柜空出下半部分的空间,避免卫生死角,可以有效的阻止浴室柜吸水受潮。