4个简约日式庭院住宅设计,美。
山东逢顺吉装饰有限公司
2021-01-10

日式庭院住宅最打动人的地方,主要在于其自由灵动的居住空间所体现出的美韵——强调室内与室外的对话与互动,着力展现居住空间的空灵。
日本建筑师普遍着重强调住宅整体的生态设计,以敏锐的感官去探究空间的深层本质,进而转换成建筑空间的元素,例如,以塌塌米、竹、石、纸、木等简单元素,形塑出和式住宅[素、灵、雅]的空间之美。
01.
多度津町私宅

该项目是一个将原有建筑夷为平地,并以此为基地重新设计建造的私宅,原始房屋大约有100年的历史。


建筑师利用既有场地的L形外廓,设计了一栋用于居住的主体建筑,并在一旁配备了一个独立的茶馆空间。




在建筑师与业主的交谈中,业主希望延续他们家族对这一地块的拥有使用权。尽管在一定程度上,一栋住宅的寿命会远远超过其居住者的年龄,但新建空间结构的介入,却可以试图延长其内部居住者的寿命。



因此,建筑师在新住宅的设计中也考虑到了一些过往的经典设计手法,并将其转录到本次的私宅设计中。



尽管时间的流逝无法受到人们的阻挡,但岁月在住宅身上所留下的烙印,以及空间本身所呈现出来的韧性,和居住者内心的静谧,却共同将这栋私宅编织成了一个真正的“家”的空间。










▲住宅平面图
项目信息
建筑师:奥野崇建筑设计事务所
面积:182.0 m²
项目年份:2019
摄影师:Shigeo Ogawa
02.
多度津の茶室

新茶馆的建造是为了传承日本传统文化。


当进入专为主人和客人设计的空间,感官的感受骤然增强,使人意识到光和声音之间最细微的相互作用,甚至可以说,它是世界变化的缩影。


人们认同这样一种说法:精于茶道的大师可以在最小的空间里找到整个宇宙。

用于建造的材料为当地的土、木、竹、石。总有一天,当它们完成使命时,将会重返自然。



▲ 茶室平面图
项目信息
建筑师:奥野崇建筑设计事务所
面积:32.0 m²
项目年份:2019
摄影师:Shigeo Ogawa
03.
葡萄架之家

葡萄藤发芽,开花,结果,落叶。


这座建筑能让人享受葡萄的生长过程并体验葡萄藤在不同季节变化。夏天,沐浴在宜人的阴凉中,细听微风与叶子的呢喃,让葡萄的甜味充满味蕾。冬天,当树叶落下时,享受阳光带来的的温暖。


葡萄藤架下面是一个半户外空间,并配有一个可以卷起的屏障。这种设计隔离了昆虫,并保有了风的流动,可以让使用者在这里度过舒适的的一天。


在这座建筑中,房屋的隔热性和密封性定义了完整结构的基本要素。室内在拱形天花板和地下分别安装了空调,以便在不同季节确保室内温度的稳定。在屋子中央的明亮吊灯之下,是家庭成员聚会的核心空间。










▲ 住宅平面图
项目信息
建筑师:奥野崇建筑设计事务所
面积:112.0 m²
项目年份:2019
摄影师:Hirokazu Fujimura
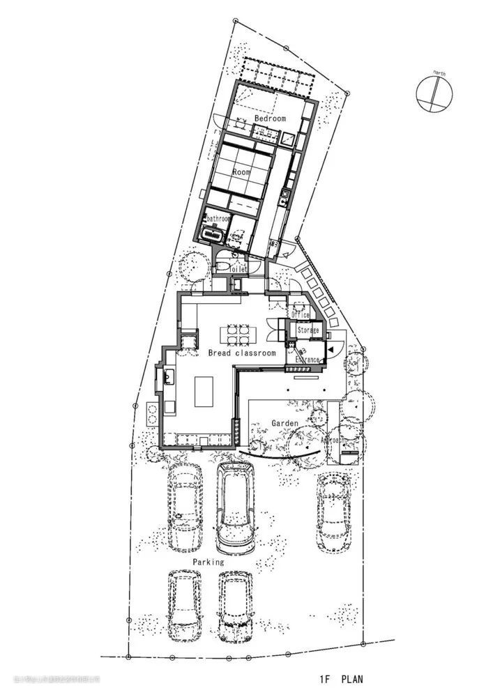
04.
冰见市面包房工作坊

“我想重视与人之间的互联互通。” 这些是客户的第一句话。


我们对空间进行了紧凑,紧凑的布置,以提供组合的住所,同时保持其作为烘焙课程空间的功能。




为了避免过分追求和珍惜日常的平凡乐趣,在这里的布局中,我们试图设计一个家庭空间,可以自由按照自己的节奏移动,按照自己的节奏生活。









▲ 住宅平面图
项目信息
建筑师:奥野崇建筑设计事务所
面积:92.0 m²
项目年份:2019
摄影师:藤村裕一